
2
CD-NEXA/G2+ WIRING DIAGRAMS
INTRODUCTION
First and foremost we would like to thank you for purchasing this product.
Our commitment to satisfying our customers can be seen from our ISO-9001 certification and from the manufacturing of
products like this one.
Its advanced technology and exacting quality control will ensure that customers and users enjoy the many features this
system offers. To obtain the maximum benefit from these features and a properly wired installation, we kindly
recommend that you spend a few minutes of your time reading this manual.
MOUNTING CONFIGURATIONS
Push button door panel with NFC access controlG2+ ................................................................................................. 3-.5
Coded panel with NFC access ............G2+ control ......................................................................................................6-8
Coded panel with display and NFC accessG2+ control NFC...................................................................................... -119
Coded panel G2+ ..................................................... ............................................................................................... 12-14.
Coded panel with G2+ ...... -display .................................................................................................... ........................15 17
COM
NA2
+AP-
C1 NA1 AP+ C2 AP+ AP- P1 P2 BUSBUS
Relé 2
Relé 1
_
12Vdc
12
ON
2 3 4 5 6 7 8 9 10
1 2 3 P1
P2
CN2 CN3
EL632 G2+ SE/
EL642 G2+ CD-NEXA G2+ EL3002
EL4502/NFC
N3403/AL
N3301/AL EL3002
EL3002
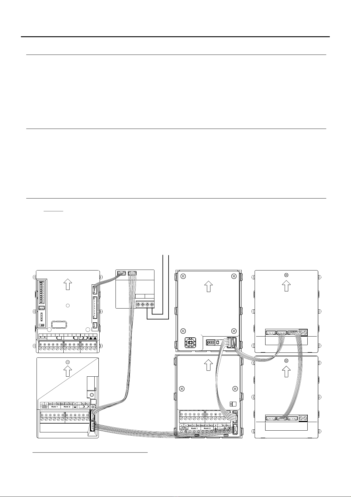
NEXA BUS CONNECTION CD-NEXA/G2+ WITH ADDITIONAL FA-PLUS/C POWER SUPPLY UNIT:
NOTE: EL632 EL642 G2+ sound module should be connected to the power supply unit. The N are powered byOnly the / exa modules
the Nexa Bus link connector.
NOTE: Maximum 3 Nexa modules can be connected (without additional power supply)FA-PLUS/C .
Example below of additional FA-PLUS/C power supply unit connected to the CD-NEXA/G2+ module, when there are more
than 3 Nexa modules.
+18v
_
+18v
_
FA-PLUS/C
power supply
For further information, please contact our technical support services.
Status LED of the CD-NEXA/G2+ module:
Led blinking (green): CD-NEXA/G2+ module connected and backbone power supply.
Led blinking (red): CD-NEXA/G2+ module connected and local FA-PLUS/C power supply.