NOTICE - This service data sheet is intended for use by persons
having electrical and mechanical training and a level of knowledge
of these subjects generally considered acceptable in the appliance
repair trade. The manufacturer cannot be responsible, nor
assume any liability for injury or damage of any kind arising from
the use of this data sheet.
SAFESERVICINGPRACTICES
To avoid the possibility of personal injury and/or property damage, it is
important that safe servicing practices be observed. The following are
examples, but without limitation, of such practices.
1. Before servicing or moving an appliance remove power cord from
electrical outlet, trip circuit breaker to OFF, or remove fuse.
2. Never interfere with the proper installation of any safety device.
3. GROUNDING: The standard color coding for safety ground wires is
GREEN or GREEN WITH YELLOW STRIPES. Ground leads are not
to be used as current carrying conductors. It is extremely
important that the service technician reestablish all safety
grounds prior to completion of service. Failure to do so will
create a potential safety hazard.
p/n 316441482(0608)
SERVICE DATA SHEET
ElectricRangeswithES330ElectronicOvenControls
RTD SCALE
Temperature (°F) Resistance (ohms)
32 ± 1.9 1000 ± 4.0
75 ± 2.5 1091 ± 5.3
250 ± 4.4 1453 ± 8.9
350 ± 5.4 1654 ± 10.8
450 ± 6.9 1852 ± 13.5
550 ± 8.2 2047 ± 15.8
650 ± 9.6 2237 ± 18.5
900 ± 13.6 2697 ± 24.4
ELECTRONICOVENCONTROLFAULTCODEDESCRIPTIONS
Runaway Temperature.
Shorted Keypad.
Bad Micro Identification.
Bad EEPROM Identification/Checksum error.
Open probe connection.
Shorted Probe connection.
Maximum oven door unlock time exceeded.
Maximum oven door unlock attempts exceeded.
Maximum oven door open time exceeded.
Maximum oven door lock time exceeded.
Maximum oven door lock attempts exceeded.
Likely Failure Condition/Cause Suggested Corrective Action
Fault Code
1. (F10 only) Check RTD Sensor Probe & replace if necessary. If oven is overheating, disconnect
power. If oven continues to overheat when the power is reapplied, replace EOC. Severe
overheating may require the entire oven to be replaced should damage be extensive.
2. (F11, 12 & 13) Disconnect power, wait 30 seconds and reapply power.
3. (F11, 12 & 13) If fault returns upon power-up, replace EOC.
1. (F30 or F31) Check resistance at room temperature & compare to RTD Sensor resistance chart.
If resistance does not match the RTD chart replace RTD Sensor Probe. Check Sensor wiring
harness between EOC & Sensor Probe connector.
2. (F30 or F31) Check resistance at room temperature, if less than 500 ohms, replace RTD Sensor
Probe. Check for shorted Sensor Probe harness between EOC & Probe connector.
1. (F90, 91, 92, 93 & 94) Check the wiring between EOC & Lock Motor Micro Switch.
2. (F90, 91, 92, 93 & 94) Replace the Motor Door Latch assembly if necessary.
3. (F90, 91, 92, 93 & 94) Check for binding of the Latch Cam, Lock Motor Rod & Lock Motor Cam.
4. (F90, 91, 92, 93 & 94) Check to see if Lock Motor Coil is open. If open, replace Lock Motor
Assembly.
5. (F90, 91, 92, 93 & 94) Lock Motor continuously runs - if Micro Switch is open, replace Lock
Motor Assembly.
6. (F92, 93 & 94) Check oven door Light Switch - if open, replace Switch.
7. If all situations above do not solve problem, replace EOC.
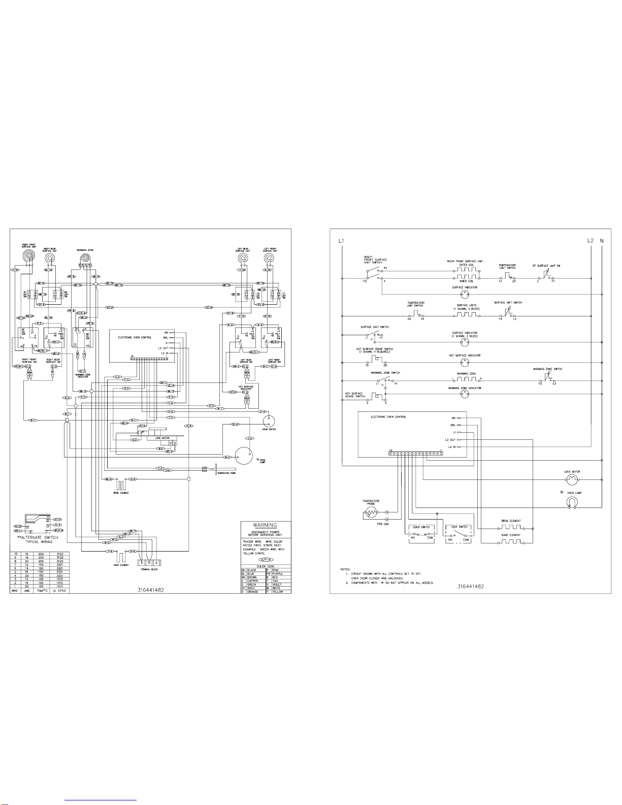
ELECTRONICOVENCONTROL(rearview)
IMPORTANT
DO NOT REMOVE THIS BAG
OR DESTROY THE CONTENTS
WIRINGDIAGRAMSANDSERVICE
INFORMATION ENCLOSED
REPLACE CONTENTS IN BAG
4. Prior to returning the product to service, ensure that:
• All electric connections are correct and secure.
• All electrical leads are properly dressed and secured away from sharp edges,
high-temperature components, and moving parts.
• All uninsulated electrical terminals, connectors, heaters, etc. are adequately
spaced away from all metal parts and panels.
• All safety grounds (both internal and external) are correctly and securely
reassembled.
OVENCALIBRATION
Set the electronic oven control for normal baking at 350°F. Obtain an average oven
temperature after a minimum of 5 cycles. Press STOP/CLEAR to end bake mode.
TEMPERATUREADJUSTMENT
1. Set EOC to bake at 550°F.
2. Within 5 seconds of setting 550°F, press and hold the bake pad for approximately
15 seconds until a single beep is heard (longer may cause F11 shorted keypad
alarm).
3. Calibration offset should appear in the display.
4. Use the slew keys to adjust the oven temperature up or down 35°F in 5°F
increments.
5. Once the desired (-35° to 35°) offset has been applied, press STOP/CLEAR.
Note: Changing calibration affects normal Bake mode. The adjustments made will not
change the Self-Cleaning cycle temperature.
F10
F11
F12
F13
F30
F31
F90
F91
F92
F93
F94
RESISTANCE
TEMPERATURE
DECTECTOR
CIRCUITANALYSISMATRIX
E.O.C.CONTROLCONNECTIONS SIMMERSELECTPCB(some models)
Note: + indicates features that are not on all models.
P5
++
+