
9
P198A
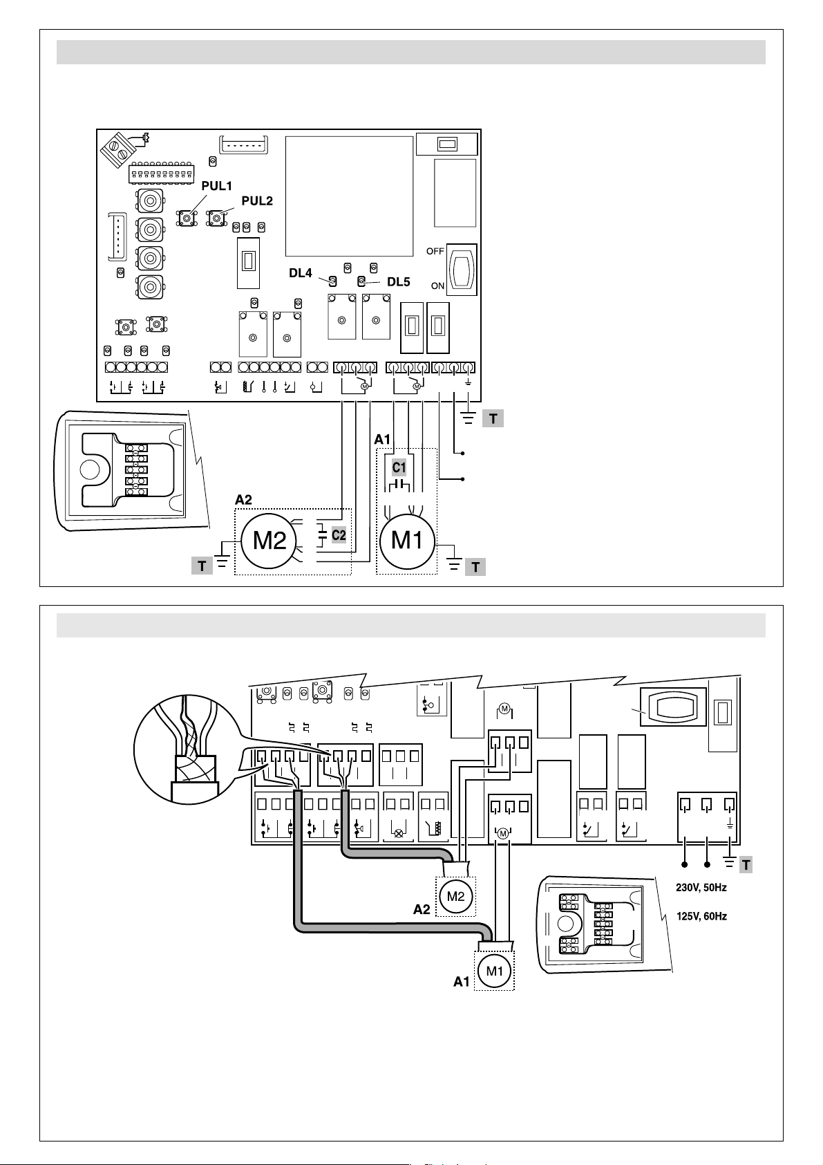
2
3
4
AAX03
TA
P198G
AAX01
13mm 13mm
1 Montez le support de mur (1). Si vous en avez besoin,
utilisez une plaque auxiliaire, non incluse (possibilité
de solliciter l’accessoire AAX03 : fixation postérieure
avec support au mur). Retirez le bouchon (2) et la vis
(3) et démontez le couvercle (4).
P198B
5
7
6
6
P198C
8
AAX02
P198D
9
10
Montage
2 Montez l’actionneur sur le support de mur avec le
boulon (5) et l’écrou (7), en intercalant les rondelles
(6) comme indique le détail.
3 Placez le support de porte (8), en le soudant sur cette
dernière. Si vous en avez besoin, utilisez une plaque
auxiliaire, non incluse (possibilité de solliciter
l’accessoire AAX02 : support avant avec fixation à la
porte).
4 Montez l’actionneur sur le support de porte, avec le
boulon (10), en intercalant la rondelle (9).
6 Réalisez plusieurs mouvements manuels d’ouverture et de fermeture pour vérifier le fonctionnement correct.
5a Réglage des butées (ouverture intérieure) :
Butée d´ouverture [TA] : ouvrez complètement la
porte et fixez la butée [TA] à l’endroit correspondant.
Butée de fermeture (AAX01) optionnelle : fermez
complètement la porte et fixez la butée (AAX01) à
l’endroit correspondant. La butée AAX01 réduit la
course utile de 337 à 316 mm.
5b Réglage des butées (ouverture extérieure) :
Butée d´ouverture [TA] : ouvrez complètement la
porte et fixez la butée [TA] à l’endroit correspondant.
Butée de fermeture (AAX01) optionnelle : fermez
complètement la porte et fixez la butée (AAX01) à
l’endroit correspondant. La butée AAX01 réduit la
course utile de 337 à 316 mm.
IMPORTANT : si vous installez la butée AAX01, il est
conseillé d’installer la butée extérieure de fermeture
TC. Si vous n’installez pas la butée AAX01, TC est
obligatoire.
IMPORTANT : si vous installez la butée AAX01, il est
conseillé d’installer la butée extérieure de fermeture
TC. Si vous n’installez pas la butée AAX01, TC est
obligatoire.
P198H
AAX01
13mm 13mm
TA