
Note
To determine required loading pressure,
add the diaphragm dierential pressure
to the desired outlet pressure setting.
Principle of Operation
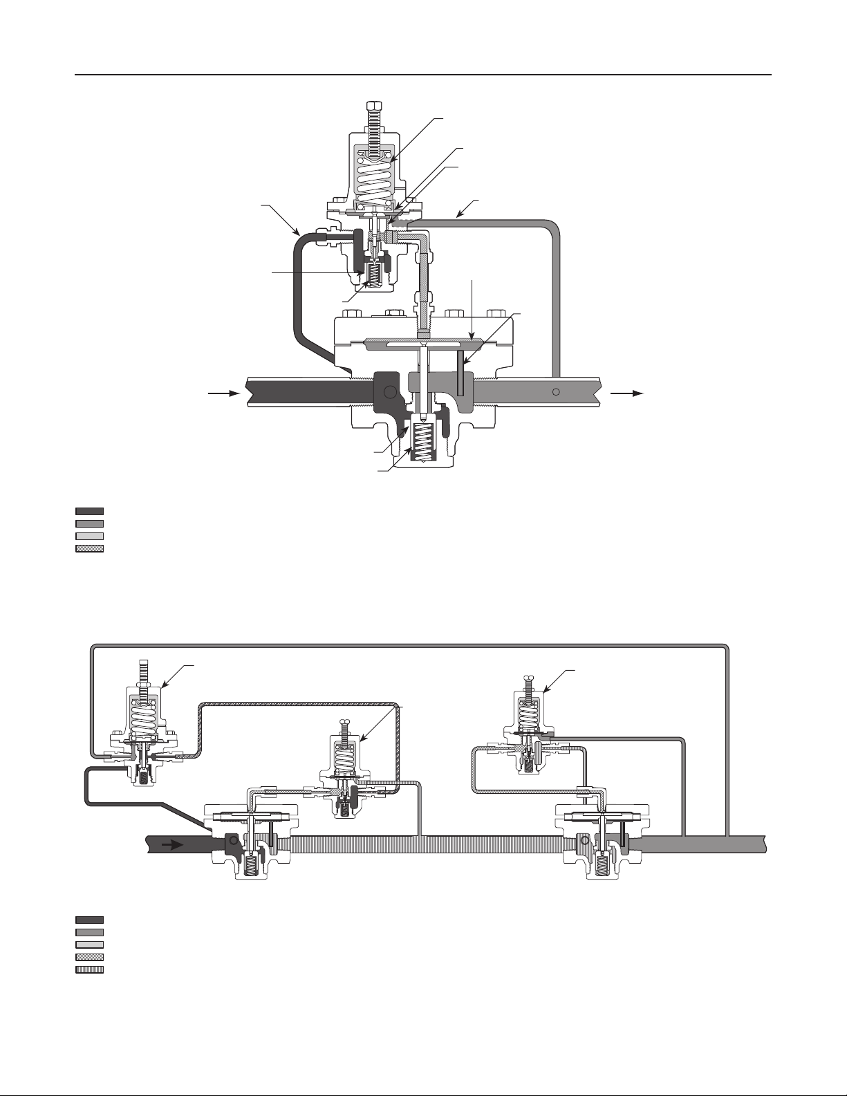
Pilot-Operated Regulator
Refer to Figure 5. Pilot supply pressure is piped from the
inlet side of the main valve to the pilot inlet connection.
Downstream pressure registers under the main valve
diaphragm through the pitot tube and under the pilot
diaphragm through the downstream control line.
When downstream pressure decreases to a value
below the setting of the pilot regulator spring, the pilot
spring forces the pilot valve plug open, increasing
the loading pressure on the top of the main valve
diaphragm. The increased loading pressure on top of
the main valve diaphragm and decreased downstream
pressure under the main valve diaphragm force the
main valve diaphragm and stem downward. This
opens the main valve plug, and increases ow to
the downstream system, thus restoring downstream
pressure to the setting of the pilot regulator spring.
When downstream pressure increases it registers
under the pilot diaphragm and overcomes the force
of the pilot spring. This allows the pilot valve spring to
close the pilot valve plug and causes excess loading
pressure to bleed to the downstream system through
the pilot bleed hole. At the same time, increased
downstream pressure registers under the main valve
diaphragm. The decreased loading pressure on top of
the main valve diaphragm and increased downstream
pressure under the main valve diaphragm force
the main valve diaphragm upward. This allows the
main valve plug spring to close the main valve plug,
reducing ow to the downstream system.
Pressure-Loaded Regulator
Refer to Figure 7. With a pressure-loaded regulator, a
remote, adjustable loading regulator provides loading
pressure to the top of the main valve diaphragm.
Downstream pressure registers under the main valve
diaphragm through the pitot tube.
When downstream pressure decreases, it registers
under the diaphragm and allows the stem and plug
to move downward, thereby opening the valve to
increase downstream pressure.
When downstream pressure increases, it registers
under the diaphragm and forces the stem and plug
to move upward. The upward force of the spring
causes the valve to close, which decreases ow to
the downstream system thus decreasing downstream
pressure. In hot air service, supply air above the
diaphragm becomes compressed and is vented to the
atmosphere. If a steam supply is used, the steam is
vented downstream.
Safety Override Pilot Principle
of Operation
Refer to Figure 6. Once placed in operation, the
upstream Type 6392 pilot senses the intermediate
pressure between both valves, and the Type 6492HM
(or 6492HTM) pilot senses downstream pressure
of the second valve. As demand for ow increases,
intermediate pressure will fall causing the Type 6392
pilot to open. As the Type 6392 pilot valve opens,
loading pressure to the main valve increases, opening
the main valve.
The Type 6492HM (or 6492HTM) safety override
pilot remains open because its setpoint is above the
setpoint of the downstream valve. In the unlikely event
that the downstream valve fails open, downstream
pressure will rise above the downstream valve’s
setpoint. This pressure is sensed by the Type 6492HM
(or 6492HTM) safety override pilot. As downstream
pressure increases the safety override pilot closes,
reducing loading pressure to the main valve, which
positions the main valve to maintain downstream
pressure as specied per ASME Boiler and Pressure
Vessel Code, section VIII.
In the event that the upstream valve fails, the
downstream regulator will prevent downstream
pressure from rising above safe operating levels.
It is recommended to install some type of warning
system, such as a sentinel relief valve, to warn the
operator that a valve has failed in the system. This
will prevent prolonged operation with one valve, which
could cause valve trim wear and noise associated with
operation at high dierential pressures.
When operating in most steam systems, valve
setpoints should be in strict accordance to
ASME Boiler and Pressure Vessel Code, section VIII.
The Type 6492HM (or 6492HTM) safety override
pilot should be set at 10 psig / 0.69 bar or 10% above
maximum downstream operating pressure of the
second valve, whichever pressure is greater. For
example, most HVAC systems operate at 15 psig /
1.0 bar, so the safety override pilot should be set no
higher than 25 psig / 1.7 bar.
5
Type 92C