Electrolux Dishwashing
Undercounter Dishwasher with WS
Internet: http://www.electrolux.com/foodservice
IBA0202011-02-25Subject to change without notice
YELLOW CUTLERY CONTAINER 864242 864242 864242 864242 864242
STAND FOR UNDERCOUNTER DISHWASHER 860418 860418 860418 860418 860418
STAINLESS STEEL INLET HOSE KIT 864016 864016 864016 864016 864016
S/S WASH TANK FILTER KIT-UNDERC.ENTRY DW 864222 864222 864222 864222 864222
RINSE AID LEVEL PROBE KIT FOR UC+HT DW 864005 864005 864005 864005 864005
KIT TO MEASURE TOTAL/PART.WATER HARDNESS 864050 864050 864050 864050 864050
KIT 4 PLASTIC BOXES FOR CUTLERY-YELLOW 865574 865574 865574 865574 865574
INTEGRATED HACCP KIT FOR UC, HT AND POTW 864001
HACCP PRINTER KIT FOR UC, HT AND POTW 864002
DRAIN PUMP KIT FOR 50HZ DISHWASHERS 864012 864012
DETERGENT PUMP KIT 864218 864218 864218 864218
DETERGENT LEVEL PROBE KIT FOR UC+HT DW 864004 864004 864004 864004 864004
COVER GRID FOR SMALL/LIGHT ITEMS IN RACK 867016 867016 867016 867016 867016
BASKET FOR 5 TRAYS 530X325MM-RED 867006 867006 867006 867006 867006
BASKET FOR 48 SMALL CUPS/24 CUPS-BLUE 867007 867007 867007 867007 867007
BASKET FOR 18 DINNER PLATES 240MM-YELLOW 867002 867002 867002 867002 867002
304 AISI BACK PANEL FOR UC+WS ENTRY LEV. 864297 864297 864297 864297 864297
ACCESSORIES
YELLOW CUTLERY CONTAINER 1 1 1 1 1
BASKET FOR 18 DINNER PLATES 240MM-YELLOW 1 1 1 1 1
INCLUDED ACCESSORIES
Convertible to 230 V / 3 / 50 Hz;
230 V / 1+N / 50
Hz
230 V / 3 / 50 Hz;
230 V / 1+N / 50
Hz
230 V / 3 / 50 Hz;
230 V / 1+N / 50
Hz
Supply voltage 230 V, 1N, 50 230 V, 1N, 50 400 V, 3N, 50 400 V, 3N, 50 400 V, 3N, 50
Net weight - kg. 54 54 54 54 54
total power 3.65 3.65 5.35 5.35 5.35
Rinse pump 0.26 0.26 0.26 0.26 0.26
drain pump 0.034 0.034 0.034
Power - kW
Boiler elements - kW 2.8 2.8 4.5 4.5 4.5
Boiler capacity - lt. 5.8 5.8 5.8 5.8 5.8
water consumption - lt./cycle 3.3 3.3 3.3 3.3 3.3
temperature during rinse - °C 85 85 85 85 85
duration - sec. 16 16 16 16 16
Hot rinse cycle
electrical elements - kW 2 2 2 2 2
power pump - kW 0.736 0.736 0.736 0.736 0.736
tank capacity - lt. 33 33 33 33 33
temperature -°C 55-65 55-65 55-65 55-65 55-65
Washing cycle
height 330 330 330 330 330
depth 500 500 500 500 500
width 500 500 500 500 500
Cell dimensions - mm
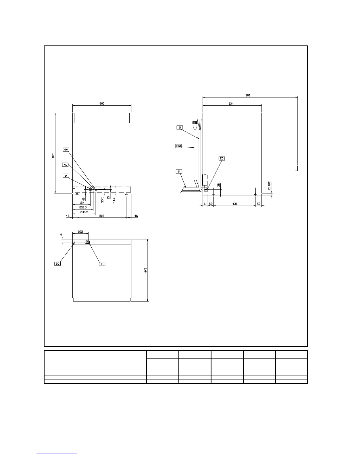
height 820 820 820 820 820
depth 610 610 610 610 610
width 600 600 600 600 600
External dimensions - mm
Basket capacity/h 30 30 30 30 30
Dishes capacity/h 540 540 540 540 540
Duration cycles - sec. 120/180 120/180 120/180 120/180 120/180
N° of cycles 2 2 2 2 2
Rinse aid dispenser ●●●●●
Detergent dispenser ●
Rinse Booster Pump ●●●●●
Drain pump ● ● ●
Water softener ●●●●●
Thermometer ●●●●●
pressure min- bar 1 1 1 1 1
hardness - °f >14 >14 >14 >14 >14
temperature - °C 50 50 50 50 50
Water supply
TECHNICAL DATA
NUC1WS
400142
NUC1DPWS
400143
NUC3WS
400145
NUC3DPWS
400147
NUC3DDWS
400148
• Salt loading tap externally
installed and ergonomically
shaped for easy opening and salt
loading. No reaching inside
machine or risk of salt spillage
inside washing tank (in compliance
with all water authority regulations
including WRAS).
• Simple control panel with digital
display including: on/off button,
regeneration button, clean cycle
and/or drain (when pump
installed), allows on-site
personalization of washing and
rinsing cycle times and
temperatures as well as precise
rinse aid and detergent quantities
depending on the customers
needs.
• Pre-arrangement for HACCP
system implementation and
Energy Management device.
EASY ON THE ENVIRONMENT
• 98% recyclable by weight.
• CFC free packaging.
• In compliance with H
requirements.
• Low noise level.
• Developed and produced in ISO
9001 and ISO 14001 certified
factory.
* Duration cycles: declared actual cycle
duration times can extend when water
supply temperature is lower than
indicated.