
Electrical Specifications
The raised vent is supplied with a 28" (71.1 cm) power cord
with a three prong plug. Plug it directly into a three prong
electricamoutlet meeting the requirements below. Do not
use an extension cord.
The correct voltage, frequency and amperage must be sup-
plied as specified below. The circuit must be protected by a
properly sized circuit breaker or time-delay fuse.
Electrical Supply Requirements
A three prong electrical OUtletconnected to a 120 Vac,
60 HZ,15 Ampl grounded, dedicatedl sing!e phase circuit
is required.
The above specifications are for reference only. If the
power supply requirements shown above do not agree
with those listed on the product data label, use the rat-
ings on the label.
, The customer must supply 3 conductor wiring/conduit
with minimum current carrying capacity of 8 Amps.
to supply power to the remote or in-line blower from
the raised vent. See General System Layout and
Planning the Duct Work for further details.
, It is the owner's responsibility to ensure that electrical
outlet is installed by a licensed electrician. The electri-
cal installation must comply with the latest revision of
the National Electric Code ANSIiNFPA 70* (latest revi-
sion) and local codes and ordinances.
*A copy of this standard may be obtained from:
Nationat Fire Protection Association
1 Batterymarch Park
Quincy, Massachusetts 02269o9101
Locate the electrical outlet in an accessible location,
so that the power plug can be disconnected for service
without removing the range/cooktop or raised vent from
the cabinet.
Planning the Installation
General System Layout
The vent system consists of the raised vent itself and a single
Dacor approved remote or in-line blower (see page 6).
WARNING
- Failure to install an approved remote or in-line blower
or proper duct work will result in a back draft andtor
the insufficient venting of smoke and fumes.
• To reduce the risk of personal injury caused by reach-
ing over a hot appliance, cabinet storage space
located directly above the rangelcooktop should be
avoided.
• Follow the instructions and diagrams for minimum
safe clearances and installation location in these
instructions, the appliance installation instructions and
the remote or in-line blower installation instructions.
Failure to do so may result in a fire or safety hazard.
, Install the raised vent and range/cooktop so that they
can be removed if service is required.
, Refer to the rangeicooktop installation instructions for
the minimum cutout dimensions specific to the particu-
lar raised vent model being installed.
Plan the installation so that all minimum dimensions
are met or exceeded. All contact surfaces between the
raised vent and any cabinets or walls must be solid and
at right angles.
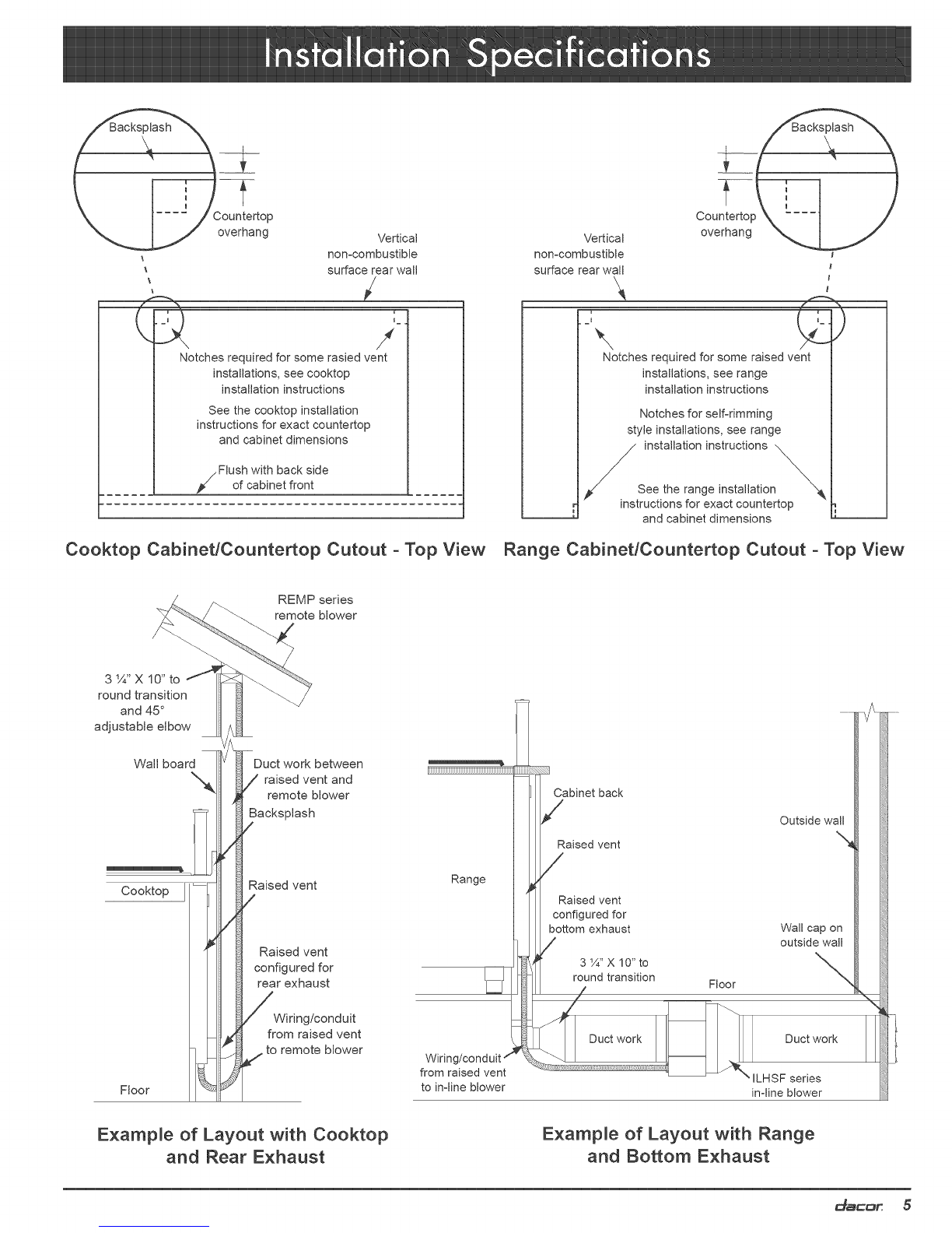
The raised vent exhaust may be configured to vent
through the back, the bottom or through one of the
sides. Allow room for the exhaust duct coming out
of the unit. See Planning the Duct Work for further
details.
The maximum allowable duct run must be taken
into consideration when determining the layout. See
Planning the Duct Work for further details.
The raised vent is equipped with adjustable anchor
legs to accommodate various cabinet heights.
Wire the remote or indine blower to turn on when the
raised vent is turned on. Run the blower wiring/conduit
parallel to the duct work, connecting it to the raised
vent on one end and the blower on the other. There are
7/8" access holes in the bottom and side of the raised
vent for connecting the conduit'strain relief.
Front of unit
Blower wiring
access hole in
side
/
Blower wiring access
hole in bottom
E_ectrica_ Access Ho_e Locations