Eseguire i seguenti controlli prima di aggiungere l'acqua
• che i collegamenti idronici siano ssati in maniera corretta
• che tutte le viti della angia siano serrate
• che i collegamenti elettrici siano serrati correttamente;
un serraggio insuciente può causare problemi di
funzionamento e di surriscaldamento
• che sia stata eseguita la messa a terra di tutti i componenti
installati
• che nessun attrezzo o altro oggetto estraneo sia stato
dimenticato all'interno dell'unità
• che l'unità sia in posizione stabile
• che l'interruttore automatico dell'elemento riscaldante sia
spento
• che il termostato dell'elemento riscaldante sia impostato
sulla corretta temperatura
Dopo aver aggiunto l'acqua, eseguire i seguenti controlli:
• che non vi siano perdite
• che l'impianto sia spurgato; uno spurgo insuciente può
danneggiare l'elemento riscaldante
Non accendere gli interruttori automatici dell'elemento
riscaldante no a quando l'impianto non è stato
completamente spurgato.
Consultare il manuale delle Informazioni di Sicurezza.
Al ne di garantire le prestazioni e l'adabilità, il sistema
deve essere sottoposto a manutenzione.
La garanzia del prodotto sarà annullata in caso di
manutenzione errata o incompleta.
L'utilizzatore non è autorizzato ad aprire l'unità o a
rimuovere parti di essa.
Qualsiasi operazione di manutenzione che richieda
l'apertura dell'unità deve essere eseguita da personale
qualicato.
Le seguenti operazioni devono essere eseguite almeno una
volta all'anno:
• sostituire l'anodo ogni 6-12 mesi
• eseguire la pulizia interna
• controllare il vaso di espansione
• controllare l'usura dei componenti
• controllare i set point e i punti di carica
• controllare i dispositivi di sicurezza
• controllare la tenuta dei collegamenti elettrici
• controllare i collegamenti di messa a terra
• controllare l'assenza di perdite d'acqua
• controllare il funzionamento e i parametri
• controllare la pressione del sistema
Controlli preliminari
Manutenzione
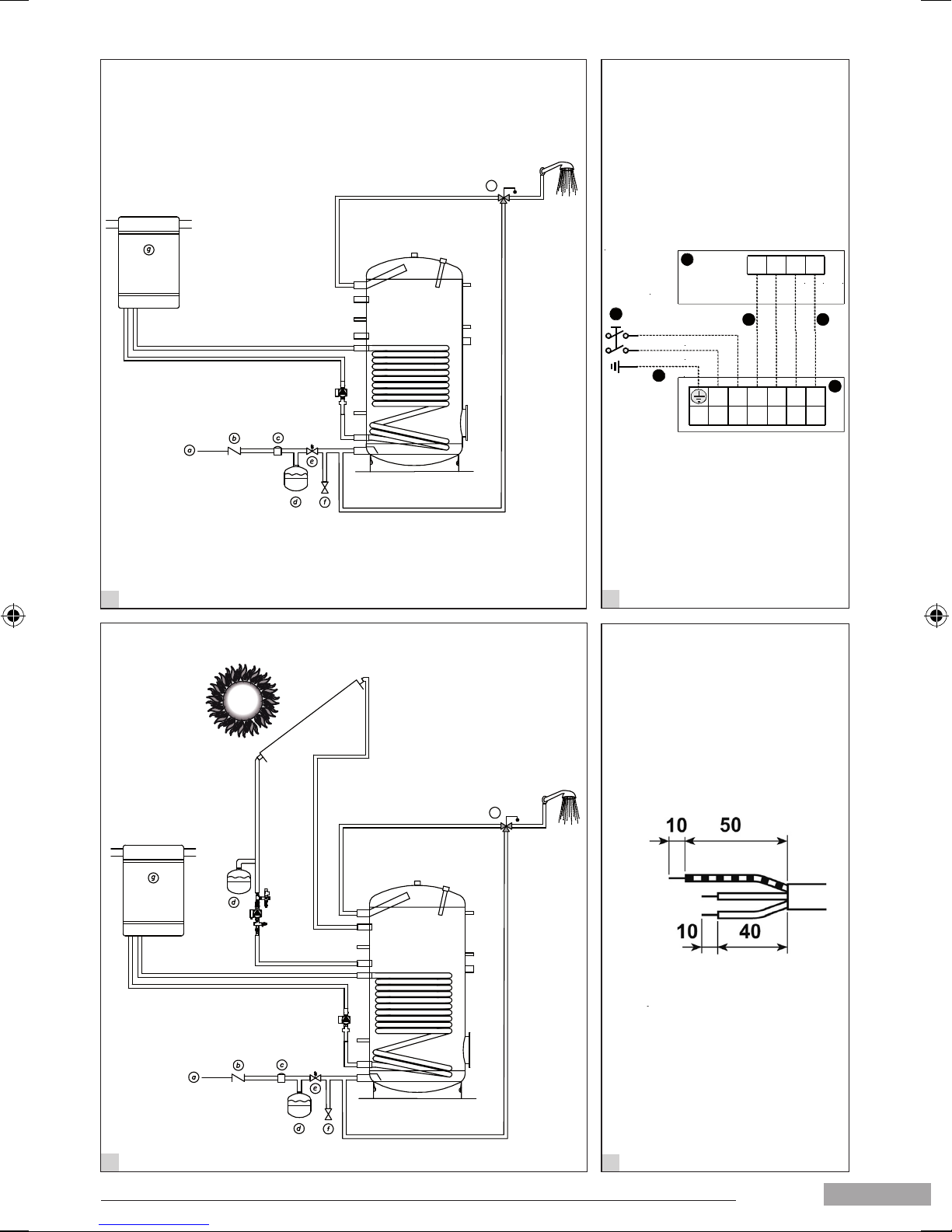
Alimentazione
Dimensionare il cavo, i cavi devono essere del tipo H07 RN-F.
In base alle istruzioni di installazione, tutti i dispositivi per la disconnessione dalla rete
di alimentazione devono avere un'apertura dei contatti (4 mm) per consentire la totale
disconnessione conformemente alle condizioni previste dalla classe di sovratensione III.
Per prevenire eventuali rischi, il cavo di alimentazione deve essere sostituito unicamente dai tecnici
del servizio clienti (attacco di tipo Y).
Installazione
Rimuovere la copertura dal quadro elettrico.
Far passare i cavi attraverso la canalina dei cavi.
Collegare i cavi come mostrato nella g. 5 e nella g. 6.
Fissare i cavi con l'apposito passacavo in dotazione.