
VERTICAL CONTACT TOASTER
2P/N 1011334 Rev. I 04/20
General
This manual provides the safety, installation, and
operating procedures for the Vertical Contact Toaster
Model VCT-2000. We recommend that all information
contained in this manual be read prior to installing and
operating the unit.
Your Vertical Contact Toaster Model VCT-2000 is
manufactured from the finest materials available and
assembled to our strict quality standards. This unit
has been tested at the factory to ensure dependable
trouble-free operation.
Warranty Information
Please read the full text of the Limited Warranty in this
manual.
OWNER INFORMATION
TABLE OF CONTENTS
IMPORTANT! Keep these instructions for future reference. If the unit changes
ownership, be sure this manual accompanies the equipment.
If the unit arrives damaged, contact the carrier imme-
diately and file a damage claim with them. Save all
packing materials when filing a claim. Freight damage
claims are the responsibility of the purchaser and are
not covered under warranty.
The warranty does NOT extend to:
• Damages caused in shipment or damage as
result of improper use.
• Installation of electrical service.
• Normal maintenance as outlined in this manual.
• Malfunction resulting from improper maintenance.
• Damage caused by abuse or careless handling.
• Damage from moisture into electrical
components.
• Damage from tampering with, removal of, or
changing any preset control or safety device.
Owner Information .....................................................2
General......................................................................2
Warranty Information .................................................2
Service/Technical Assistance ....................................3
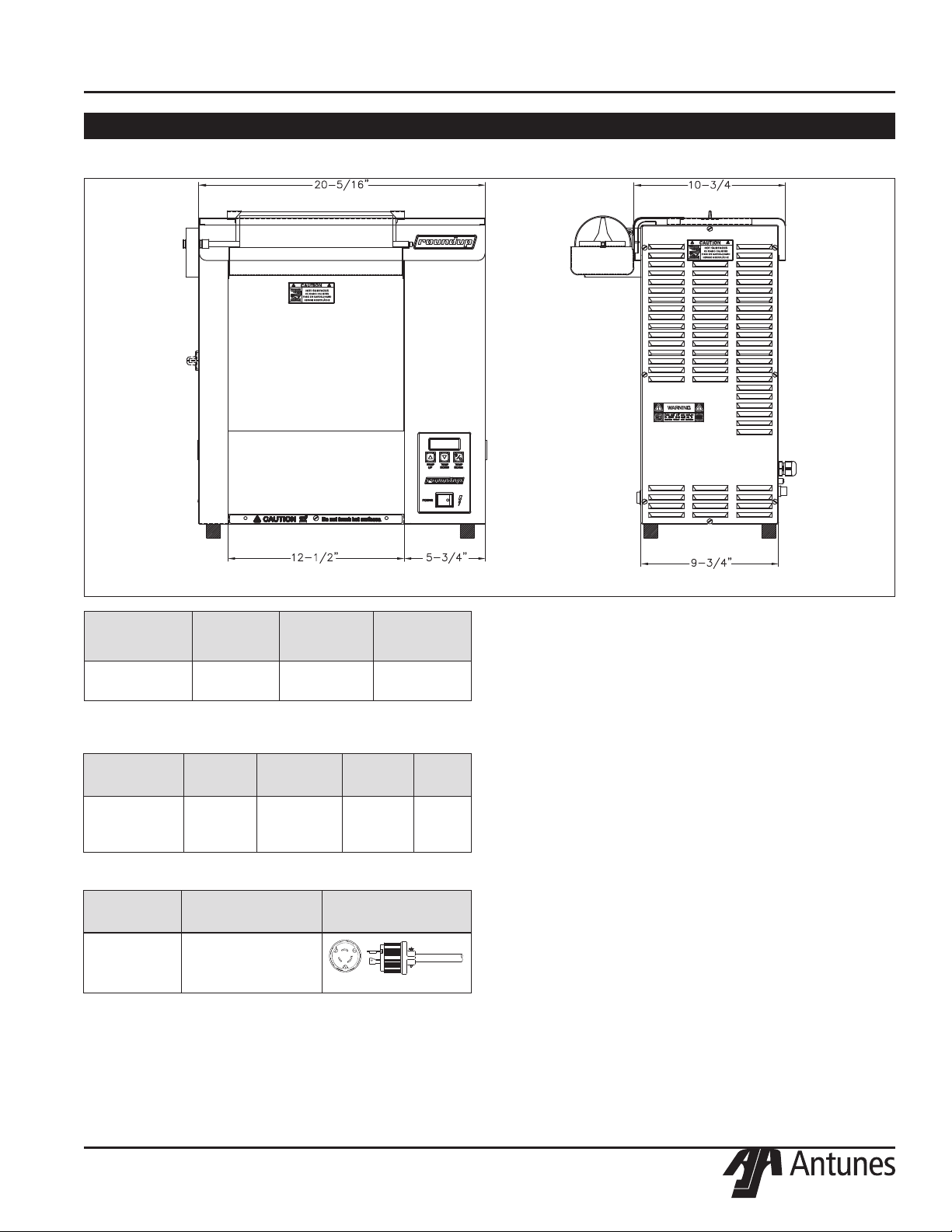
Specifications .............................................................5
Dimensions................................................................5
Electrical Ratings.......................................................5
Electrical Cord & Plug Configurations .......................5
Model & Mfg. No........................................................5
Description.................................................................5
Configuration .............................................................5
Installation...................................................................6
Unpacking..................................................................6
Equipment Setup.......................................................6
Assembling the Unit ..................................................6
Operation.....................................................................8
Operating Instructions ...............................................8
Temperature Adjustments..........................................8
Hi-Limit Reset Button ..............................................10
Fault Codes .............................................................10
Maintenance.............................................................. 11
Daily.........................................................................11
Replacing the Black and Silver Release Sheet (Every
4–6 Weeks) .............................................................12
Replacing the Belt Wraps
(Every 3–6 Months) .................................................12
Checking the Conveyor Belt Chains
(Every 3–6 Months) .................................................13
Checking the Roller Tensioners
(every 3–6 months) .................................................14
Cleaning the Top Fan ..............................................15
Troubleshooting .......................................................16
Replacement Parts ...................................................20
Wiring Diagram.........................................................26
Notes..........................................................................27
Limited Warranty ......................................................28