
ABB Power T&D Company Inc.
Power Automation and Protection Division
Coral Springs, FL 33065
Instruction Leaflet
All possible contingencies which may arise during installation, operation or maintenance, and all details and
variations of this equipment do not purport to be covered by these instructions. If further information is desired
by purchaser regarding this particular installation, operation or maintenance of this equipment, the local ABB
Power T&D Company Inc. representative should be contacted.
Printed in U.S.A.
Before putting protective relays into ser-
vice, make sure that all moving parts oper-
ate freely, inspect the contacts to see that
they are clean and close properly, and oper-
ate the relay to check the settings and elec-
trical connections.
1. APPLICATION
These relays have been specially designed and
tested to establish their suitability for Class 1E
applications in accordance with the ABB Power
T&D Company program for Class 1E Qulification
Testing ad detailed in bulletin STR-1. Materials
have been selected and tested to insure that the
relays will perform their intended functions for their
design life when operated in a normal environment
as defined by ANSI standards when exposed to
radiation levels up to 104rads, and when subjected
to seismic events producing a Shock Response
Spectrum within the limits of the relay rating.
“Class 1E” is the safety classification of the elec-
tronic equipment and systems in nuclear power
generating stations that are essential to emergency
shutdown of the reactor, containment isolation,
cooling the reactor, and heat removal from the con-
tainment and reactor, or otherwise are essential in
preventing significant release of radioactive mate-
rial to the environment.
The KLF relay is a single-phase relay connected to
the ac side of a synchronous machine and contains
three units connected so that the operation of two
units sounds an alarm warning the operator of a
low excitation condition, and the additional opera-
!CAUTION
41-748.21C
Type KLF
Loss-of-Field Relay
(For Class 1E Application)
Supersedes I.L. 41-748.21B, Dated December 1993
( | ) Denotes Changed Since Previous Issue
tion of the third unit sets up the trip circuit. The
relay can be applied without modification to all
types of synchronous machines, such as turbo gen-
erators, water wheel generators or motors.
The KLF relay is designed for use with 3-phase 3-
wire voltage supply and may use wye or delta-con-
nected voltage transformers. The type KLF-1 relay
may be used to increase security during inadvert-
ent loss-of-potential (such as due to a blown poten-
tial fuse).
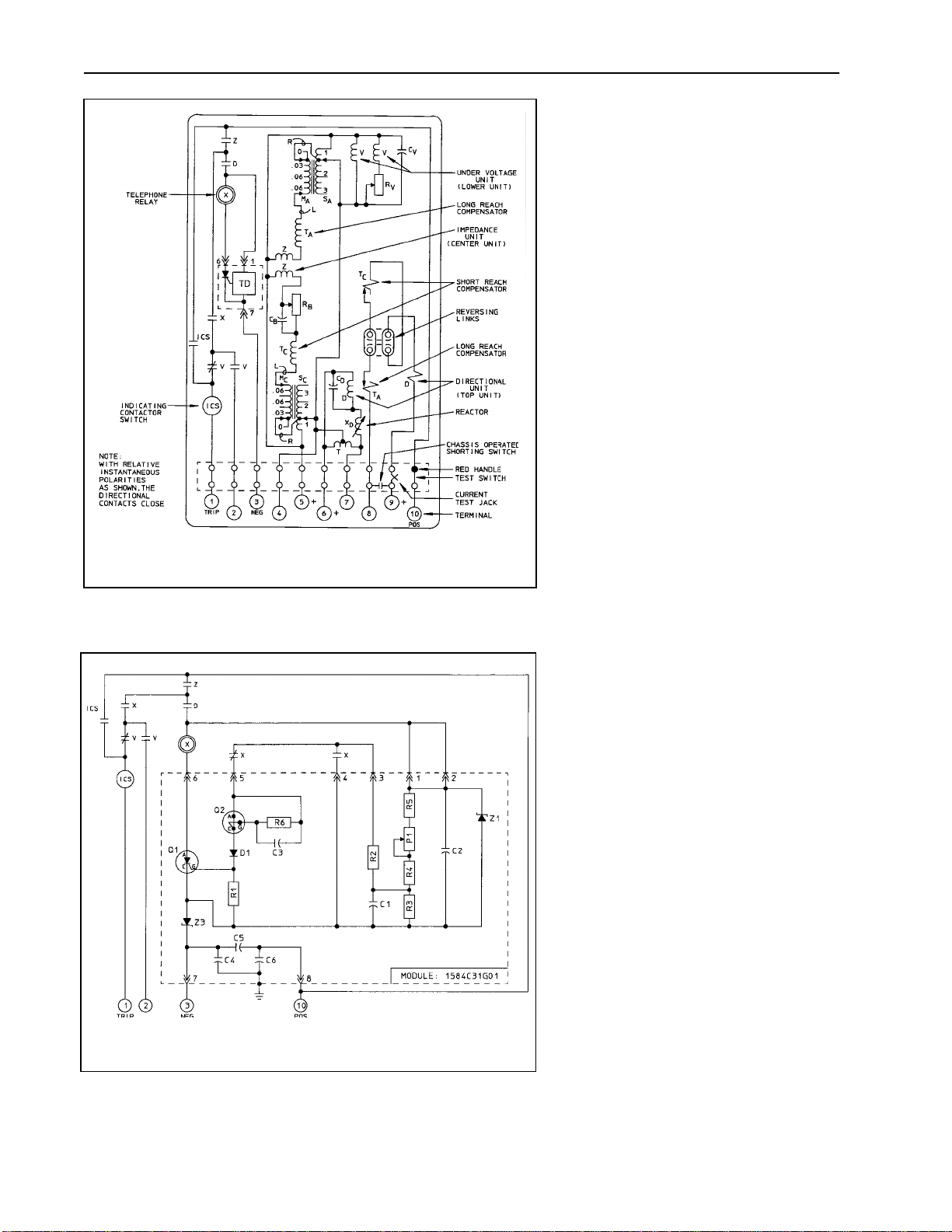
2. CONSTRUCTION
The relay consists of two (2) air-gap transformers
(compensators), two tapped auto-transformers,
one reactor, one cylinder-type distance IT, direc-
tional unit with adjustable reactor, an under-voltage
unit with adjustable resistor, telephone relay with
solid state time delay circuit, and an ICS indicating
contactor switch.
2.1 Compensator
The compensators, which are designated TAand
TC, are two (2) winding air-gap transformers (Fig-
ure 2). The primary or current winding of the
long-reach compensator TAhas seven taps which
terminate at the tap block. They are marked 2.4,
3.16, 4.35, 5.93, 8.3, 11.5, 15.8. The primary wind-
ing of the short-reach compensator TCalso has
seven taps which terminate at this tap block. They
are marked 0.0, 0.91, 1.27, 1.82, 2.55, 3.64, 5.1.
Voltage is induced in the secondary which is pro-
portional to the primary tap and current magnitude.
This proportionality is established by the cross sec-
tional area of the laminated steel core, the length of
an air gap which is located in the center of the coil,
and the tightness of the laminations. All of these
factors which influence the secondary voltage pro-
portionality have been precisely set at the factory.
Effective: January 1997