
Chaveador de segurança C571, C573
DIN EN / IEC 60947-5-1
Instruções de Serviço Nº de enc.: 2CDC 113 016 M9701 Português
62CDC 113 016 M9701
Tendo em consideração as condições de ambiente, é necessário instalar
os dispositivos em quadros de distribuição do grau de proteção IP32, IP43
ou IP54.
Os produtos aqui descritos foram concebidos para assumir como uma parte de
uma unidade total ou de uma máquina, funções relacionadas com a segurança.
Por norma, um sistema completo orientado para a segurança, contém sensores,
unidades de interpretação, aparelhos sinalizadores e conceitos para circuitos
de desconexão seguros. A responsabilidade pela garantia de um correto funcio-
namento geral recai sobre o fabricante de uma unidade ou máquina. A ABB AG,
suas filiais e sociedades de participação financeira (seguidamente designadas
"ABB") não estão em condições de garantir todas as caraterísticas de uma uni-
dade completa ou máquina, não concebida pela ABB.
A ABB não assume a responsabilidade por recomendações implicadas ou forne-
cidas pela seguinte descrição. Com base na descrição que se segue não podem
ser interpretados novos direitos de garantia, qualidade de garantia ou indemni-
zações, que vão para além das condições gerais de fornecimento da ABB.
Os chaveadores de segurança C571 / C573 podem ser utilizados em dispositivos
de PARAGEM DE EMERGÊNCIA segundo a norma DN EN / IEC 60947-5-5 e em
circuitos de corrente de segurança segundo a norma DN EN / IEC 60204-1, p. ex.
no caso de coberturas móveis ou de portas de proteção.
Com o equipamento pode ser atingido máx. o nível de performance PL e / Cat. 4
conforme a DIN EN ISO 13849-1 ou SIL 1 conforme DN EN / IEC 62061. Depen-
dendo da avaliação de risco, podem ser necessárias providências adicionais no
circuito do sensor (p. ex. instalação protegida). Na utilização do C571 / C573
como expansão de contato, o PL / Cat. / SIL atingível corresponde àquele do
equipamento básico. O usuário deve realizar uma avaliação do sistema geral.
O chaveador de segurança C573 tem três circuitos de autorização (circuitos
seguros), como circuitos normalmente abertos, e um circuito de sinalização
como circuito normalmente fechado.
O chaveador de segurança C571 tem dois circuitos de autorização (circuitos
seguros) como circuitos normalmente abertos. A quantidade dos circuitos de
autorização pode ser aumentada ligando um ou mais módulos de ampliação
C579. Três LEDs mostram respectivamente o estado de operação e a função.
Quando se desbloqueia o botão de PARAGEM DE EMERGÊNCIA e/ou o sensor
de limite e quando se atua o botão LIGAR, verifica-se se o funcionamento da
ligação interna da chaveadores de segurança, e dos contatores externos, se
processa corretamente.
Ligue o botão de PARAGEM DE EMERGÊNCIA e/ou o sensor de limite do con-
dutor de alimentação entre A1 e +24 V e/ou L24 V. Se a avaliação se processar
através de dois canais, então feche o canal 2 entre A2 e 0 V e/ou N. Ligue o
botão LIGAR em série com os contatos normalmente fechados dos contatores
externos (circuito de retorno) aos bornes Y1, Y2 (consulte os ex. de ligação nas
fig. V a VIII).
É imprescindível que respeite a proteção por fusíveis especificada,
só assim é possível garantir um desligar seguro em caso de avaria.
Para mais informações e números de encomenda, consulte o catálogo.
O funcionamento seguro do aparelho apenas pode ser garantido se forem utilizados
os componentes certificados.
Ler e compreender estas instruções antes da instalação,
operação ou manutenção do equipamento.
PERIGO
Tensão perigosa.
Perigo de morte ou ferimentos graves.
Desligue a alimentação elétrica e proteja contra o
religamento, antes de iniciar o trabalho no equipamento.
CUIDADO
O funcionamento seguro do aparelho apenas pode ser garantido se forem
utilizados os componentes certificados.
Indicação importante
Áreas de aplicação
Descrição do funcionamento e indicações de conexão
Ocupação
dos bornes Tensão de
operação A1
A2 L/+
N/–
Sensores Y1, Y2 Botão LIGAR, circuito de retorno
Saídas 13, 14
23, 24
33, 34
41, 42
Circuito de autorização 1 (contato NA)
Circuito de autorização 2 (contato NA)
Circuito de autorização 3 (contato NA)*
Circuito de sinalização (contato NF)*
*) apenas para C573
Comprimento
de fiação em 2 x 1,5 mm2máx. 1000 m (comprimento total para os com-
ponentes sensoriais e alimentação de corrente)
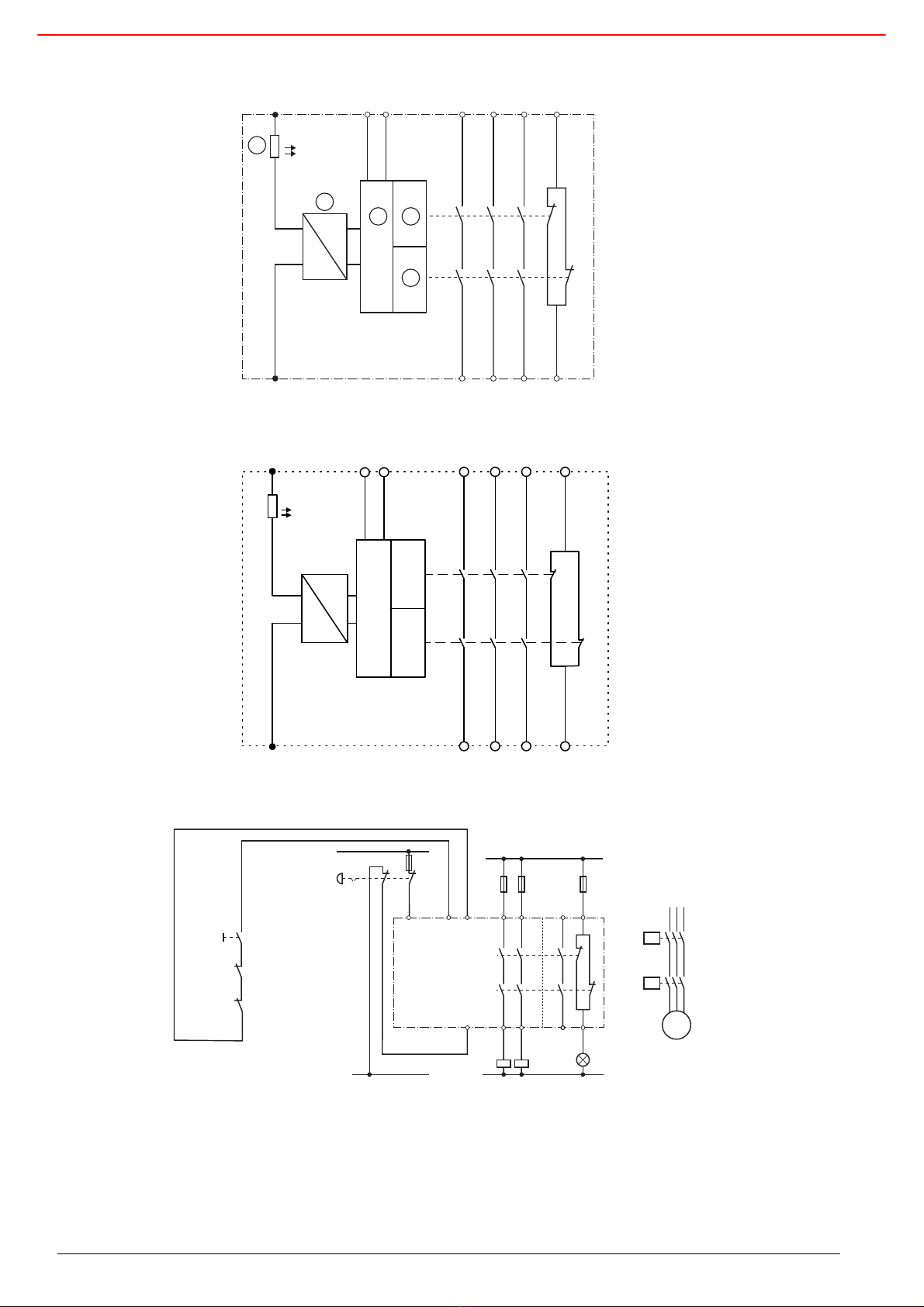
Figuras Fig. I: Desenho cotado (dimensões em mm)
Fig. II: Grampo de montagem/Cage Clamp
Figuras Fig. IIIa: Dados de segurança
Fig. IIIb: Dados de aplicação
Fig. IV: Ligação interna: ¿Fusível de coef. temp. pos., ÀFonte de
alimentação, ÁLógica comando, ÂCanal 1, ÃCanal 2
Fig. V: PARAGEM DE EMERGÊNCIA, um canal
Fig. VI: PARAGEM DE EMERGÊNCIA, dois canais
Fig. VII: Monitoramento da porta de proteção, um canal
Fig. VIII: Monitoramento da porta de prot., dois canais
Fig. IX: C571 / C573 como expansão de contato
Operação
LEDs Operação
POWER Canal 1 Canal 2 Rede PARAGEM DE
EMERGÊNCIA Tecla LIGAR Circuitos de
auto-rização
Ligado não atuado foi acionado fechado
atuado não atuado aberto
não atuado não atuado aberto
Erro
• Relé soldado
• Contator do motor soldado
• Defeito na eletrônica
aberto
Defeitos nas ligações transversais e/
ou à terra no circuito de PARAGEM
DE EMERGÊNCIA (corrente de
defeito mín. IKmin = 0,5 A; fusível com
coeficiente de temp. positivo dispara)
e/ou tensão de alimentação falta
Dados técnicos
Temperatura ambiente permitida Tu
Operação/Armazenamento –25 até +60 °C / –40 até +80 °C
Grau de proteção conforme a norma
DIN EN / EN 60529 IP40, IP20 nos bornes
Tensão de isolamento medida Ui300 V
Resistência à tensão de carga medida Uimp 4kV
Tensão de alimentação medida Us24 V AC / DC
Potência medida 1,5 W
Intervalo de atividade DC 0,85 até 1,2 x Us
Intervalo de atividade AC 0,85 até 1,1 x Us
Resistência a choques 8 g / 10 ms
Peso 0,240 kg
Tempo de recuperação min. 200 ms (DC) / 300 ms (AC)
Tempo de desoperação max. 200 ms
Tempo de atuação máx. 150 ms
Categoria de uso,
seg. VDE 0660-200,
DIN EN / IEC 60947-5-1
Tensão de operação
medida Ue
(V)
Corrente de operação medida Ie
para carga de todos os circuitos de
autorização (A)
50 °C 60 °C 70 °C
AC-15 230 5 4,5 4
DC-13 24 5 4,5 4
115 0,2 0,2 0,2
230 0,1 0,1 0,1
Corrente perm. Ith 54,54
Proteção contra curto-circuito Fusíveis DIAZED
para circuito de autorização Classe de serviço gL(gG) 6 A/rápido 10 A
e circuito de sinalização Classe de serviço gL(gG) 6 A/rápido 6 A
para circuitos de liberação e
circuitos de sinalização É imprescindível observar a informação de usuário
pertinente! (Nº de enc.: C98130-A7524-A1-05-7419)
Note! This product is obsolete. For replacement see Sentry safety relays.