
EDA-Z5008, Z5020 & Z5100 –Technical Manual ZPControlTechMan_r105
_____________________________________________________________________________________________________
9
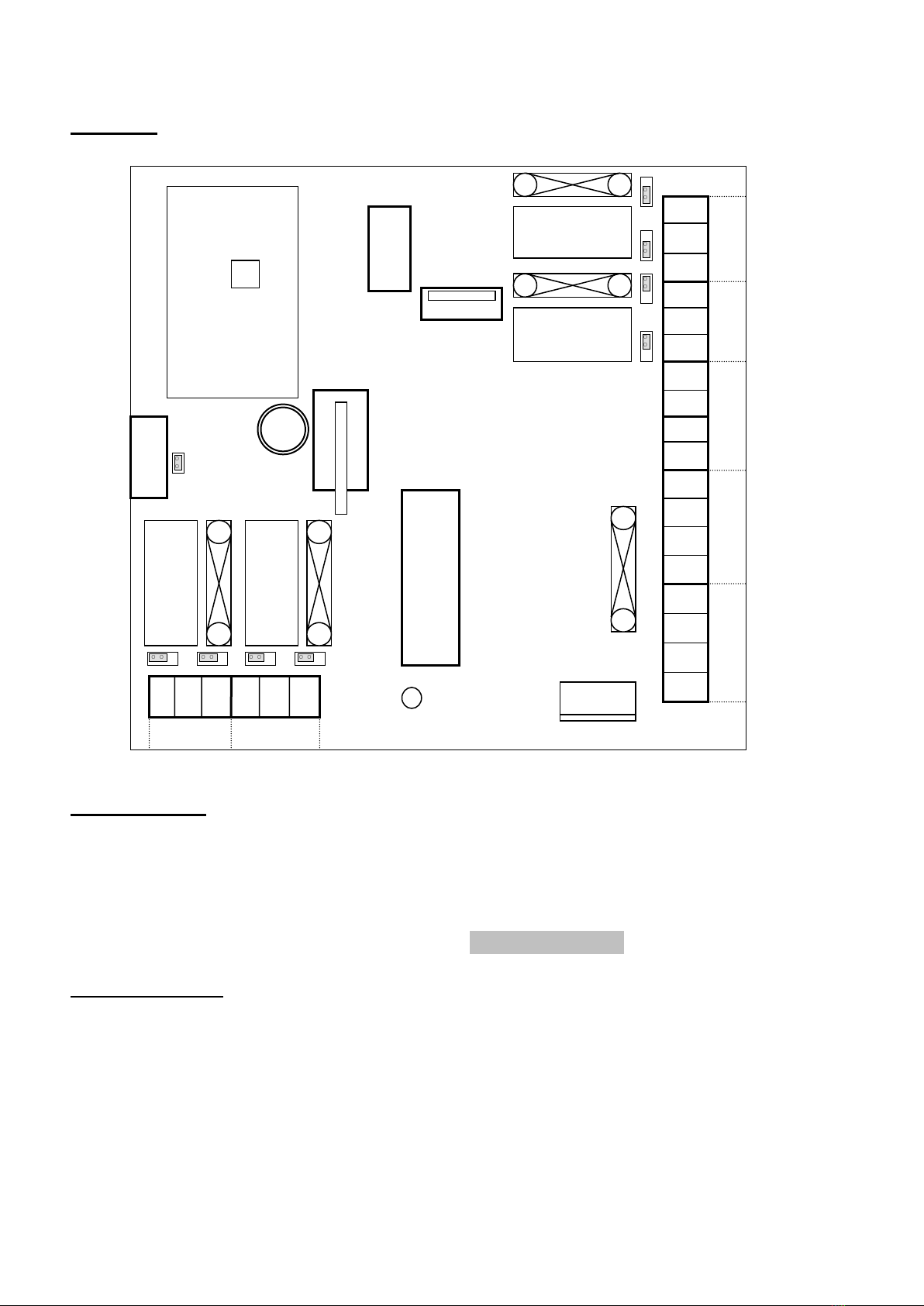
Battery
In order to meet EN54 Part 4, a Yuasa NP7-12 lead
acid battery should be fitted. This will give a 72
hour standby, assuming no external equipment (eg
wired antennas) has been added. If only 24 hours
standby is required and no external equipment has
been fitted then a 12V 2.8Ahr battery could be
fitted. Connect the battery using the supplied
terminal connections. The red wire is +12V and the
black wire is 0V. Do not confuse the colour of the
terminal connectors. Once connected, the Reset
button on the keypad can be pressed. If ‘Battery
Fault’ appears; check the connections and polarity. If the battery is connected incorrectly it is likely that
the fuse will blow. The wiring should be corrected and the fuse replaced.
The PSU will only charge batteries measuring 10.5V and above. This is a requirement of EN54-4 to cut
off charging at a point recommended by the battery manufacturer. Batteries measuring less than 10.5V
are regarded by the system as faulty and will not be charged. A ‘Battery Fault’ will be displayed on
screen. If the battery voltage is below 10.5V it will need to be removed from the panel to be charged
and reconditioned, or replaced. The battery voltage can be viewed on the PSU Info section of the 6.5 –
Panel Info menu.
When replacing the battery always do so with a product of equal specification. Always dispose of
batteries responsibly. Never dispose of batteries in general waste. If unsure contact your local
authority for guidance.
Antenna (if fitted)
The standard helical stub antenna
supplied with the panel should be
fitted to the antenna bracket
assembly before it is mounted into
the panel. Fit the antenna onto the
SMA connector as shown below.
This should be screwed hand tight.
Over tightening will cause the
antenna to break. The supplied
antenna retaining washer should
then be placed over the top of the
antenna. The antenna and bracket assembly should then be inserted through the antenna aperture
and mounted using the supplied M3 screw and an M3 serrated locking washer. Once mounted, the
antenna retaining washer prevents the stub antenna being unscrewed from outside the panel. Connect
the antenna assembly to the main processor board using the SMA connector. If a high gain remote
antenna is being used, the stub antenna and the antenna bracket assembly should be removed. The
new antenna should be fitted using a 50ΩSMA connector, suitable for use with RG58 c/u coaxial cable,
to the processor board. Cable runs should conform to the relevant sections of BS5839 and EN54. When
making off the cable, ensure that no stray shielding wires are shorting. Do not use non-radio
connectors as they will reduce the performance of the panel.