
036-21584-001 Rev. B (1004)
4Unitary Products Group
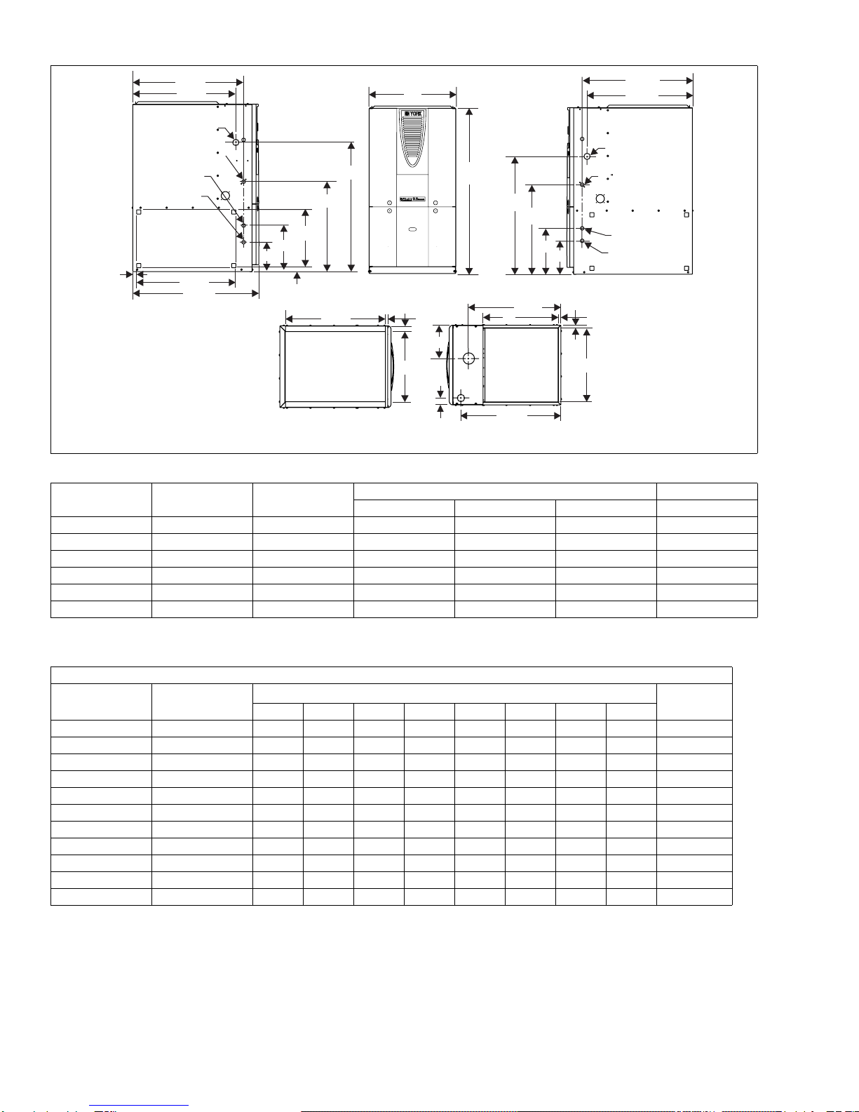
AIR FLOW DATA
HIGH / LOW SPEED COOLING AND HEAT PUMP CFM
40,000 INPUT - 3 Ton 60,000 INPUT - 3 Ton JUMPER SETTINGS
CFM m³/min CFM m³/min
High Low High Low High Low High Low COOL Tap ADJ Tap
1340 995 38.0 28.2 1330 900 37.7 25.5 A B
1205 885 34.1 25.1 1130 800 32.0 22.7 B B
1255 920 35.6 26.1 1220 850 34.6 24.1 A A
1150 835 32.6 23.7 1040 730 29.4 20.7 B A
1170 855 33.2 24.2 1120 770 31.7 21.8 A C
1025 755 29.0 21.4 920 650 26.1 18.4 C B
1045 780 29.6 22.1 950 660 26.9 18.7 B C
835 625 23.7 17.7 740 540 21.0 15.3 D B
950 705 26.9 20.0 860 610 24.4 17.3 C A
785 590 22.2 16.7 690 540 19.5 15.3 D A
865 665 24.5 18.8 790 570 22.4 16.1 C C
725 605 20.5 17.1 630 530 17.8 15.0 D C
80,000 INPUT - 3 Ton 80,000 INPUT - 4 Ton JUMPER SETTINGS
CFM m³/min CFM m³/min
High Low High Low High Low High Low COOL Tap ADJ Tap*
1310 890 37.1 25.2 1660 1110 47.0 31.4 A B
1100 740 31.2 21.0 1550 1050 43.9 29.7 B B
1220 830 34.6 23.5 1610 1070 45.6 30.3 A A
1000 670 28.3 19.0 1440 960 40.8 27.2 B A
1090 720 30.9 20.4 1470 990 41.6 28.0 A C
900 610 25.5 17.3 1370 920 38.8 26.1 C B
880 610 24.1 17.3 1290 850 36.5 24.1 B C
680 510 19.3 14.4 1130 790 32.0 22.4 D B
810 580 22.9 16.4 1230 850 34.8 24.1 C A
630 500 17.8 14.2 1050 720 29.7 20.4 D A
730 530 20.7 15.0 1110 760 31.4 21.5 C C
590 500 16.7 14.2 950 660 26.9 18.7 D C
100,000 INPUT - 5 Ton 120,000 INPUT - 5 Ton JUMPER SETTINGS
CFM m³/min CFM m³/min
High Low High Low High Low High Low COOL Tap ADJ Tap*
2210 1480 62.6 41.9 2280 1510 64.6 42.8 A B
1780 1180 50.4 33.4 1860 1190 52.7 33.7 B B
2040 1350 57.8 38.2 2090 1370 59.2 38.8 A A
1620 1050 45.9 29.7 1630 1060 46.2 30.0 B A
1840 1250 52.1 35.4 1880 1250 53.2 35.4 A C
1560 1010 44.2 28.6 1620 1030 45.9 29.2 C B
1470 940 41.6 26.6 1500 960 42.5 27.2 B C
1370 890 38.8 25.2 1410 880 39.9 24.9 D B
1460 930 41.3 26.3 1490 920 42.2 26.1 C A
1250 790 35.4 22.4 1290 790 36.5 22.4 D A
1310 810 37.1 22.9 1360 840 38.5 23.8 C C
1090 690 30.9 19.5 1140 690 32.3 19.5 D C
HIGH / LOW HEAT CFM
40,000 INPUT - 3 Ton 60,000 INPUT - 3 Ton JUMPER SETTINGS
CFM m³/min CFM m³/min
High Low High Low High Low High Low HEAT Tap ADJ Tap*
1045 740 29.6 21.0 1110 710 31.4 20.1 A Any
905 645 25.6 18.3 960 640 27.2 18.1 B Any
825 595 23.4 16.8 870 600 24.6 17.0 C Any
765 590 21.7 16.7 830 570 23.5 16.1 D Any
80,000 INPUT - 3 Ton 80,000 INPUT - 4 Ton JUMPER SETTINGS
CFM m³/min CFM m³/min
High Low High Low High Low High Low HEAT Tap ADJ Tap*
1330 880 37.7 24.9 1490 990 42.2 28.0 A Any
1180 810 33.4 22.9 1350 900 38.2 25.5 B Any
1100 730 31.2 20.7 1220 820 34.6 23.2 C Any
1010 670 28.6 19.0 1120 770 31.7 21.8 D Any
100,000 INPUT - 5 Ton 120,000 INPUT - 5 Ton JUMPER SETTINGS
CFM m³/min CFM m³/min
High Low High Low High Low High Low HEAT Tap ADJ Tap*
1880 1230 53.2 34.8 2150 1420 60.9 40.2 A Any
1670 1080 47.3 30.6 1930 1290 54.7 36.5 B Any
1530 980 43.3 27.8 1850 1190 52.4 33.7 C Any
1430 900 40.5 25.5 1660 1070 47.0 30.3 D Any
All CFM’s are shown at 0.5” w.c. external static pressure.These units have variable speed motors that automaticallyadjust to provide constant CFM from 0.0” to 0.6” w.c. static pressure. From
0.6” to 1.0” static pressure, CFM is reduced by 2% per 0.1” increase in static. Operation on duct systems with greater than 1.0” w.c. external static pressure is not recommended.
NOTE: At some settings, LOW COOL and/or LOW HEAT airflow may be lower that what is required to operate an airflow switch on certain models of electronic air cleaners. Consult the
instructions for the electronic air cleaner for further details.
The ADJ “D” tap should not be used.