6
2. System Design Overview/Applications
Notes:
A recommended electrical back box is always required for installation of this
product (see specifications).
The MRKP2E is specifically designed to work with the MX88 series, MRC88m,
and MRAUDIO8x8m (Firmware ver. 3.16 at the time of writing this manual –
always check the Xantech web site www.xantech.com to make sure that you
are running the latest available firmware version). It is NOT designed to work
with MRC88, MRAUDIO8x8, MRC44, MRAUDIO4x4, or BXAUDIO4x4.
For the sake of simplicity, we regularly make singular references to MX88
throughout this manual. Please note that these statements apply equally to
MRC88m and MRAUDIO8x8m as well.
The MRKP2E boasts full source control capability and a super bright TFT LCD
touch-screen and its current draw is therefore slightly higher than lesser
featured keypads such as the MRKP1/1E. As a result, in installations where
long CAT5 cable runs (see specifications section) are required and/or more
than one keypad is used per zone, MRC44CB1 connecting blocks and
782ERGPS High Current AC Adaptors may be required to be installed before
the first keypad for that zone.
The MRKP2/MRKP2E and MRKP1/1E use a newer, faster keypad
communications protocol than the old MRC88KP keypad, and therefore the
MRC88KP keypads cannot be used in the same zone together with MRKP2/2E
or MRKP1/1E. The MRKP2/2E and MRKP1/1E can however be used together
in the same zone.
Planning
Before installing the MRKP2E, it is essential to have a detailed and accurate
system design. The first step to a good design is to map the system. It is
advisable to mark up a copy of the house floor plan with speaker, keypad and
equipment locations, etc. Make sure that all locations are decided upon before
pre-wiring so that all necessary wiring and installation hardware is in place.
It is essential that ALL system components are accounted for prior to the pre-
wire stage. After establishing design goals, make a detailed list of all
components. Include source equipment, keypad, expansion hubs, local source
wall plates, IR emitters, etc. Always fully test all actual components to be
installed before taking them to the jobsite. This will help streamline and
expedite any troubleshooting on site in case it becomes necessary.
7
Pre-Construction
In a pre-construction installation, walls and ceilings are open with no drywall
installed. This is desirable and allows the installer greater access than in retro-
fit applications. Before actually running any wire or cable, take the time to look
around each room or area of the house and plan your wire paths for maximum
efficiency. Look for routes through uncluttered parts of the stud wall or ceiling
that allow you to group all low-voltage (video, speaker wires, CAT-5, telephone,
etc.) wires wherever possible. It is a good practice to label both ends of all
cables and to protect wires by tying a plastic bag over the ends.
Note: Do not run low-voltage wires closer than 12" from high-voltage wires. If
necessary, cross low-voltage wires at a 90º angle to prevent interference.
Retro-Fit Wiring/ Post Construction
Retro-fit installations are more difficult to complete than pre-construction
because walls and ceilings are intact. Typically wires must be fished into
position through walls, floors and ceilings. Holes must be cut; speakers
mounted directly in the ceiling or walls with no electrical back- brackets and
keypads and local source wall plates must be mounted in existing drywall.
Pre-Wiring
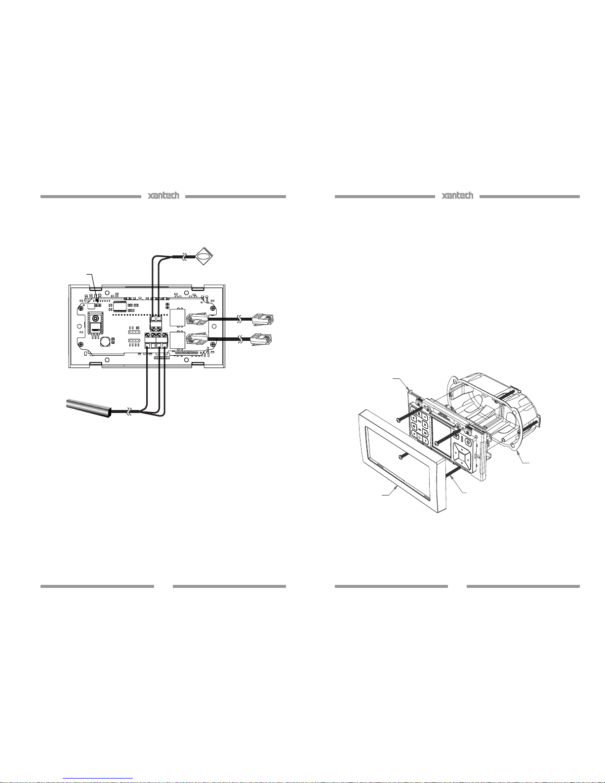
Wiring between MX88 and MRKP2E
The MX88 and all associated components are wired using CAT-5, CAT-5e,
CAT-6, or CAT-7 cable terminated to the T568A or T568B Wiring Standard
(Figure 2.1). Please note that all references made throughout this manual to
CAT-5 apply to CAT-5e, CAT-6, and CAT-7 as well. When pre-wiring the
system, run lengths of CAT-5 from the pre-determined MRC88m location to
each Keypad or Touch Panel location. The CAT-5 cable routes all Power,
Control, Communication, and IR information needed for full system operation.
Important: While there are two wiring standards, it is very important to be
consistent to one configuration throughout the entire system. Otherwise, the
system will not operate.
Speaker Wiring from MX88 to each zone
Speaker wiring will need to be separately routed from the MX88 to each zone.