
Manual 04176 ProAct II Actuator/Driver
Woodward 1
Contents
WARNINGS AND NOTICES............................................................................3
ELECTROSTATIC DISCHARGE AWARENESS ..................................................4
CHAPTER 1. GENERAL INFORMATION...........................................................5
Introduction.............................................................................................................5
CHAPTER 2. INSTALLATION........................................................................10
Unpacking.............................................................................................................10
Mounting...............................................................................................................10
Actuator Installation..............................................................................................10
Actuator Bracket...................................................................................................12
Electrical Connections..........................................................................................13
Power Supply .......................................................................................................14
Position Feedback Adjustment.............................................................................16
Actuator Travel.....................................................................................................17
CHAPTER 3. DESCRIPTION OF OPERATION.................................................18
Electronic Circuits.................................................................................................18
Actuator Position Signal .......................................................................................19
Actuator ................................................................................................................19
CHAPTER 4. TROUBLESHOOTING...............................................................20
Linkage and Actuator Stroke................................................................................20
CHAPTER 5. TECHNICAL SPECIFICATIONS..................................................21
Power Supply .......................................................................................................21
Actuator Position Feedback..................................................................................21
System Wiring ......................................................................................................21
Input Configurations .............................................................................................22
System Performance............................................................................................22
CHAPTER 6. PRODUCT SUPPORT AND SERVICE OPTIONS...........................24
Product Support Options......................................................................................24
Product Service Options.......................................................................................24
Returning Equipment for Repair...........................................................................25
Replacement Parts...............................................................................................25
Engineering Services............................................................................................26
Contacting Woodward’s Support Organization ....................................................26
Technical Assistance............................................................................................27
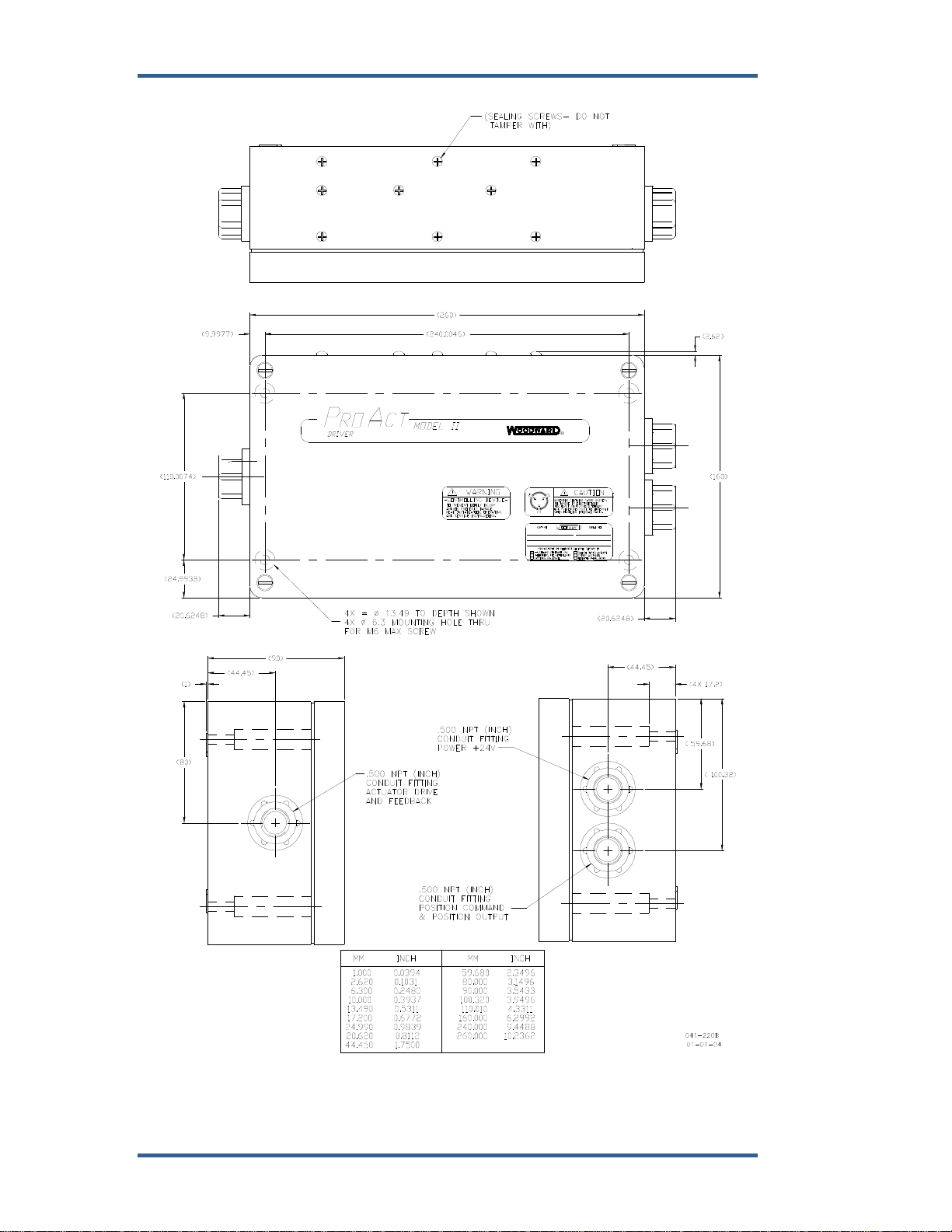
PROACT II ACTUATOR/DRIVER SPECIFICATIONS ........................................28
REVISION HISTORY....................................................................................29
DECLARATIONS.........................................................................................30