
8
Dimensions in parentheses are in
millimeters unless otherwise specified.
ELECTRICAL REQUIREMENTS
Required Power Supply
240 V AC, 60 Hz, 15 amp service
208 V AC, 60 Hz, 15 amp service
Maximum Connected Load
2.6 kW at 240 V AC
1.9 kW at 208 V AC
The Wolf electric fryer module requires a
separate, grounded 3-wire 240/208 V AC, 60 Hz,
15 amp service with its own circuit breaker.
The module is provided with a 4' (1.2 m)
flexible 3-wire conduit that makes a connection
to a junction box. The conduit consists of two
insulated hot lead conductors (copper) and one
insulated ground conductor (copper). Locate
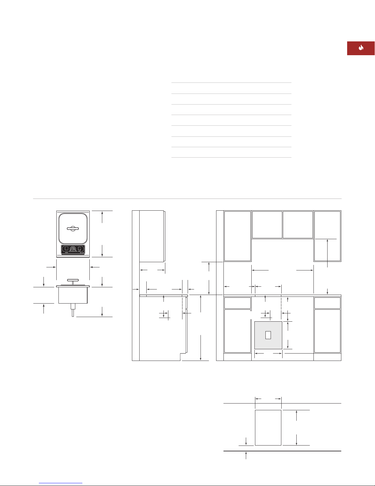
electrical within the shaded area shown in
the Installation Specifications illustration on
page 5.
You must follow all National Electrical Code
regulations. In addition, be aware of local
codes and ordinances when installing your
service.
IMPORTANT NOTE:
This appliance must be
installed in accordance with National Electrical
Codes, as well as all state, municipal and local
codes. The correct voltage, frequency and
amperage must be supplied to the appliance
from a dedicated, grounded circuit which is
protected by a properly sized circuit breaker or
time delay fuse. The proper voltage, frequency,
and amperage ratings are listed on the product
rating plate located on the underside of the
module. Refer to the illustration on page 3.
Verify that power is disconnected from
the junction box before proceeding.
For electrical installation, attach the conductors
to the residence wiring in accordance with
National Electrical Codes and all state, provin-
cial, municipal and local codes.
The wiring diagram covering the control circuit
is located inside the module control box.
The complete appliance must be properly
grounded at all times when electrical
power is applied.
Do not ground the appliance with the
neutral (white) house supply wire. A
separate ground wire must be utilized.
If aluminum house supply wiring is
utilized, splice the appliance copper wire
to the aluminum house wiring using
special connectors designed and agency
certified for joining copper and
aluminum. Follow the connector manu-
facturer's recommended procedure care-
fully. Improper connection can result in a
fire hazard!
WOLF FRYER MODULE