
3
INS TALL AT IONR E QUIREME N T S
WHAT TO DO IF YOUSMELLGAS:
Do not try to lightany appliance.
Do not touch any electrical switch.
Do not use any phone in your
building.
Immediately callyourgassupplier
from a neighbor’s phone. Follow the
gas supplier’s instructions.
If you cannot reach yourgas
supplier, call the fire department.
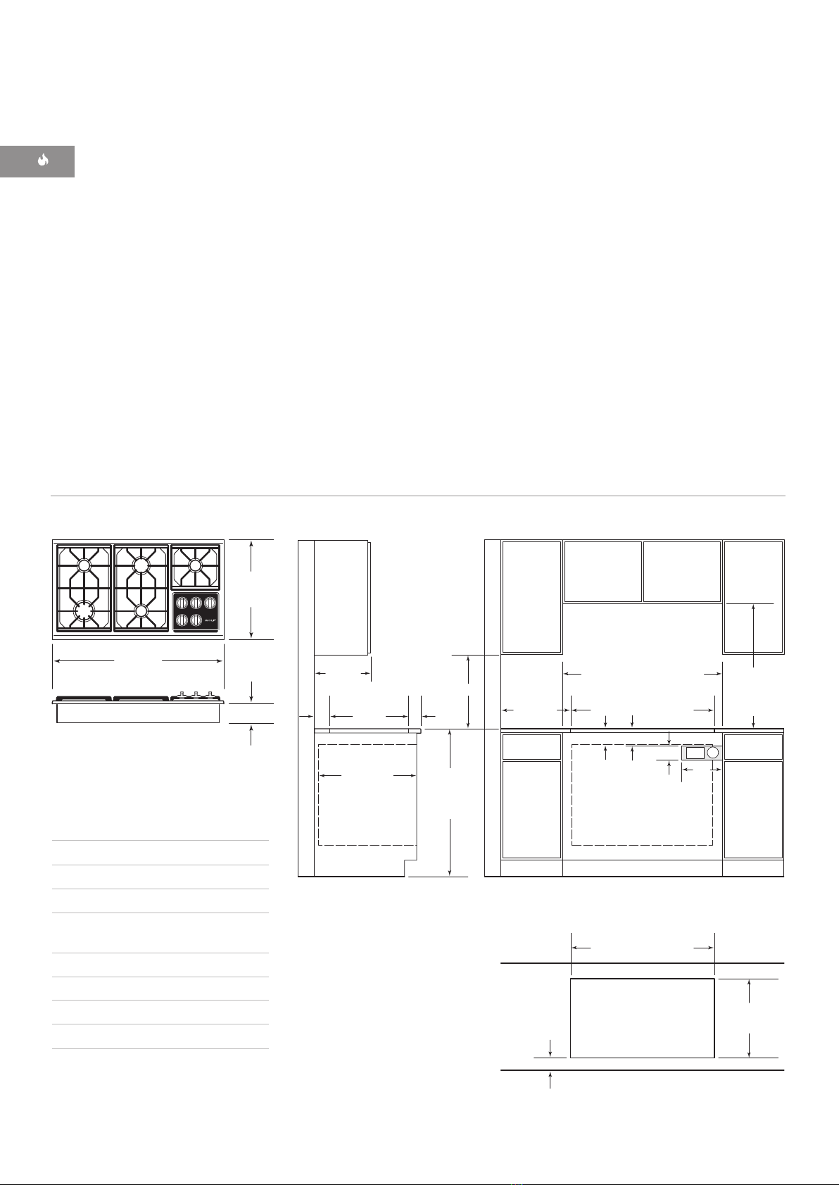
W O L F G A S COO K T O P S
Installation to be carried out only
by an authorised person.
Do not modify this appliance.
A ventilationhood is recom-
mended for use with the Wolf gas
multi-function cooktop.
Do not store or use gasoline or
otherflammablevaporsand
liquids in the vicinity of this or any
otherappliance.
The use ofagas cookingappliance
results in the production of heat
and moisture in the room in which
it is installed. Ensure that the
kitchen is well ventilated; keep
natural ventilationholesopen or
install a mechanical ventilation
device (mechanical extractor
hood).
Prolonged intensive use of the
appliance may for additional venti-
lation, for example opening of a
window, or more effective ventila-
tion, for example increasing the
level of mechanical ventilation
where present.
This appliance shallbeinstalled
in accordancewiththeregula-
tions in force and only used in a
well ventilated space. Read the
instructionsbeforeinstalling or
using this appliance.
Installer:Pleaseread the entire
InstallationInstructionsprior to
installation. Savethese instructions
for the local inspector’s reference,
then leave them with the home-
owner.
Homeowner:Please read andkeep
theseinstructions for future refer-
enceand be sure to read the entire
Use&Care Informationprior to use.
IMPORTANTNOTE:
COOKTOPS installation manual:Intl Gas Cooktops Install 31/3/10 2:24 PM Page 3
Statutory requirements: This appliance shall
be installed in accordance with the manufacturer’s
installation instructions, local gas fitting
regulations and authority, municipal building codes,
electrical wiring regulations, and AS/NZ5601 the
Australian Standard for gas installations. Refer
also to AS/NZ5601 for gas pipe sizing tables.
Not suitable for use in marine craft, caravans or mobile
homes, unless each burner is fitted with a flame
safeguard.