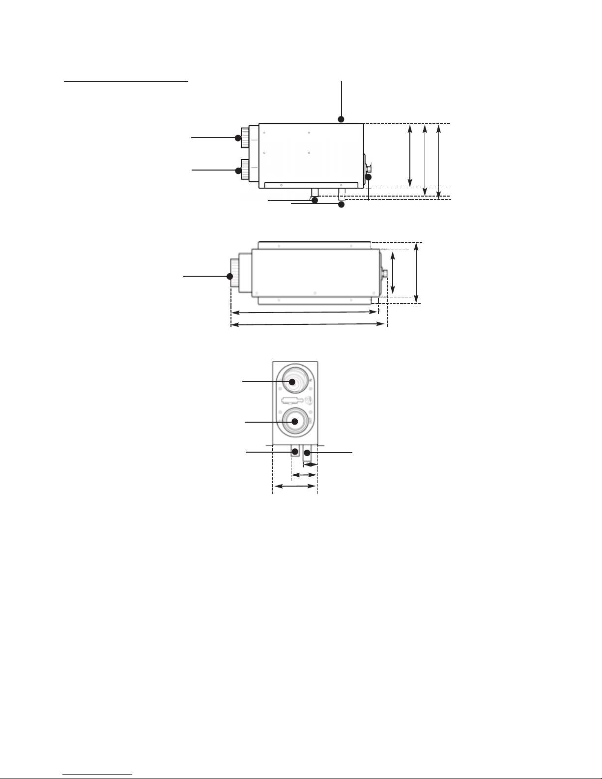
Ensure that the Space Heater position allows access for servicing the Space Heater and that there is a minimum of
25mm distance around the Space Heater to adjacent walls when mounted inside the vehicle.
Whale’s policy is one of continuous improvement and we reserve the right to change specifications without prior
notice.
The Whale® Space Heater has been designed for caravan, motorhome and mobile applications, and is suitable for
typical recreational vehicle use. It is only suitable for use in road vehicles, ie.e caravans and motorhomes, but is not
suitable for caravan holiday homes i.e mobile homes or static caravans. The Whale® Space Heater is designed to be
installed in conjunction with a ducted hot air system. If the Space Heater is to be used in motion, the Vehicle in
Motion Kit must be fitted. This is an accessory to the Whale® Space Heater and must be fitted to allow use in
motion. If the Vehicle in Motion Kit is not fitted you must not operate the appliance while the vehicle is in motion.
Please see Appendix A for information on identifying flue type. For more information on this kit, contact Whale®
Support.
This symbol indicates that this appliance is suitable for use in Leisure Accommodation Vehicles.
This symbol indicates that this appliance is not suitable for use in boats.
Observe all warnings.
In the unlikely event of leaks in the gas system, or if there is a smell of gas:
• Extinguish all naked flames
• Switch off all appliances and do not operate any electrical switches
• Turn off all gas appliances
• Open windows and doors for ventilation
• Do not smoke
• Shut off gas connection
Ensure that the system is thoroughly checked by a registered gas engineer at a Whale® Approved Service Centre or
by a member of the Whale Service Engineer Network.
The Space Heater must not be operated in the following situations:
• When refuelling the vehicle or refuelling the vehicle towing the caravan or refulling any other
appliances.
• When the vehicle in which the Space Heater is installed is in motion, unless the Vehicle in
Motion Flue Kit is installed (please see Appendix A for information on identifying Flue Type).
• When the vehicle in which the Space Heater is installed is in a confined space, (such as a garage).
This appliance is not intended for use by persons (including children) with reduced physical, sensory or mental
capabilities, or lack of experience and knowledge, unless they have been given supervision or instruction concerning
use of the appliance by a person responsible for their safety. Children must be supervised to ensure that they do not
play with the appliance.
Ensure that a minimum of one of the hot air outlet vents is permanently open. This hot air vent must be the vent
located the furthest distance from the Space Heater.
Any alteration to the appliance, including flue components, use of non-Whale® spare parts/accessories and
non-observation of the installation and operation instructions will lead to cancellation of the warranty and exclusion of
liability claims and results in it becoming illegal to use the appliance.
Please note: Incorrect installation, misuse or use of non original Whale® parts may invalidate the warranty. It also
becomes illegal to use the appliance if incorrectly installed, and in some countries may make it illegal to use the
vehicle.
When operating the Space Heater using gas, the combustion air inlet flue and exhaust flue must never be
obstructed. They must be checked regularly, and if necessary cleaned by the user (e.g. in winter, snow must be
removed from the combustion outlet and air intake).
3. APPLICATION
4. WARNINGS
3