
Tehnički podaci:
Upotreba:
1. Molimo proverite pre upotrebe:
A: Žica grejača i električni kabl ne smeju biti oštećeni.
B: Električna utičnica mora imati najmanje 10 A kapaciteta, da ne bi došlo do
nesreće.
2. Kada želite da koristite grejalicu, najpre uključite utikač u utičnicu, onda
pritisnite prvo dugme za podešavanje snage. Tako ćete uključiti grejač na 1000
W, pokazaće se crveno svetlo i uređaj će početi sa radom. Sa drugim
dugmetom možete povećati snagu na 2000 W.
3. Tokom upotrebe možete lako podesiti termostat na temperaturu koju želite.
4. Kada želite da isključite grejalicu, okrenite dugme za regulaciju snage na
početni položaj i izvucite utikač iz utičnice.
5. Ukoliko želite da pomerite grejalicu, molimo da isključite dugmićima za
regulaciju snage, zatim izvučete utikač, i držite uređaj za ručku na zadnjoj
strani grejalice.
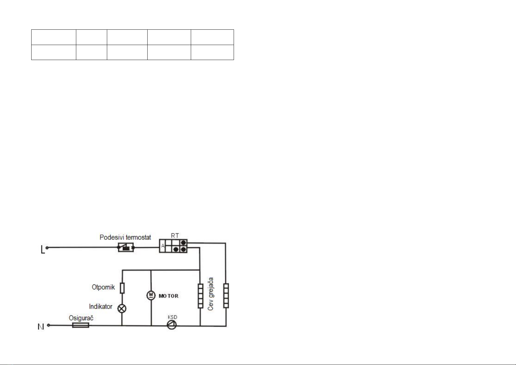
Električna shema:
-2-
Napomene:
Tokom upotrebe električnog uređaja, potrebno je pratiti sledeće napomene. Molimo da ih
pažljivo pročitate, zbog Vaše bezbednosti i optimalnog korišćenja uređaja.
1. Strogo je zabranjeno konvektor upotrebljavati u blizini zapaljivih predmeta
kao što su zavese itd, eksplozivnih materija, predmeta koji se lako deformišu
ili kvare i u prostorijama sa puno prašine.
2. Strogo je zabranjena upotreba konvektora na mestima gde može lako
prouzrokovati električni udar ili se lako prevrnuti.
3. Strogo je zabranjeno zatvarati mali otvor na grejalici i ubacivati bilo šta u nju.
Posebno budite pažljivi kada su deca u blizini, da ne bi došlo do električnog
udara.
4. Ne upotrebljavajte uređaj u neposrednoj blizini kade, tuš kabine ili bazena.
5. Strogo je zabranjeno upotrebljavati uređaj ako je prekriven bilo čime.
6. Strogo je zabranjeno pokretati ili gasiti uređaj direktno priključivanjem ili
isključivanjem utikača iz utičnice umesto dugmićima
7. Strogo je zabranjeno priključivati konvektor na istu utičnicu sa drugim
uređajima velike snage.
8. Kada uređaj ostavljate bez nadgledanja, molimo isključite utikač iz utičnice.
9. Prilikom uključivanja i isključivanja uređaja čuje se blag zvuk – to je
normalno i dešava se zbog širenja materijala tokom zagrevanja i stezanja
tokom hlađenja.
10. Ako uređaj nije ispravan, Vas molimo da ga odmah ugasite na dugme,
isključite iz utičnice i pozovete servis.
11. Žica grejača je proizvedena na poseban način i ima dug životni vek. Molimo
da ne upotrebljavate drugu žicu umesto nje.
12. Konvektor ne postavljajte neposredno ispod električne utičnice.
13. Ne pokrivajte konvektor bilo čime, da ne bi došlo do pregrejavanja.
14. Ako je strujni kabl oštećen, mora ga zameniti proizvođač ili ovlašćeni servis,
ili stručno osposobljena osoba, da bi se izbegla opasnost.
-3-