
Viale Vicenza, 14
36063 Marostica VI - Italy
www.vimar.com
49401696A0 02 2301
03823
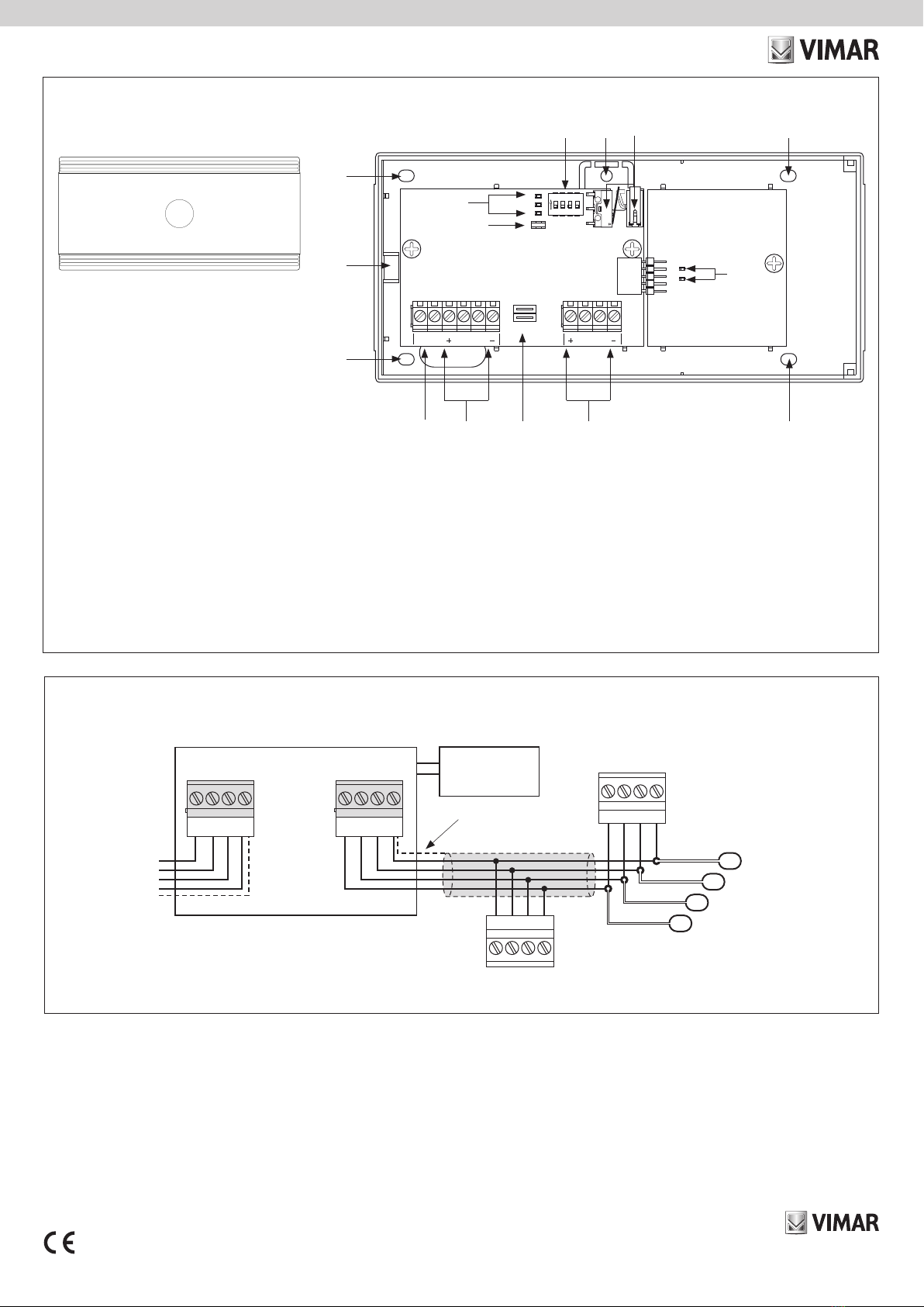
BY-ALARM PLUS
Interfaccia By-alarm Plus isolata per rigenerazione del segnale BUS.
Il dispositivo, connesso al BUS, consente di aumentare l'estensione e l'integrità funzionale del
BUS nella trasmissione dei dati. Svolge quindi funzioni di isolamento BUS e rigenerazione del
segnale sul BUS; è provvisto di alimentazione e convertitore DC/DC isolati ed è fornito in conte-
nitore plastico chiuso con protezione antiapertura ed antistrappo.
COLLEGAMENTI E FUNZIONALITÀ
Il dispositivo è provvisto di 4 morsetti ai quali collegare il BUS in ingresso e 4 morsetti cui collegare
il BUS in uscita. Le sue funzionalità sono:
• isolamento galvanico, fino a 2750 V, della linea dati del BUS (“D” e “S”) tra ingresso ed uscita;
• isolamento galvanico dell’alimentazione sul BUS (“+” e “-”), tramite il taglio di ponticelli di iso-
lamento disponibili sulla scheda;
• rigenerazione dei segnali di comunicazione, limitando le perdite dovute ad una lunghezza
eccessiva del cavo BUS;
• rilevamento di anomalie di funzionamento verso il ramo di uscita e conseguente isolamento
del ramo stesso.
ISOLAMENTO E MODALITÀ DI INTERVENTO
Il dispositivo permette di creare due gruppi di periferiche tramite l’isolamento galvanico dell’a-
limentazione, della massa e dei canali dati D e S di ciascun gruppo. Si può così separare
un gruppo di periferiche collegato e alimentato direttamente dalla centrale (“gruppo A”)
dal gruppo invece collegato alla centrale tramite isolatore e non alimentato dalla centrale
(“gruppo B”).
La funzione di protezione avviene isolando il gruppo B nel caso in cui il dispositivo rilevi in tale
gruppo i seguenti malfunzionamenti:
- corto tra i terminali “+” e “-”
- corto tra i terminali “D” e “+” oppure “D” e “-”
- corto tra i terminali “S” e “+” oppure “S” e “-”
- corto tra i terminali “D” e “S”
- assorbimento di corrente superiore a 1 A tra i terminali “+” e “-”
Quando viene rilevato il malfunzionamento il dispositivo provvederà ad isolare il gruppo B, pro-
teggendo il gruppo A. L'isolamento rimarrà attivo per 10 s o fino al successivo reset di centrale.
N.B. Il dispositivo permette l'isolamento galvanico sia dei segnali “D” e “S” che dell’alimentazione.
Il convertitore DC/DC alimenta i dispositivi del gruppo B e quindi non è necessaio un alimentatore
esterno; la tensione di alimentazione di uscita fornita dal convertitore è 13.8 V.
INSTALLAZIONE
1. Scegliere la posizione idonea all’installazione del dispositivo.
2. Aprire il dispositivo.
2. Fissare il dispositivo all'interno della scatola.
3. Far passare i cavi attraverso i fori passacavi e cablare il dispositivo.
4. Montare il dispositivo antisabotaggio da utilizzare per la protezione del dispositivo.
5. Richiudere la scatola.
N.B. Si sconsiglia di posizionare un isolatore subito dopo la centrale. Ogni isolatore andrebbe
posizionato nei punti dove la qualità del BUS si abbassa drasticamente.
Per una corretta installazione del dispositivo (e quindi del BUS) è necessario dimensionare il ramo
del BUS in cui si trova l’isolatore in base al numero di periferiche collegate a tale ramo e al loro
assorbimento di corrente complessivo; tale valore è poi da confrontare con il dato “Assorbimento
massimo da centrale”.
Un'altra caratteristica importante è la lunghezza della linea che si trova a valle dell’isolatore fino
all’isolatore successivo o alla fine della linea. Nella tabella che segue sono indicati i valori di tale
lunghezza in relazione alla velocità del BUS.
Velocità del BUS Lunghezza del cavo a valle dell’isolatore (L) Numero massimo
di isolatori in cascata
125 kbps 350 m 6
250 kbps 200 m 2
Le lunghezze (L) vengono identificate con:
• lunghezza dei cavi tra un isolatore e le periferiche successive o tra due isolatori successivi nel
caso di una linea singola.
• la somma delle lunghezze di tutte le linee che partono da un isolatore e che arrivano ad isolatori
successivi o terminano con delle periferiche nel caso di linee ramificate.
Antisabotaggio
Il dispositivo è provvisto di protezione antiapertura e antistrappo della scatola mediante un
microswitch che invia il segnale per alla centrale tramite il terminale “TAMPER”. Questo terminale
è normalmente chiuso; rimuovendo il ponticello dai connettori di abilitazione antisabotaggio si
disabilita la funzione di protezione.
SEGNALAZIONI DEI LED
LED
G* Colore Significato
DL1 Rosso
Spento: isolamento non attivo (funzionamento normale)
Acceso fisso: isolamento attivo (il BUS-A e il BUS-B sono isolati)
Lampeggiante: isolamento attivo a seguito di corrente > 1A
DL2
Giallo
Spento o Acceso fisso: nessuna attività sul BUS-A
Lampeggiante: attività sul BUS-A (funzionamento normale)
DL3 Spento o Acceso fisso: nessuna attività sul BUS-B
Lampeggiante: attività sul BUS-B (funzionamento normale)
LED
N* Colore Significato
DL1
Verde
Spento: alimentazione non presente sul BUS-A
Acceso: alimentazione presente sul BUS-A
DL2 Spento: alimentazione non presente sul BUS-B
Acceso: alimentazione presente sul BUS-B
* Per la posizione di G ed N si veda la figura "VISTA FRONTALE (dopo apertura del coperchio)".
REGOLE DI INSTALLAZIONE
L’installazione deve essere effettuata da personale qualificato con l’osservanza delle disposizioni
regolanti l’installazione del materiale elettrico in vigore nel paese dove i prodotti sono installati.
CARATTERISTICHE
• Tensione di ingresso: da 9,5 V a 15 V
• Corrente assorbita: 130 mA
• Corrente max disponibile sul morsetto "+" del lato B: 1 A
• Convertitore DC/DC con tensione di uscita 13,8 V
• Temperatura di funzionamento: da -10 a +40 °C
• Grado di sicurezza: 3
• Classe ambientale: II
• Dimensioni (L x A x P): 172 x 809 x 27 mm
CONFORMITA' NORMATIVA.
Direttiva EMC. Direttiva RoHS.
Norme EN 50131-3, EN 50130-4, EN 50130-5, EN 55032, EN IEC 63000.
Regolamento REACh (UE) n. 1907/2006 – art.33. Il prodotto potrebbe contenere tracce di
piombo.
RAEE - Informazione agli utilizzatori
Il simbolo del cassonetto barrato riportato sull’apparecchiatura o sulla sua confezione indica che il prodotto alla fine della pro-
pria vita utile deve essere raccolto separatamente dagli altri rifiuti. L’utente dovrà, pertanto, conferire l’apparecchiatura giunta
a fine vita agli idonei centri comunali di raccolta differenziata dei rifiuti elettrotecnici ed elettronici. In alternativa alla gestione
autonoma, è possibile consegnare gratuitamente l’apparecchiatura che si desidera smaltire al distributore, al momento dell’ac-
quisto di una nuova apparecchiatura di tipo equivalente. Presso i distributori di prodotti elettronici con superficie di vendita di
almeno 400 m2è inoltre possibile consegnare gratuitamente, senza obbligo di acquisto, i prodotti elettronici da smaltire con
dimensioni inferiori a 25 cm. L’adeguata raccolta differenziata per l’avvio successivo dell’apparecchiatura dismessa al riciclag-
gio, al trattamento e allo smaltimento ambientalmente compatibile contribuisce ad evitare possibili effetti negativi sull’ambiente
e sulla salute e favorisce il reimpiego e/o riciclo dei materiali di cui è composta l’apparecchiatura.