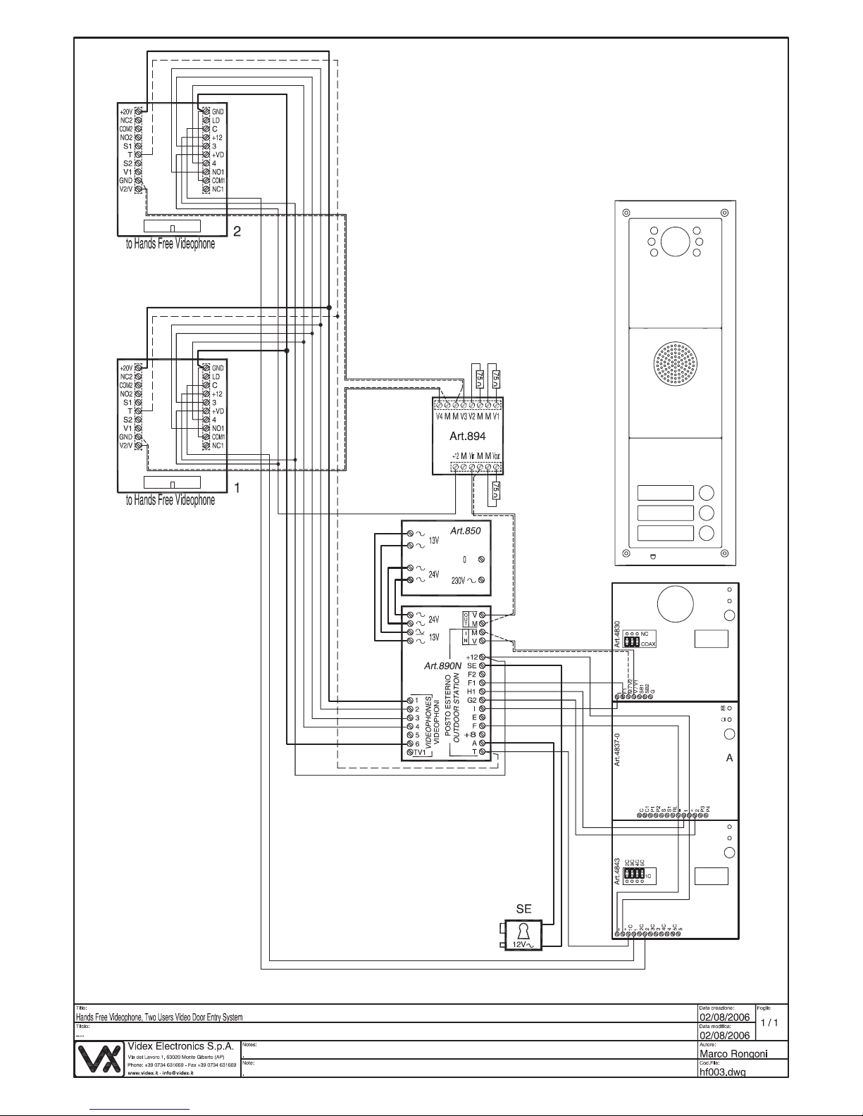
CONFIGURAZIONE VIDEOCITOFONO VIDEOPHONE SETUP
La configurazione del videocitofono consiste
nell’impostazione della modalità video (coassiale o segnale
video bilanciato) e di alcuni parametri quali il tempo d’apertura
serratura, la durata della funzione privacy ed il numero di
squilli.
La modalità video viene impostata tramite il Dip-Switch a 3 vie
accessibile dalla parte posteriore del videocitofono.
ON OFF ON Segnale video coassiale
OFF ON ON Segnale video bilanciato
I valori impostati di fabbrica sono 8 per gli squilli, 4 secondi per
il tempo d’apertura porta e 60 minuti per la durata della
privacy. Premere contemporaneamente il primo (tasto sinistro
della regolazione volume altoparlante) e l’ultimo (tasto destro
della regolazione colore) dei tasti di regolazione per entrare in
programmazione, il LED 1 (Fig.1A) inizia a lampeggiare ad
indicare il “ ”. Trascorsi 20 secondi di
inattività dall’entrata in programmazione o dall’ultima opera-
zione di programmazione, il videocitofono esce automatica-
mente da questa modalità.
Una volta entrati nel modo programmazione, premere e
tenere premuto il pulsante “ ”, il LED 1 smette di lampeg-
giare ed inizia a lampeggiare ad indicare il
numero di secondi che si stanno impostando: al raggiungi-
mento del valore desiderato (es. 5 lampeggi = 5 secondi)
rilasciare il pulsante
IMPOSTAZIONE MODALITA’VIDEO
Switches Modo Video
12 3
PROGRAMMAZIONE Nr.SQUILLI, TEMPO APERTURA
PORTA E DURATA PRIVACY
modo programmazione
Per programmare il tempo d’apertura porta
il LED 4 (Fig.1A)
“ ”. Il LED 1 torna a lampeggiare
indicando la possibilità di eseguire altre programmazioni.
Una volta entrati nel modo programmazione, premere e
tenere premuto il tasto “ ”, il LED 1 smette di lampeggiare ed
inizia a lampeggiare il LED 3 ad indicare la durata che si sta
impostando: al raggiungimento del valore desiderato
(ciascun lampeggio aumenta il tempo di 15 minuti quindi 6
lampeggi corrispondono a 1,5 ore) rilasciare il pulsante “ ”. Il
LED 1 torna a lampeggiare indicando la possibilità di
eseguire altre programmazioni.
Una volta entrati nel modo programmazione, premere e
tenere premuto il tasto “ ”, il LED 1 smette di lampeggiare ed
inizia a lampeggiare il LED 2 ad indicare il numero di squilli
che si sta impostando: al raggiungimento del valore deside-
rato (Es. 6 lampeggi = 6 squilli) rilasciare il pulsante “ ”. Il
LED 1 torna a lampeggiare indicando la possibilità di
eseguire altre programmazioni.
Per programmare la durata della funzione “privacy”
Per programmare il numero di squilli
The videophone setup allows the correct mode of operation to
be selected, this includes coaxial or balanced video, door
opening time, privacy time and the number of rings.
The video mode setup is carried out by the 3 way Dip-Switch
accessible from the rear side of the videophone.
ON OFF ON Coaxial video signal
OFF ON ON Balanced video signal
The preset values are 4 seconds for door opening time, 60
minutes for the privacy duration and 8 for the number of rings.
To alter the above preset values the videophone must be in
programme mode. This is achieved by operating the two
following buttons at the same time (left button of the volume
control and the right button of the colour intensity control) see
Fig.1A 8 small buttons towards the bottom of the face plate (far
left button and far right button together). When the program-
ming mode is entered LED 1 (Fig.1A) starts flashing. This will
automatically reset after 20 seconds of idle time.
After entering the programme mode press and hold the
button, LED 1 will stop flashing and LED 4 (Fig.1A) will start
to flash for the number of seconds required (i.e. 5 flashes = 5
seconds) release the
button. LED 1 will start flashing to signal that other
programming operations can be performed.
VIDEO MODE SETUP
Switches Video Mode
12 3
DOOR OPENING TIME, PRIVACY DURATION AND
NUMBER OF RINGS PROGRAMMING
Door opening time
“”
once the time value has been reached
“”
When in the programme mode press and hold the “ ” button,
LED 1 will stop flashing and LED 3 (Fig.1A) will start to flash
and show the time value (each flash =15 minutes i.e. 6
flashes = 1.5 hour) once the time value has been reached
release the “ ” button. LED 1 will start flashing to signal that
other programming operations can be performed.
When in the programming mode press and hold the “ ”
button, LED 1 will stop flashing and LED 2 (Fig.1A) will start
to flash showing the number of rings (each flash = 1 ring i.e. 6
flashes = 6 rings) once the value of rings has been reached
release the “ ” button. LED 1 will start flashing to signal that
other programming operations can be performed.
Privacy duration time
Number of rings
REGOLAZIONI CONTROLS
Regolazione Volume Altoparlante Loudspeaker volume control
Regolazione Volume Tono di Chiamata Call tone volume control
Regolazione Luminosità Brightness control
Regolazione Colore Color intensity control
Ciascuna delle 4 regolazioni possibili viene effettuata tramite i
relativi 2 pulsanti: premere il pulsante di destra per aumentare o
quello di sinistra per diminuire la regolazione.
Each of the 4 possible adjustments is carried out by operation of the
two buttons associated with that group. Operation of the right button
will increase and operation of the left button will decrease.
66250470.cdr - 01/12/2006