
7
www.ventilation-system.com
Table 2. Technical characteristics
VUT 200 H mini VUT 200 V mini VUT 300 H mini VUT 300 V mini
Supply voltage, 50 Hz [V] 1~ 230 1~ 230
Max. fan power [W] 2 items х 58 2 items х 58
Fan current [A] 2 items х 0.26 2 items х 0.26
Total unit power [W] 116 116
Total unit current [A] 0.52 0.52
Max. air capacity [m3/h] 200 300
RPM [min-1] 2500 2500
Noise level, 3 m, [dB(A)] 24-45 28-47
Max. transported air temperature [°C] -25 up to +50 -25 up to +50
Casing material zinc aluminium zinc aluminium
Insulation 20 mm min. wool 20 mm min. wool
Filter: G4 panel type G4 panel type
Replaceable lter* SF VUT mini G4 SF VUT mini G4
Summer block* VL VUT mini VL VUT mini
Connected air duct diameter [mm] Ø100 Ø125
Weight [kg] 30 30
Heat recovery eciency up to 85% up to 85%
Heat exchanger type Cross ow Cross ow
Heat exchanger material aluminium aluminium
*extra replaceable lter sets and summer blocks are the specially ordered items and are available upon separate order
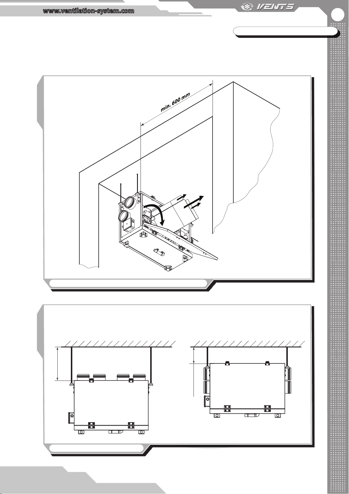
DESIGN AND OPERATING LOGIC
The unit has the following operating logic, g. 2:
Warm stale extract air from the room ows through the air ducts to the unit, where it is ltered, then air ows through the heat
exchanger and is exhausted outside by the extract fan through the air ducts.
Clean cold air from outside is moved by the supply fan to the supply lter of the air handling unit. Then ltered air ows through the
heat exchanger and is moved by the supply lter to the room through the air ducts.
Heat energy of warm extract air is transferred to clean intake fresh air from outside and warms it up. Heat recovery minimizes thermal
energy losses, energy demand and operating costs for air heating accordingly.
The air handling unit construction includes specially designed and sealed service panels for repair and preventing operations. The
terminal block on the side panel incorporates a terminal block. Power and ground cables are connected to the terminal block through
the sealed electric lead-ins.