
Section 1 Page 4 of 24 18 Feb 2015
Important Installation Points
The unit must be installed to comply with national regulations and/or codes of practice. A
qualified electrician must carry this out.
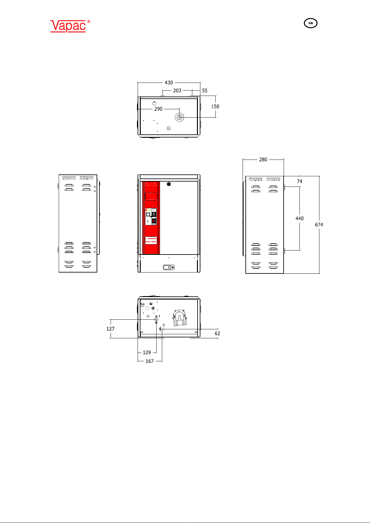
Ensure at least 1000 mm clear front access to the electrical and steam sections.
Do not locate the cabinet where the ambient temperature around the unit could
exceed 35º C; or fall below 5º C e.g., an unventilated roof mounted enclosure – see
minimum space / ventilation requirements page 7. * If below 5º C Frost protection kit
required.
Do not locate the cabinet where a ladder is required for service access as this could
make servicing and cylinder service or exchange hazardous.
Make sure steam line(s) have adequate slope (min 12%) for condensate drainage and use
condensate separators if the pipe is lower than the unit.
Provide adequate support to prevent sags developing in flexible steam lines, which can fill
with water and create a "trap".
Do not locate vented drain directly under the cabinet.
Important Electrical Connection Items
Before commissioning the unit, check that all electrical (power) connections - including those
at the terminals and contactor are tight.
The Vapac transformer must not be used to power other equipment.
To comply with EMC aspects see recommendations on page 10.
Do not mount the unit close to a source of strong electromagnetic emissions, such as
a variable speed motor drive, Kva transformer, or 'UPS' unit.
A minimum gap of 2 meters must be maintained between the unit and such devices.
Larger output devices may require an increased gap distance, depending on the
nature of screening / filtration measures fitted to the device.
Important Maintenance Items
Only a qualified electrician should carry out maintenance.
The boiler contains hot water, and must be drained before any maintenance is carried out on
the steam section. This should be done prior to isolating the power, and removing the front
access panel
ESD SENSITIVE DEVICES USED ON PCB. ENSURE ANTI-STATIC PRECAUTIONS ARE TAKEN
WHEN REMOVING OR REPLACING PCB’S.