
viously marked. File off burrs from the
cut end of the Drive Shaft. Re-insert the
Drive Shaft through the Sleeve and fully
insert it into the Impeller.
Step 10. Hold the Gong Mount in
position against the wall, engage the
Coupling with the Drive Shaft, and
then carefully thread the Striker Shaft
Bearing onto the Sleeve. Securely
tighten the Striker Shaft Bearing using
a pair of tongue-and-groove pliers on
the 1-1/2 in. (38 mm) hex end.
Step 11. Spin the Striker by hand and
verify that it spins freely, without any
sign of binding. If it does not, make the
necessary adjustments.
Step 12. Install the Gong and securely
tighten the Cap Nut. The identifica-
tion sign lettering must be orientated
horizontally.
Step 13. Test the Water Motor Alarm by
opening the alarm test valve in the trim
of the waterflow detection valve. The
alarm must be clear and steady. If it is
not, make the necessary adjustments.
NOTICE
Testing of the Water Motor Alarm may
result in operation of other associated
alarms. Consequently, notification
must be given to the owner and the fire
department, central control station, or
other signal station to which the alarms
are connected.
Care and
Maintenance
The TYCO Model WMA-1 Water Motor
Alarm must be maintained and ser-
viced in accordance with this section.
Before closing a fire protection system
main control valve for maintenance
work on the fire protection system
that it controls, obtain permission to
shut down the affected fire protection
system from the proper authorities
and notify all personnel who may be
affected by this decision.
Testing of the Water Motor Alarm may
result in operation of other associated
alarms. Consequently, notification
must be given to the owner and the fire
department, central control station, or
other signal station to which the alarms
are connected.
If the alarm was silenced during opera-
tion, the alarm control valve must be
reopened immediately after the fire pro-
tection system is restored to service.
The owner is responsible for the inspec-
tion, testing, and maintenance of their
fire protection system and devices in
compliance with this document, as well
as with the applicable standards of the
NATIONAL FIRE PROTECTION ASSO-
CIATION (e.g., NFPA 25), in addition to
the standards of any other authorities
having jurisdiction. Contact the install-
ing contractor or product manufacturer
regarding any questions.
Automatic sprinkler systems are rec-
ommended to be inspected, tested,
and maintained by a qualified Inspec-
tion Service in accordance with local
requirements and/or national codes.
The following procedures and inspec-
tions should be performed as indicated,
in addition to any specific requirements
of the NFPA, and any impairment must
be immediately corrected:
Step 1. The Model WMA-1 Water Motor
Alarm does not require any regularly
scheduled maintenance. Rotating parts
do not require lubrication. It is recom-
mended, however, that fire alarms be
periodically operated (inspected) to
verify that they generate a clear and
steady sound. Correct any impairment
immediately.
Step 2. The inspection should be made
quarterly or more frequently, as may
be necessary for locations subject to
vandalism.
The Y-Strainer and Sump are to be
cleaned out after each operation of the
Water Motor Alarm and after the alarm
line piping has been drained.
NOTICE
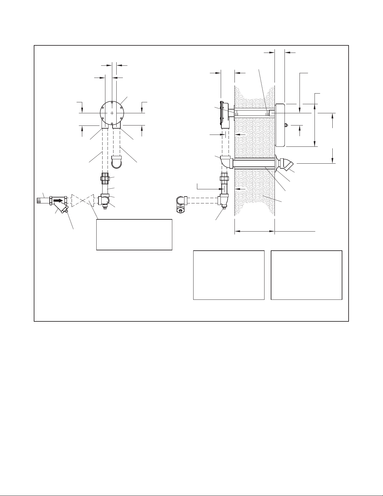
With reference to Figure 2, in the event
of a WMA-1 malfunction, inspect and
clean the Y-Strainer of obstruction prior
to removing the Water Motor.
Make no attempt to disassemble,
repair, or internally clean the Water
Motor. The Water Motor is not a field
serviceable part and must be replaced
if malfunction is determined.
Limited
Warranty
For warranty terms and conditions, visit
www.tyco-fire.com.
Ordering
Procedure
Orders for the WMA-1 Water Motor
Alarm Assembly, Optional Drain Trim,
and replacement parts must include
the description and Part Number (P/N).
The complete Model WMA-1 Alarm
Assembly includes the Model WMA-1
Water Motor Alarm, Model WM-1
Strainer, and Standard Inlet Trim.
WMA-1 Water Motor Alarm
Assembly
Specify: Model WMA-1 Water Motor
Alarm, (specify) Finish, P/N (specify):
Red Finish Gong .........P/N 52-630-1- 001P
Aluminum Finish Gong. . . . . P/N 52-630-2-001P
Optional Drain Trim
Specify: Optional Drain Trim for
Model WMA-1 Water Motor Alarm,
P/N 52-630-2-002
Separately Ordered Parts for
Multiple Systems
Specify: Model WM-1 Y-Strainer,
P/N 52-271-1-001
Note: One Y-Strainer is required for
two systems; two Y-Strainers are
required for three systems.
Specify: 3/4 in. Check Valve with 3/32
in. Orifice, P/N 52-403-1-005
Note: Two Check Valves are required
for two systems; three Check Valves
are required for three systems.
Replacement Parts for
Water Motor Alarm
Specify: (description) for use with
Model WMA-1 Water Motor Alarm,
P/N (see Figure 1)
TFP921
Page 4 of 4
NATIONAL FIRE PROTECTION ASSOCIATION and NFPA are registered trademarks of National Fire Protection Association;
1400 Pennbrook Parkway, Lansdale, PA 19446 | Telephone +1-215-362-0700
© 2018 Johnson Controls. All rights reserved. All specifications and other information shown were current as of document revision date and are subject to change without notice.