
8BAS-SVX065E-EN
Device Connections
The following table provides details of the hardware termination configuration options The
hardware terminations are pre-configured for proper equipment operation for blower coil/fan coil
applications
WWAARRNNIINNGG
LLiivvee EElleeccttrriiccaall CCoommppoonneennttss!!
FFaaiilluurree ttoo ffoollllooww aallll eelleeccttrriiccaall ssaaffeettyy pprreeccaauuttiioonnss wwhheenn eexxppoosseedd ttoo lliivvee eelleeccttrriiccaall
ccoommppoonneennttss ccoouulldd rreessuulltt iinn ddeeaatthh oorr sseerriioouuss iinnjjuurryy
WWhheenn iitt iiss nneecceessssaarryy ttoo wwoorrkk wwiitthh lliivvee eelleeccttrriiccaall ccoommppoonneennttss,, hhaavvee aa qquuaalliiffiieedd lliicceennsseedd
eelleeccttrriicciiaann oorr ootthheerr iinnddiivviidduuaall wwhhoo hhaass bbeeeenn pprrooppeerrllyy ttrraaiinneedd iinn hhaannddlliinngg lliivvee eelleeccttrriiccaall
ccoommppoonneennttss ppeerrffoorrmm tthheessee ttaasskkss
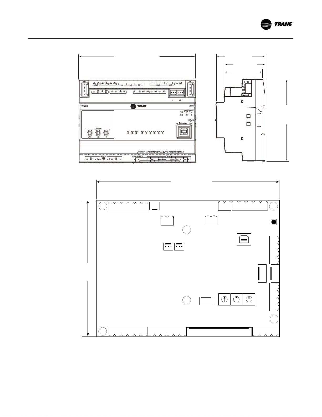
Table 2. Connections
Connection Quantity Types Range Notes
Analog input
(AI1 to AI5) 5
Temperature 10 kΩ thermistor AI1 to AI4 can be configured for timed override
capability.
Setpoint 189 Ω to 889 Ω
Resistive 100 Ω to 100 kΩ Typically used for fan speed switch.
Universal input
(UI1 and UI2) 2
Linear 0–20 mA
These inputs may be configured to be thermistor or
resistive inputs, 0–10 Vdc inputs, or 0–20 mA inputs.
Linear 0–10 Vdc
Temperature 10 kΩ thermistor
Setpoint 189 Ω to 889 Ω
Resistive 100 Ω to 100 kΩ
Binary Open collector/dry contact Low impedance relay contacts recommended.
Pulse Solid state open collector Minimum dwell time is 25 milliseconds On and 25
milliseconds Off.
Binary input
(BI1 to BI3)(a) 3
24 Vac detect The UC400 controller provides the 24 Vac required to
drive the binary inputs when using the recommended
connections.
Binary output
(BO1 to BO3)
(a)
3UC400:Relay
• 2.88 A @24 Vac C pilot
duty
• Gen Purpose
–10 A max up 277 Vac
–10 A max up to 30 Vdc
• Motor Duty
–1/3 hp @ 125 VAC
(7.5 A max)
–1/2 hp @ 277 VAC
(7.5 A max)
Power needs to be wired to the binary output. All
outputs are isolated from each other and from ground
or power.
Note: Ranges given are per contact.
Other
Ranges UC400–B:TRIAC 24 Vac Powered
Binary output
(BO4 to BO9)(a) 6 TRIAC
•UC400: 0.5 A max @24-
277 Vac, resistive and pilot
duty
•UC400–B: 24 Vac
Powered
Use for modulating TRIAC. User determines whether
closing high side (providing voltage to the grounded
load) or low side (providing ground to the power
load).
Note: Ranges given are per contact and power comes
from TRIAC SUPPLY circuit.