Contents Premier Elite Series Installation Manual
2 INS176-15
Contents
Contents .................................................................... 2
1. System Overview.................................................. 4
System Architecture ............................................................ 4
Control Panel....................................................................... 4
Remote Keypads ................................................................. 5
Zone Expanders................................................................... 6
Output Expanders................................................................ 6
Communicators ................................................................... 6
Other Devices ...................................................................... 6
3. Installation ............................................................ 7
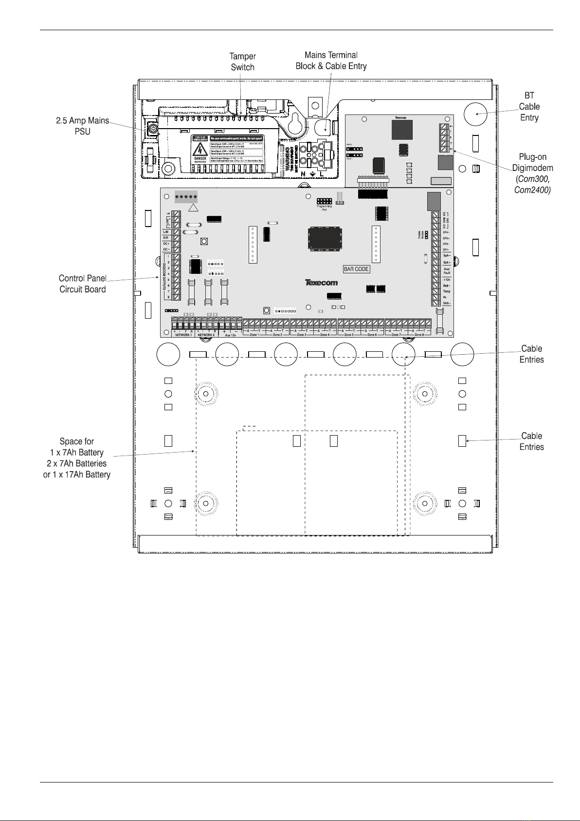
Installation Sequence.......................................................... 7
Power Supply Ratings....................................................... 18
Connecting AC Mains........................................................ 19
Connecting Batteries......................................................... 19
EN50131 Battery Installation (Polymer Panels)............... 19
Connecting Devices to the Network ................................. 20
Remote Keypads ............................................................... 23
8XP-W & 32XP-W V3.xx>................................................... 24
8XP-W & 32XP-W V2.xx>................................................... 24
System Design Considerations ........................................ 24
Ricochet V2 & V3 Expander Addressing .......................... 25
8XE Zone Expander (24 Only)........................................... 26
8XP Zone Expander ........................................................... 26
Star and Daisy Jumper Option.......................................... 27
iProx Module...................................................................... 28
60iXD Zone Expander........................................................ 28
OP16 Output Expander ..................................................... 28
RM8 Relay Module ............................................................ 29
Zone and Output Numbering 24/48/88/168 ...................... 30
Zone and Output Numbering 640 ..................................... 31
Zone Connections ............................................................. 32
60IXD Zone Expander........................................................ 33
Auxiliary/Fault Connections.............................................. 34
Speaker Connections........................................................ 34
External Sounder Connections......................................... 34
Panel Outputs .................................................................... 35
Digicom Outputs 1 - 8........................................................ 35
2-Wire Smoke Detector ..................................................... 36
Expander Auxiliary Input................................................... 36
Plug-on Communicators ................................................... 37
Speech Module.................................................................. 38
Com GSM........................................................................... 39
Premier Elite ComGSM Layout ......................................... 39
Aerial Siting ....................................................................... 40
Installation ......................................................................... 40
Panel Configuration........................................................... 40
Using the SMS Control Commands.................................. 41
What will be sent in the Text Message ............................. 41
AV Module.......................................................................... 42
ComIP Module ................................................................... 42
Commissioning.................................................................. 43
ComWiFi............................................................................. 43
USB-Com ........................................................................... 47
PC-Com.............................................................................. 47
Connecting a Computer .................................................... 47
Connecting a Printer ......................................................... 47
4. Commissioning and Troubleshooting .............48
Commissioning ..................................................................48
Trouble-Shooting ...............................................................48
Reset and Service Messages ............................................50
5. Programming the Control Panel.......................51
Introduction ........................................................................51
Copying and Pasting..........................................................53
Log Off Engineer ................................................................53
Resetting the Engineers Code (User 00) ..........................53
5.1 Zone Setup........................................................54
Ricochet Enabled Devices V2.00 - V2.09 ..........................55
Ricochet Enabled Devices V2.10 & Later..........................56
Learning Devices................................................................56
Auto Zone Type & Area ......................................................56
Deleting Devices ................................................................56
Zone Types .........................................................................57
Zone Attributes 1................................................................58
Zone Attributes 2................................................................58
Attributes for Moment or Latch Keys ................................59
Attributes for Custom Zones .............................................59
Custom Zones Seismic Attributes* ...................................59
Zone Areas 12/24/48/88/168 ..............................................59
Zone Areas 640 ..................................................................59
Zone Text ............................................................................59
Zone Chime ........................................................................60
Remote Test Enable ...........................................................60
Zone Wiring ........................................................................60
Zone Groups.......................................................................60
DD 243 ................................................................................60
5.2 Area Programming........................................... 61
Timers .................................................................................61
Arming Modes ....................................................................62
Area Arm Suites 24/48/88/168 ...........................................62
Area Arm Suites 640 ..........................................................63
Area Suite Text ...................................................................63
Suite Arm Modes................................................................64
Area Options 24/48/88/168 ................................................64
Area Options 640................................................................64
Time Arm Area....................................................................68
Area Text.............................................................................68
5.3 Global Options..................................................69
System Timers....................................................................69
System Config. ...................................................................70
System Options..................................................................74
Monitor Hardware ..............................................................75
Control Timers....................................................................75
System Text ........................................................................76
Part Arm Text......................................................................76
Holiday Dates .....................................................................77
Speaker Tones ...................................................................77
PC Output Text ...................................................................78
Custom O/P Text ................................................................78
5.4 Keypad Setup ................................................... 79
Keypad Areas .....................................................................80
Keypad Zone Mapping.......................................................80
Keypad Options..................................................................80
Keypad Speaker Volume....................................................80