spinflo 656/MK 12 Mode d'emploi

BUILD-IN
COMBINATION UNITS
FOR USE WITH LIQUID PETROLIUM GAS
MODEL 656/MK 12
User and Installation Instructions
PLEASE READ THOROUGHLY and keep for future
reference.
FOR USE IN AUSTRALIA
SPINFLO LIMITED, 4-10 Welland Close, Parkwood Industrial
Estate, Rutland Road, Sheffield S3 9QY, ENGLAND.
TEL: + 44 114 273 8157 FAX: + 44 114 275 3094
PCC1275Z – Issue 2
WARNING
•Only use this appliance in a well ventilated area.
•Read the instructions before use.
•This appliance must be installed by an
authorised person.
More information https://www.caravansplus.com.au

INSTALLATION INSTRUCTIONS
This appliance shall be installed in accordance with the manufacturers installation instructions, local gas fitting
regulations, municipal building codes, AG601 and any other relevant statutory regulations.
DATA LABEL
The data label is located on the bottom right hand side panel near the front of the cooker. Ensure that the gas
supply is Propane. This appliance is designed for use with Propane Gas and should not be converted for use
with any other gas.
VENTILATION
Ventilation must be in accordance with AG601 Installation Code. In general, the appliance should have
adequate ventilation for complete combustion of gas, proper flueing and to maintain temperature of immediate
surroundings within safe limits.
LOCATION
Chose a location free of draughts and open doors and clear of combustible materials or other fire hazards. The
location should ensure convenience of operation and service. Any adjoining wall surface situated within 200mm
from the edge of any hob burner must be a suitable non-conbustible material for a height of 150mm for the entire
length of the hotplate.
Any combustible construction above the hotplate must be at least 600mm above the top of the burner and no
construction shall be within 450mm above the top of the burner.
A minimum depth of 185mm from the top of the worktop surface must be provided for the separate grill
compartment.
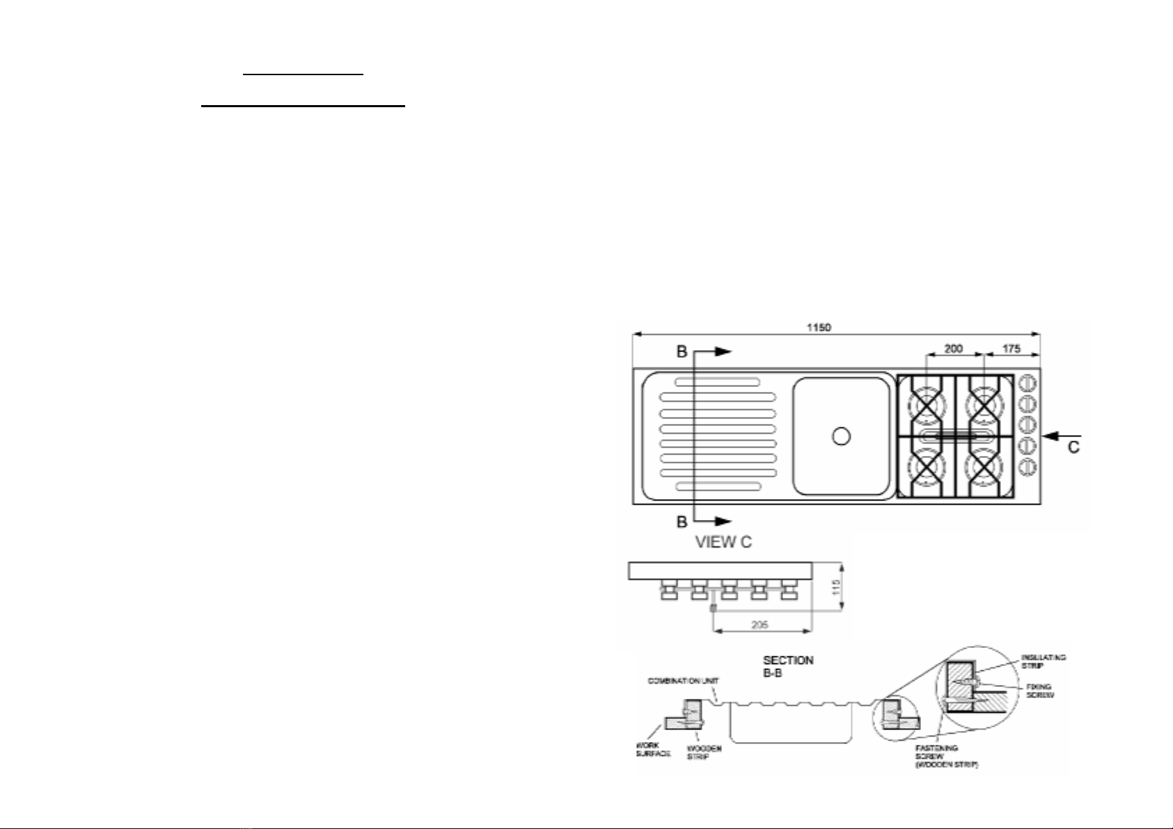
INSTALLATION
A cut-out should be prepared in the worktop as shown below. Heat barriers must be fitted to the front and back
edges of the cut-out as shown on section B-B. The appliance should be fixed in position using woodscrews fitted
through the side flanges as shown.
Nominal Hourly Gas (Propane Gas Only)
Consumption & Injector
Sizes per Burner: Burner Injector orifice Consumption
Front LH 0.62 mm 5.0 Mj/hr
Front RH 0.62 mm 5.0 Mj/hr
Rear LH 0.62 mm 5.0 Mj/hr
Rear RH 0.62 mm 5.0 Mj/hr
Grill 0.62 mm 5.0 Mj/hr
Total Nominal Hourly
Consumption: 8 Series – 4 Burner 20.0 M
8 Series – 4 Burner & Grill 25.0 M
Combination – 4 Burner, Grill & Sink 25.0 M
2 Series – 2 Burner 10.0 M
Midi Hobs – 2 Burner & Grill 15.0 M
Overall Dimensions: 854F 4BF W500mm x D400mm x H152mm
854F 4BFG W500mm x D400mm x H152mm
Combination unit W1145mm x D400mm x H152mm
H200F W275mm x D400mm x H92mm
H250F W390mm x D400mm x H92mm
Test Point Pressure: The test point is fitted to the gas manifold located below the
control panel. The pressure is measured with the front left
burner on high flame and with an inlet pressure of 2.75 kPa.
Propane Gas 2.75 kPa.
Data Label: The label is located on the underside of the control panel
towards the front and a duplicate label is provided on
models where the data plate is not readily accessible. The
duplicate data label is adhered in an accessible area upon
installation. The following information is on the data plate:
Spinflo Limited
Model No: ………………
Serial No: ……………...
Gas Type: Propane
Nominal Input: …………
Test Point Pressure: 2.7 kPa.
Injector Size: All burners – 0.62 mm*
AGA Approval No: ……….
This unit is sold & serviced by:
Electrolux Leisure Pty Ltd.
6 Treforest Drive, Clayton, Victoria. 3168.
*Note:- If the injector sizes are not on the data label, then
the injectors are stamped with numerals indicating the orifice
size in one hundredths of a millimetre.
More information https://www.caravansplus.com.au

SPINFLO LIMITED
HOB SERVICE INSTRUCTIONS
Service to be carried out only by authorised personnel.
Name & Model Number: In-built hob units:-
8 Series – 4 Burner 854F 4BG
8 Series – 4 Burner & Grill 854F 4BGF
Combination – 4 Burner, Grill & Sink 656
2 Series – 2 Burner H200F
Midi Hobs – 2 Burner & Grill H250F
Manufactured by: Spinflo Limited.
4 – 10 Welland Close,
Parkwood Industrial Estate,
Rutland Road,
Sheffield. S3 9QY. England.
Imported by: Dometic Pty Ltd.
6 Treforest Drive,
Clayton, Victoria. 3168.
Ph: (03) 9545 5655
Fax: (03) 9545 5966
Certificate Number: 5537
Date: 4 February 1998
Description: Rectangular in-built hobs with rounded corners, available in
stainless steel or vitreous enamel. There are two and four
burner models, with or without a fret type grill burner fitted
underneath the hob and also a combination sink unit. Other
features include overall pan support, flame failure device to
all burners and a grill box and door, which slides in from the
front of the cupboard, below the bench. Alternatively, the four
burner hob can be used in conjunction with the Spinflo Cara
3500 Oven/Grillbox.
FITTING
Place the appliance over the worktop cut-out and connect to the gas supply as detailed below.
CONNECTION
An 8mm gas inlet connection is provided on the underside of the appliance.Refer to the "Dimensions" section
following for the location of the gas inlet. It is recommended that the appliance be connected by copper tubing
using a 6mm male (1/4 BSP) to 8mm copper union.
A rubber connection must not be used.
After connection the appliance must be tested for soundness.
This appliance is suitable for use on
Propane Gas Only 2.75 Kpa.
It is important that the regulator should be set to the correct pressure for the type of gas being used. Excessive
pressure must not be permitted.
If the flame on either the top burners or the grill show a tendency to lift, it is probable that the line pressure is too
great. Should there be excessive yellow tips (resulting in sooting) then it is probable that the line pressure is too
low and, in either case, the burners should not be used until the line pressure has been checked.
This appliance is fitted with the following injectors:-
BURNERS 0.62mm 5.0 MJ/h
GRILL 0.62mm 5.0 MJ/h
The burners on this appliance have fixed aeration and no adjustment is necessary.
DIMENTIONS
More information https://www.caravansplus.com.au

BEFORE LEAVING
The pipe connections should be checked for leaks with soap and water. DO NOT use a naked flame for
detecting leaks. Test all burners on high and low flame for flame stability. When satisfied with the appliance,
please instruct the user on the correct method of operation. If the appliance fails to operate correctly after all
checks have been made, refer to the authorised service provider in your area.
USER'S INSTRUCTIONS
Each burner is controlled individually and is monitored by a flame failure sensing device. The respective knob
positions are shown
OFF HIGH RATE LOW RATE
To light the burner, depress and turn the knob anti-clockwise to the full rate position, apply a light to the burner or
press the ignition button if fitted. On models with the flame sensing device it is necessary to hold the knob
depressed during ignition and for approximately fifteen seconds after the burner has lit to allow the probe to
reach temperature. Should the flame go out when the knob is released, the procedure should be repeated
holding the knob depressed for slightly longer. If required the knob can be turned further anti-clockwise to the
simmer position. To turn the burner off, rotate the knob fully clockwise until the dot on the knob lines up with the
dot on the fascia. Although the grill does heat up quickly, it is recommended that a few minutes preheat be
allowed. The grill pan should be left in position to protect the base lining. The grill pan trivet can be reversed to
give a choice of grilling height. The grill door must be left open while the grill is in use.
WARNINGS
DO NOT store or use gasoline or other flammable vapours, liquids or items in the vicinity of this or any other
appliance.
DO NOT spray aerosols in the vicinity of this appliance while it is in operation.
Where this appliance is installed in marine craft or in caravans, it shall not be used as a space heater.
NEVER check for leaks with an open flame
SAFETY
It is important that ordinary safety precautions be observed in the use of this appliance.
1) When cooking keep children away from the vicinity. Turn pan handles inwards so they cannot be caught
accidentally.
2) Never leave fat or oil unattended on the hotplate.
3) When finished, check that all controls are in the off position.
4) This appliance must not in any circumstances be used as a space heater.
5) If fitted in a touring caravan or motor van, all burners should be extinguished when the vehicle in which the
appliance is installed is moving. It is preferred that the cylinder valve to the appliance be turned off.
LEAKS
If a smell of gas becomes apparent, the supply should be turned off at the cylinder IMMEDIATELY.
Extinguish naked lights including cigarettes and pipes. Do not operate electrical switches. Open all doors and
windows to disperse any gas escape.
Propane gas is heavier than air, any gas escaping will therefore collect at low level. The strong unpleasant smell
of gas will enable the general area of the leak to be detected. Check that the gas is not escaping from an unlit
appliance.
Never check for leaks with a naked flame, leak investigation should be carried out using a leak detector spray or
soapy solution.
MAINTENANCE
This appliance needs little maintenance other than cleaning. All parts should be cleaned using warm soapy
water.
Do not use abrasive cleaners, steel wool or cleansing powders. When cleaning the burner ring it is essential to
ensure that the holes do not become blocked.
The control knobs are a push fit and can be removed for cleaning. They are interchangeable without affecting the
sense of operation.
On units fitted with battery spark ignition, when the time taken for spark generation becomes extended, the
battery should be renewed with a suitable make of long life battery.
THIS APPLIANCE MUST NOT BE MODIFIED OR ADJUSTED UNLESS AUTHORISED AND CARRIED OUT
BY THE MANUFACTURER OR HIS REPRESENTATIVE.
NO PARTS OTHER THAN THOSE SUPPLIED BY THE MANUFACTURER SHOULD BE USED ON THIS
APPLIANCE.
ABNORMAL OPERATION
Any of the following are considered to be abnormal operation and may require servicing :-
Yellow tipping of hob burner flame. Sooting up of cooking utensils.
Burners not igniting properly. Burners failing to remain alight.
Burners extinguished by cupboard doors. Gas valves which are difficult to turn.
WHO TO CONTACT
For service, please contact your authorised local Service Agent giving full details of the model, serial number and
date of purchase.
More information https://www.caravansplus.com.au
Autres manuels spinflo Plaque

spinflo
spinflo Country Leisure HB9000EL Mode d'emploi

spinflo
spinflo 160 Series Mode d'emploi

spinflo
spinflo H400F Mode d'emploi

spinflo
spinflo Country Leisure HB10000 NG Mode d'emploi

spinflo
spinflo H200F Mode d'emploi

spinflo
spinflo H200F Mode d'emploi

spinflo
spinflo Country Leisure HB10000 Mode d'emploi

spinflo
spinflo HB15000 Mode d'emploi

spinflo
spinflo S-656/MK 12 series Mode d'emploi

















