
8 4.2 18 3.5 23 5.1 6 10.2
pin volt pin volt 9 5.1 19 3.1 24 0.0 7 0.1
1 0.6 1 7.1 10 4.2 20 2.5 25 1.1 8 13.8
2 4.8 2 GND 11 NC 21 1.6 26 0.0
3 0.0 3 5.4 12 GND 22 1.8 27 2.5 pin volt
4 0.0 4 GND 13 4.9 23 1.8 28 5.1 1 1.6
5 4.8 5 GND 14 4.3 24 1.8 29 2.3 2 13.8
6 0.0 6 4.9 15 4.3 25 NC 30 2.3 3 -13.4
7 0.0 7 GND 16 4.3 26 NC 4 -15.3
80.2 84.9 17GND 27NC pinvolt 50.0
9 0.0 18 GND 28 NC 1 0.7 6 14.6
10 NC pin volt 19 4.9 29 0.0 2 NC 7 1.6
11 NC 1 GND 20 4.9 30 4.6 3 2.3
12 3.3 2 GND 21 GND 31 4.6 4 14.3 pin volt
13 0.0 3 GND 22 NC 32 4.6 5 2.3 1 1.8
14 4.9 4 GND 23 5.0 33 8.9 6 GND 2 0.2
15 0.0 5 4.9 24 NC 34 4.9 7 0.3 3 151.7
16 0.0 6 4.9 25 4.2 35 4.9 8 6.9 4 17.3
17 -0.3 7 GND 26 4.2 36 0.0 9 GND 5 GND
18 4.9 8 4.9 27 5.0 37 4.4 10 6.9
19 4.9 28 NC 38 5.2 11 6.9 pin volt
20 1.8 pin volt 29 NC 39 5.2 12 GND 1 135
21 0.0 1 2.9 30 GND 40 GND 13 6.9 2 121
22 2.2 2 4.9 31 NC 41 NC 3 GND
23 GND 3 GND 32 4.2 42 8.9 pin volt
24 2.3 33 4.2 43 5.2 1 4.4 pin volt
25 2.3 pin volt 34 5.0 44 9.0 2 GND IN 11.7
26 GND 1 0.0 35 0.0 45 4.9 3 4.4 OUT 9.0
27 4.9 2 0.5 36 4.3 46 4.7 4 4.4 GND GND
28 0.0 3 0.0 37 NC 47 1.9 5 4.4
29 0.0 4 GND 38 9.0 48 NC 6 4.4
30 4.9 5 NC 39 NC 7 4.4
31 4.9 6 9.0 40 4.2 1 5.1 8 4.4
32 2.8 7 0.0 41 5.1 2 0.0 9 4.4
33 4.9 8 GND 42 4.2 3 0.0 10 1.5
34 2.5 4 NC 11 4.9
35 NC pin volt pin volt 5 1.2 12 4.9
36 4.9 1 7.6 1 3.4 6 0.0 13 5.6
37 4.9 2 7.6 2 5.1 7 5.1 14 4.4
38 4.9 3 7.6 3 4.3 8 1.1 15 4.4
39 4.9 4 GND 4 5.1 9 5.1 16 4.4
40 0.5 5 7.6 5 4.8 10 0.7 17 4.4
41 0.0 6 7.6 6 4.4 11 0.0 18 4.4
42 0.0 7 7.6 7 2.2 12 2.0 19 4.4
43 4.9 8 15.3 8 4.9 13 2.8 20 4.4
44 0.1 9 5.1 14 1.0 21 9.0
45 NC pin volt 10 GND 15 2.2 22 4.4
46 4.9 1 4.9 11 4.3 16 0.0
47 0.0 2 4.2 12 2.4 17 0.0 pin volt
48 0.0 3 4.9 13 3.5 18 0 1 0.1
49 0.0 4 4.2 14 3.5 19 0 2 3.8
50 0.0 5 4.9 15 5.7 20 NC 3 2.5
51 0.0 6 6.1 16 7.6 21 0 4 GND
52 0.0 7 4.9 17 0.7 22 5.1 5 9.1
IC604
IC401
IC001 IC002
IC003
IC004
IC402
IC541
IC601
IC602
IC521
IC010
IC202
IC203
IC301
IC302
— 31 — — 32 — — 33 — — 34 —
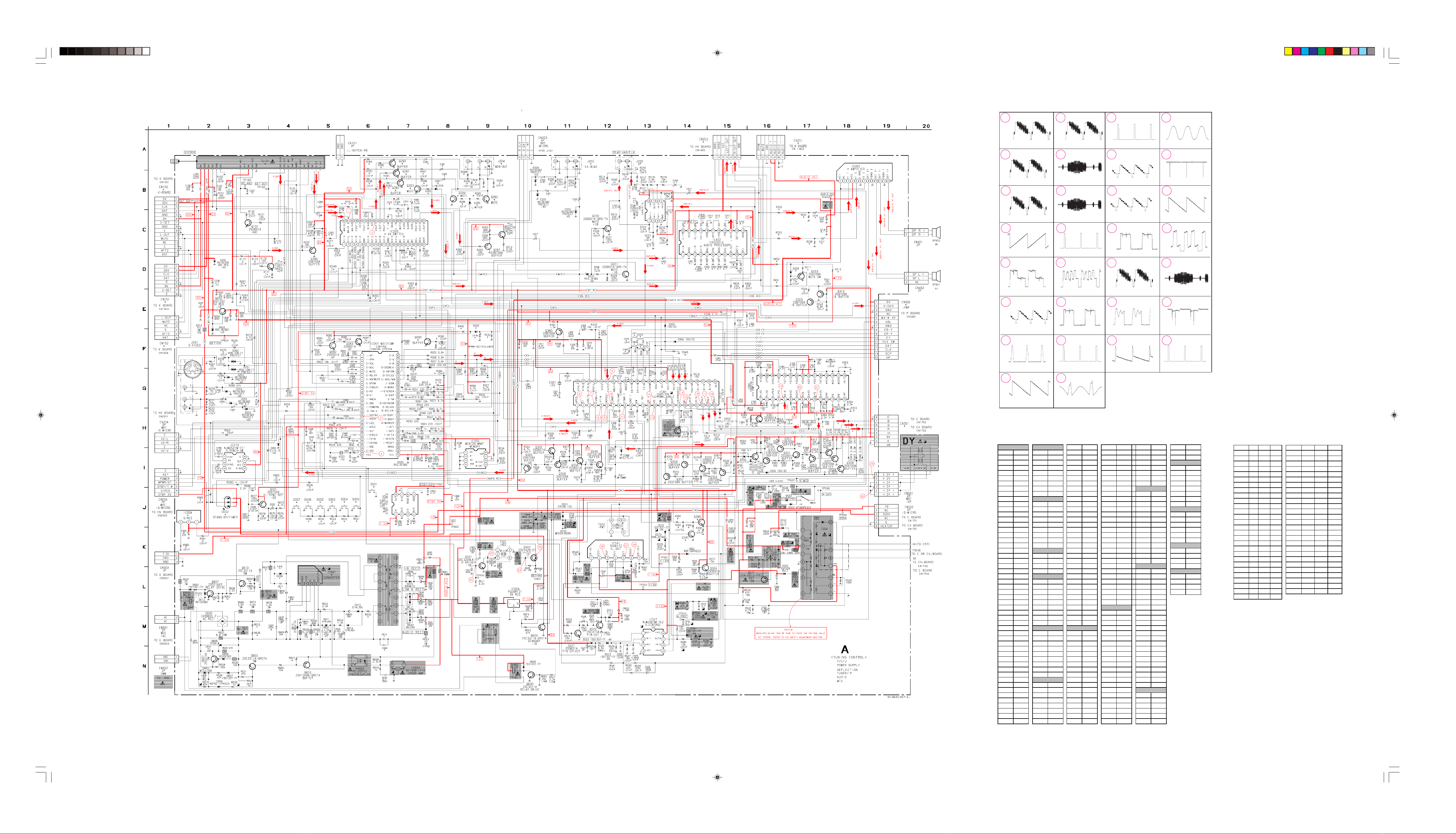
A BOARD SCHEMATIC DIAGRAM
KV-27S42/27S46/27S66/29AL42/29AL42C/29AL66/
29AL66C/29SL42/29SL42C/29SL46/29XL42M
A BOARD IC VOLTAGE LIST
A BOARD WAVEFORMS
A BOARD IC VOLTAGE LIST
All voltages are in V All voltages are in V
1234
5678
1.0 Vp-p (H) 2.0 Vp-p (H) 4.7 Vp-p (H) 3.6 Vp-p (8MHz)
2.0 Vp-p (H) 0.9 Vp-p (H) 1.7 Vp-p (H) 1.4 Vp-p (V)
1.0 Vp-p (H) 0.7 Vp-p (H) 0.9 Vp-p (H) 4.0 Vp-p (V)
13 14 15 16
17 18 19 20
910 11 12
21 22 23 24
25 26 27 28
1.4 Vp-p (V) 5.5 Vp-p (H) 5.3 Vp-p (H) 3.8 Vp-p (H)
3.1 Vp-p (H) 3.1 Vp-p (H) 1.3 Vp-p (H) 0.7 Vp-p (H)
1.2 Vp-p (H) 2.5 Vp-p (H) 182.8 Vp-p (H) 23.4 Vp-p (H)
1.08 KVp-p (H) 30.4 Vp-p (H) 54.3 Vp-p (V) 31.1 Vp-p (V)
2.4 Vp-p (V) 112.5 Vp-p (H)
29 30
BC E B C E
Q001 4.3 4.8 4.9 Q351 1.4 8.3 0.8
Q080 0.0 3.9 GND Q352 8.3 1.2 8.9
Q082 0.2 4.6 GND Q353 1.2 GND 1.8
Q083 0.0 0.6 GND Q354 1.1 GND 1.7
Q101 0.0 4.6 GND Q355 1.7 8.2 1.1
Q170 4.4 9.0 0.0 Q356 8.2 1.5 8.8
Q200 0.0 0.0 GND Q357 1.5 GND 2.2
Q201 0.6 0.0 GND Q358 5.9 9.0 5.2
Q203 2.4 GND 0.7 Q359 3.8 GND 4.4
Q280 5.2 GND 5.9 Q360 4.7 GND 5.3
Q281 4.1 GND 4.7 Q361 1.3 5.1 1.2
Q282 4.1 GND 4.7 Q390 5.0 9.0 4.4
Q283 0.0 5.9 GND Q391 0.0 5.0 GND
Q284 0.6 0.0 GND Q501 -0.1 97.3 GND
Q285 0.6 0.0 GND Q521 0.1 4.2 GND
Q286 4.4 GND 4.9 Q522 0.4 11.2 GND
Q287 5.0 GND 5.7 Q550 0.7 0.1 GND
Q288 7.3 9.0 6.7 Q555 2.1 4.0 1.5
Q300 0.2 3.5 GND Q571 134.0 0.8 134.6
Q302 4.4 9.0 3.8 Q601 -0.1 0.2 0.0
Q305 3.8 GND 4.4 Q602 0.0 17.0 0.0
Q306 1.7 GND 2.4 Q603 17.0 2.9 17.3
Q307 1.8 GND 2.4 Q604 0.1 3.9 GND
Q308 1.8 GND 2.4 Q607 0.7 0.1 GND
Q309 3.6 1.6 3.8 Q610 0.0 0.7 GND
Q310 3.6 GND 3.8 Q630 0.0 135.0 GND
Q349 5.2 9.0 4.6 Q650 5.7 9.0 5.1
Q350 0.7 GND 1.4
857 3 A Board Schem.p65 3/26/99, 2:30 PM1