
1591U EMLOCK
®
INSTALLATION INSTRUCTIONS
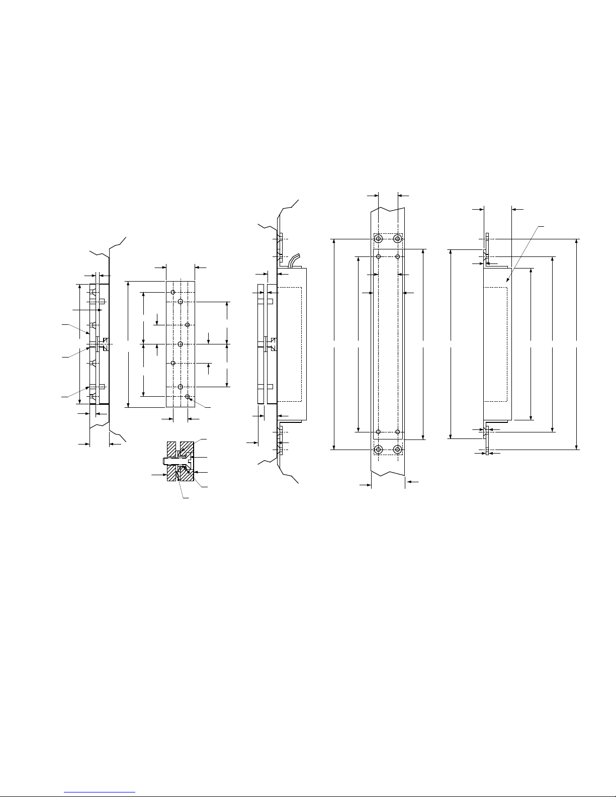
1. Prepare door jamb for EMLock per template drawing.
2. Locate reinforcement plate and mounting tabs as shown.
3. Center rmature Plate to the centerline of the lock. The cutout for the armature must be 1-1/2” wide
and 6-1/2” long.
4. Install an armature reinforcement plate or the mp mounting plate so that there is a 5/8” pocket when
measured from the leading edge of the door. The MP mounting plate is used to reinforce the mortise cutout
in a wood door. It is secured to the door with four (4) #10 wood screws and then the EMLock armature is
secured to the mounting plate with a 5/16”-18 x 3/4” bolt.
NOTE: The MP mounting plate is an option available from SDC.
5. ttach the EMLock wire leads to the power source and then install the EMLock and the armature with screws
provided.
SYSTEM WIRING
ELECTRONICS 24V CONFIGURATION
BLK
RED
ORG
WHT
(+) RED/BLK
TO 24VDC (+/ 10%)
FUSED, REGULATED
& FILTERED POWER
SOURCE
( ) WHT/BLK
RED
RED
ACCESS, EGRESS
AND
REMOTE CONTROLS
+
ELECTRONICS 12V CONFIGURATION
BLK
RED
ORG
WHT
(+) RED/BLK
( ) WHT/BLK
RED
RED
ACCESS, EGRESS
AND
REMOTE CONTROLS
+
IMPORTANT WIRING INFORMATION:
Use the system wiring diagram to configure the EMLock for 12 VDC or 24 VDC operation.
lthough using a DC power supply is recommended, a transformer with a bridge rectifier may also be used as a
DC power source. If you are using a transformer and rectifier, a transformer with the correct output voltage must
be used. ccess controls must not be wired to the C side of the bridge rectifier or power supply. ccess
controls must always be wired to break the DC side of the power source.
P:\INST LL TION INST\Electromagnetic Locks\INST-1591U.vsd REV C 01-17 Page 1
801 Avenida Acaso, Camarillo, Ca. 93012 • (805) 494-0622 •
www.sdcsec rity.com • E-mail: service@sdcsec rity.com
N/O
COM
N/C
GRY
YEL
ORG
(POLARITY SHOWN WITH
THE DOOR OPEN)
1591U – DPS OPTION
TO 12VDC (+/ 10%)
FUSED, REGULATED
& FILTERED POWER
SOURCE