Page 10
Page 10
SECTION I
GENERAL INFORMATION & INSTALLATION
1. DESCRIPTION
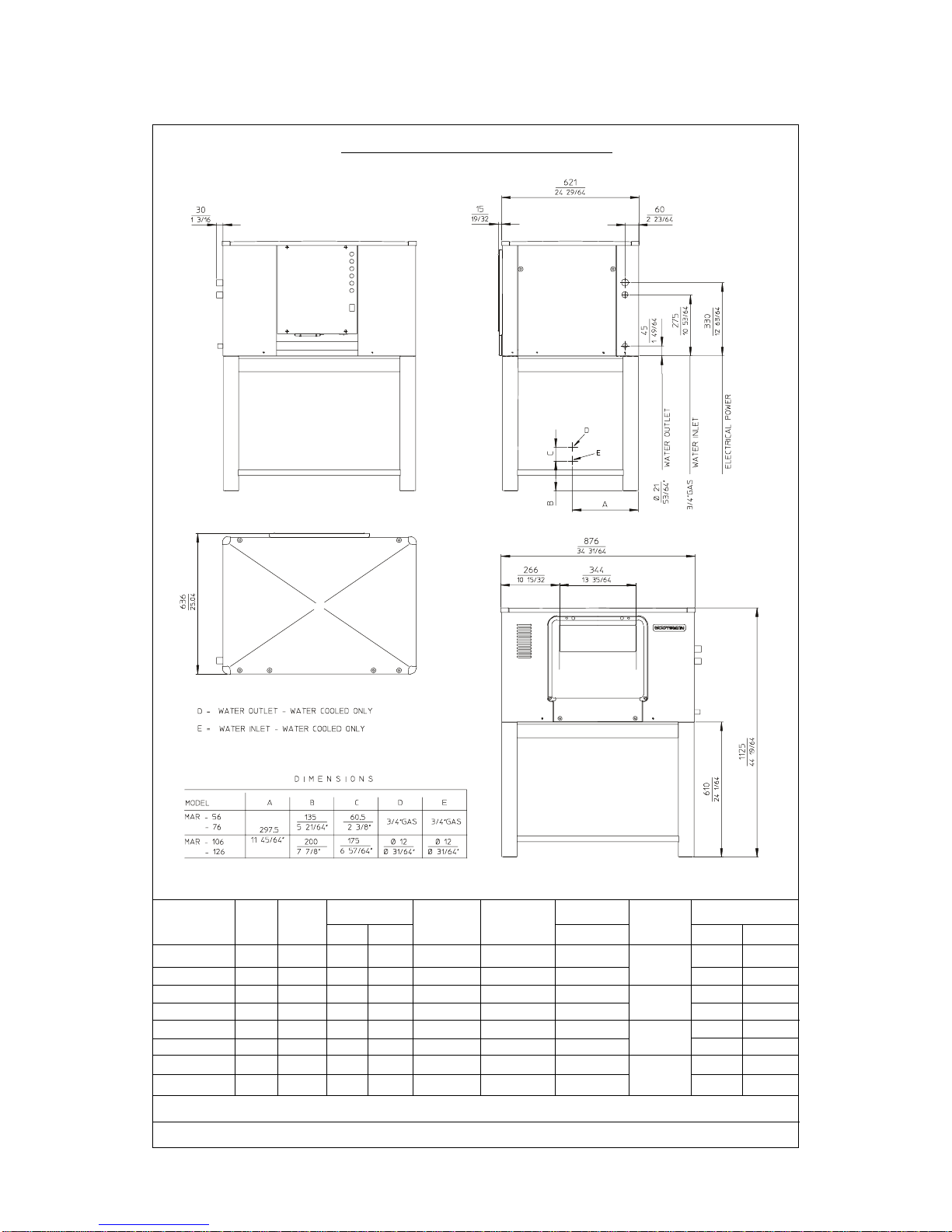
An attractive compact cabinet of stainless steel
with control panel lights on the front. All panels
are removable to allow easy access to electrical
and mechanical components for cleaning and
maintenance.
Sealed Refrigeration System
To provide quite efficient operation of the ice
maker, the compressor is mounted on rubber
cushions.Thewatercooledmodels haveatube
within tube condenser with water regulation val-
ve for correct condensing water flow. The air
cooledmodels,excepttheMAR306haveabuilt
in condenser in copper and aluminium with the
fan motor controlled by pressure control. The
evaporator drum is powered by a separate drive
motorconnectedbyaV-beltandpulleysystemto
adoublegearbox.TherefrigerantusedisR404a
controlled by automatic expansion valve.
Storage Bin or Ice Room
Since the MAR Scale is a continuous flow type
ice maker and does not have its own attached
storagebin,itisnecessarytouseanauxiliarybin
or a pre-fabricated ice room for appropriate ice
storage.
Ice storage situations are of two kinds:
a) Short term storage
b) Extended terms storage
Being, as stated, scale ice made by MAR
machinesflat, dry andsubcooled, therefore with
the tendency to stick toghether, particular
attention is required for proper ice storage
conditions for better ice handling. An insulated
icestoragebinor roomsisalwaysrequired,then
according to ice end use application, this can be
refrigerated on non-refrigerated.
Also a weight volume ratio of 2,1 cu. mt. per
ton, must be taken into consideration for correct
ice storage.
a) Non-refrigerated room for short term
storage.
Thescaleiceisproduced continuouslyfor24
hours per day, whereas the use period is
generally for no longer than 8 hours per day.
Thereforestoragefacilitiesshouldbeprovided
to accomodate a minimum of 16 hours of
production, this means that every scale ice
machine must be installed with a properly
insulated storage room which should have a
minimum capacity of 2/3 the daily ice
production.
Withawellinsulatedroomanddulysubcooled
scale ice, the limited losses of heat throught
the walls of a properly designed room with
adequate arrangements, are largely offset,
and excess melting will not occur. In most
situationswherewholequantityoficeproduced
isbeingusedonadailybasis,itisnotnecessary
to provide cooling for the ice storage room.
b) Refrigerated room for extended storage
and long distance conveying.
When scale ice is to be transported at a
considerabledistance,suchasaboardfishing
vessels, or in locations with normal ambient
temperatures conditions, or when used in
industrialplantswheredemandisintermittent,
its subcooling power must be absolutely
preserved in the storage bin by a proper
cooling system keeping air temperature at a
pre-establishedandconstantvalue.Theideal
icestorageroomisthetypewithmechanically
refrigerated jacket space surrounding the ice
bin. Good practice calls for an ice storage
capacity of about two times the daily ice
machines production with an inside tempera-
ture of -6°C minimum (20°F).
2. UNPACKING AND INSPECTION
1. Call your authorized SCOTSMAN Distributor
od Dealer for proper installation.
2. Visually inspect the exterior of the shipping
container and skid and any severe damage
noted should be reported to the delivering
carrier; and a concealed damage claim filled
subject to internal inspection, with carrier
representative present.
3. Removethepackingandremovetheshipping
bolts and the shipping base or skid.
4. When necessary, install the leg levellers in
the cabinet base sockets; then, raise the
cabinet to the upright position.
5. Remove screws and shipping tapes and all
doorsandservicepanelsfromthecabinetand
inspect for any concealed damage.
Notifycarrierofanyconcealeddamageclaims
as stated in step 2 above.
6. Remove all internal support packing, tape
and wires in machinery compartment.
7. Check that refrigerant lines do not rub or
touch lines or surfaces and that fan blades, if
any, moves freely.
8. Checkthatcompressorissnugonallmounting
pads.
9. Use clean damp cloth or disposable paper
wiperto wipe clean theexterior surface of the
cabinet.