
46.100/1
R
RDT 100: Electronic controller for ventilation and air-conditioning
For universal, autonomous use in ventilation and air-conditioning systems or similar; with
measurement, control and time functions for controlling temperature, humidity, pressure and flow.
DDC compact controller with PI, two- or three-point control and command, sequence and limitation
functions. Thirty-five configurations of control models available. All parameters are pre-set and enable
commissioning to be executed quickly. Plug-in memory available as an option, for documenting and for
copying the setting parameters.
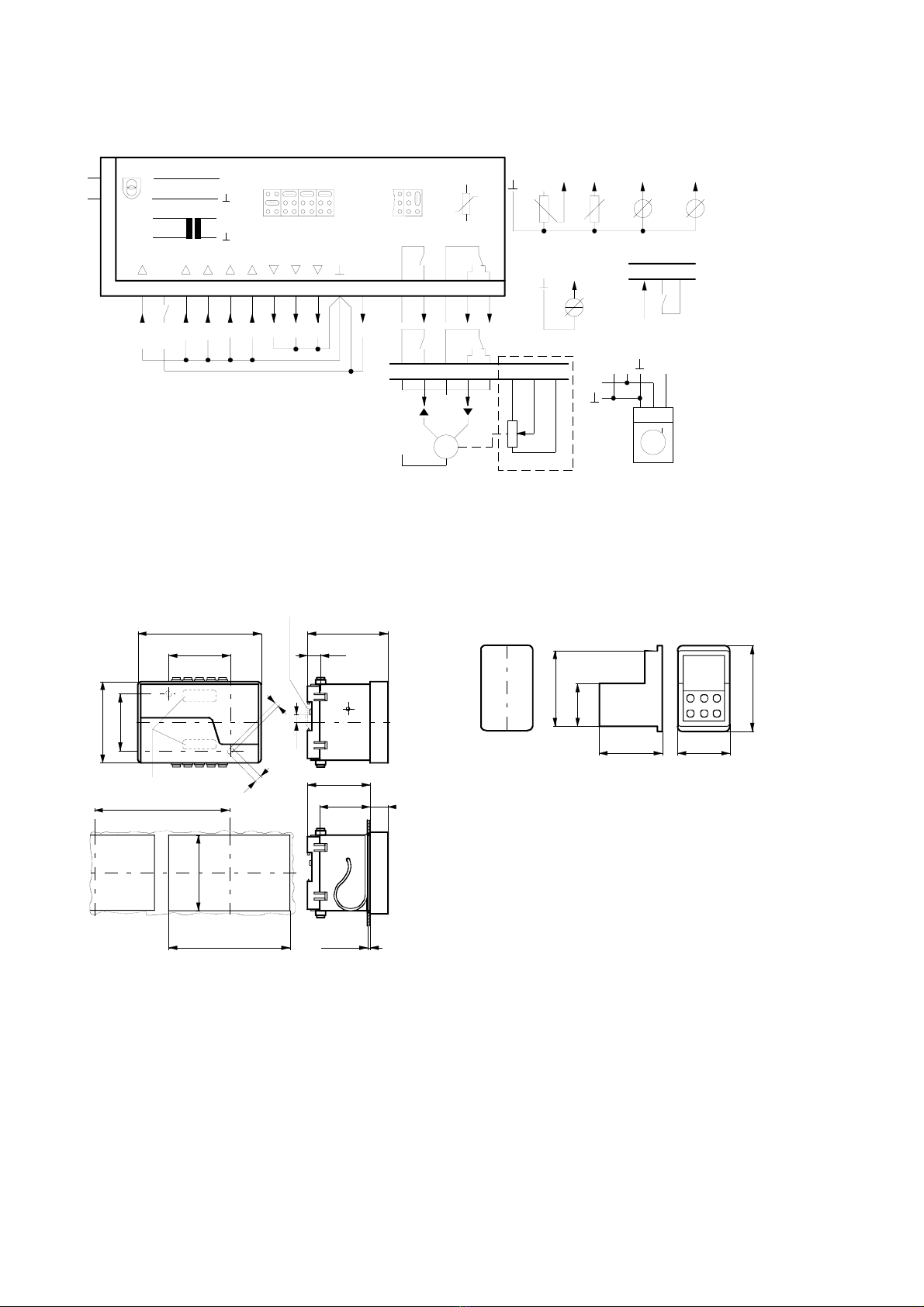
Front plate with LCD panel, keys and sealable, 3-position sliding switch (manual, automatic,
service); snap-shut flap for covering the service keys and for safeguarding the abridged operating
instructions. Housing 144 ×96 mm (DIN 43700) of flame-resistant, pure-white thermoplastic
(RAL 9010); for mounting onto walls, into control panels or onto top-hat rails as per EN 50022. PI
Y06366
Baseplate with screw terminals for electric cable of up to 2 ×2.5 mm2; cable inlet from behind, above
or below.
Y1
(Y2)
Xi1
(Xi3)
Xi1
(Xi3)
Y1
(Y2)
Xi2
PI
PI
PI
Y1
(Rel.)
Xi1
(Xi3)
PI
Y1
Xi1
(Xi3)
PI
Xi2
(Y2)
B06743
Y1
Xi1
Min
Max
Xi2 PI
PI
100 % setpoint
0
0actual value Xi3
shift
100 %
B06744
∆Ws
Xs
F1
FP
100 % control signal
P-band Xp
sequence
y1y2
Type 1) Range
[°C]
Control modes Voltage Weight
[kg]
RDT 100 F001 –30...150 P, PI, 2pt, 3pt 230 V~ 0.67
RDT 100 F002 –30...150 P, PI, 2pt, 3pt 24 V~ 0.54
Models
Structure of controller 1 output
continuous
Sequence
contin.-contin
Sequence
contin.-2pt
1 output
2pt
1 output
PI (3pt)
1 fixed-value controller:0 1 15 20
30
with command 2 3 16 22 31
2 fixed-value controller:12 – – 21
–
with common actual value 13 – – 27 –
with y = min/max selection 14 – – – –
1 controller with command – – – 23 –
with common command – – – 24 –
common actual value; once with command – – – 25 –
common acttual value; common command – – – 28 –
1 cascade controller:4 5 17 –
32
with command 6 7 18 – 33
1 differential controller:8 9 – 29
34
with command 10 11 – 26 35
Ranges (depends
on transmitter)
Temperature
[°C or K]
Percentage
[%]
Rel. humidity
[%rh]
Abs. humidity
[g/kg]
Enthalpy
[kJ/kg]
no units
Setpoint Xs–30...150 °C 0...100 0...100 0.0...20 0...100 –4999...4999
P-band 0.1...250 K 0.1...1000 0.1...100 0.1...100 0.1...100 10...4999
4 universal inputs 2) 1 binary input 2) Threshold –6 V
Temperature Ni1000 (DIN 43760)
Voltage 0(2)...10 V; Ri= 100 kΩOutputs
0...1 V, Ri= 500 kΩ2 continuous 0(2)...10 V, load > 5 kΩ
Current 0(4)...20 mA, Ri= 50 Ω1 continuous 0...10 V, load > 5 kΩ
Potentiometer 2 kΩ(min.1 kΩ) 2 relays 5(2) A, 250 V~
Power supply 230 V~ +10/-15%; 50...60Hz Degree of protection IP 40 (EN 60529)
24 V~ ±20%; 50...60 Hz Protection class F001 230V II (IEC 60730)
F002 24V III (IEC 60730)
Power consumption 2.5 VA
P-band Xp0.1....250 K Wiring diagram A06368
Integral action time Tn0....9990 s Dimension drawing M368900
Switching difference XSd 0.1...180 K Fitting instructions MV 505379
Cycle 1 s Operating instructions 7000835 (Part 1)
Permissible ambient temp. 0...45 °C Commissioning 7000836 (Part 2)
Ambient humidity 5...95 %rh Abridged oper. instructions BA 505380
Accessories
0369739 . . . Operating instructions (Part 1, Part 2 and Abridged operating instructions)
German 001, French 002, English 003, Italian 004
0369746 001 Cover plate for the whole front; of transparent thermoplastic; sealable
0226187 002* Plug-in dummy for memory slot
0226187 003* Plug-in memory for Flexotron
*) Dimension drawing or wiring diagram are available under the same number
1) Operating instructions; since several languages are available, please order as an accessory.
2) Protected against short-circuiting and over-voltage up to 24 V ac. Current input max 70 mA.
Sauter Components
7146100003 S4