
4
1. GÉNÉRALITÉS
L’installation et la mise en service devront être réalisées uniquement
par du personnel qualifié.
1.1 Application
Coffret de commande pour la gestion automatique des pompes et
modules de relevage jusqu’à 4 kW.
Il convient d’observer les consignes en vigueur en cas d’utilisation
dans des zones présentant un risque d’explosion.
Le coffret de commande EC DRAIN n’est pas protégé contre les
explosions et doit être uniquement installé en dehors de la zone pré-
sentant un risque d’explosion.
1.2 Caractéristiques techniques
• Tension de fonctionnement
: 1 ~ 230 V
: 3 ~ 230 V
: 3 ~ 400 V
• Fréquence : 50/60 Hz
• Puissance de coupure max. : P2 ≤4 kW (3 ~ 400 V)
• Courant max. : 12A
• Type de protection : IP65
• Protection par fusibles : 16A, AC3 (non fourni)
• Température ambiante : de -10 °C à +40 °C
• Contact d’alarme : Charge de contact max.
250 V, 1A~
• Contact d’indication de
fonctionnement : Charge de contact max.
250 V, 1A~
• Fusible protection transfo : 100 mA/500V
2. SÉCURITÉ
La présente notice contient des instructions primordiales, qui doivent
être respectées lors du montage et de la mise en service. C'est pourquoi
elle devra être lue attentivement par le monteur et l'utilisateur et ce,
impérativement avant le montage et la mise en service. Il y a lieu d’ob-
server non seulement les instructions générales de cette section, mais
aussi les prescriptions spécifiques abordées dans les points suivants.
2.1 Symboles des consignes du manuel
Risque potentiel mettant en danger la sécurité des personnes.
Risque potentiel relatif à l’électricité mettant en danger la sécu-
rité des personnes.
Signale une instruction dont la non-observation
peut engendrer un dommage pour le matériel et
son fonctionnement.
2.2 Qualification du personnel
Il convient de veiller à la qualification du personnel amené à réaliser
le montage.
2.3 Dangers encourus en cas de non-observation des consignes
La non-observation des consignes de sécurité peut constituer une
menace pour la sécurité des personnes et de l’installation. Elle peut
également entraîner la suspension de tout recours en garantie.
Plus précisément, les dangers encourus peuvent être les suivants :
-Défaillance de fonctions importantes de la pompe/installation.
- Défaillance du processus d’entretien et de réparation prescrit.
- Dangers pour les personnes par influences électrique, mécanique
ou bactériologique.
- Dommages matériels.
2.4 Consignes de sécurité pour l’utilisateur
Il convient d’observer les consignes en vue d’exclure tout risque
d’accident.
Il y a également lieu d’exclure tout danger lié à l’énergie électrique.
Il convient d’observer les prescriptions en vigueur. Respectez les ins-
tructions de la norme IEC 60364 et des normes européennes.
2.5 Conseils de sécurité pour les travaux d’inspection et de montage
L'utilisateur doit faire réaliser ces travaux par une personne spéciali-
sée qualifiée ayant pris connaissance du contenu de la notice.
Les travaux réalisés sur l’installation ne doivent avoir lieu que si les
appareillages correspondants sont à l’arrêt.
2.6 Modification du matériel et utilisation de pièces détachées non
agréées
Toute modification du coffret ne peut être effectuée que moyennant
l'autorisation préalable de Salmson. L'utilisation de pièces de rechan-
ge d'origine et d'accessoires autorisés par le fabricant garantit la
sécurité. L'utilisation d'autres pièces dégage la société SALMSON de
toute responsabilité.
2.7 Modes d'utilisation non autorisés
La sécurité de fonctionnement de l'installation livrée n’est garantie que
si les prescriptions précisées au chap. 1 de la notice d’utilisation sont
respectées. Les valeurs indiquées dans la fiche technique ne doivent
en aucun cas être dépassées, tant en maximum qu’en minimum.
3. TRANSPORT ET STOCKAGE
Dès réception du matériel, vérifier s’il n’a pas subi de dommages
durant son transport. En cas de défaut constaté, prendre dans les
délais prévus toutes dispositions nécessaires auprès du transporteur.
Le coffret de commande doit être protégé contre
l’humidité et les dommages mécaniques provo-
qués par des chocs ou des coups. Il ne peut être exposé à des tem-
pératures dépassant les limites de -10°C à +40°C.
4. PRODUITS ET ACCESSOIRES
4.1 Description du coffret de commande (Voir FIG. 1)
Le coffret de commande EC DRAIN permet de gérer automatique-
ment une pompe. La face avant du coffret de commande contient
les touches, le sectionneur et les affichages suivants :
4.1.1 Sectionneur principal (rep. 1)
0 = Arrêt
I = Marche
4.1.2 Touches
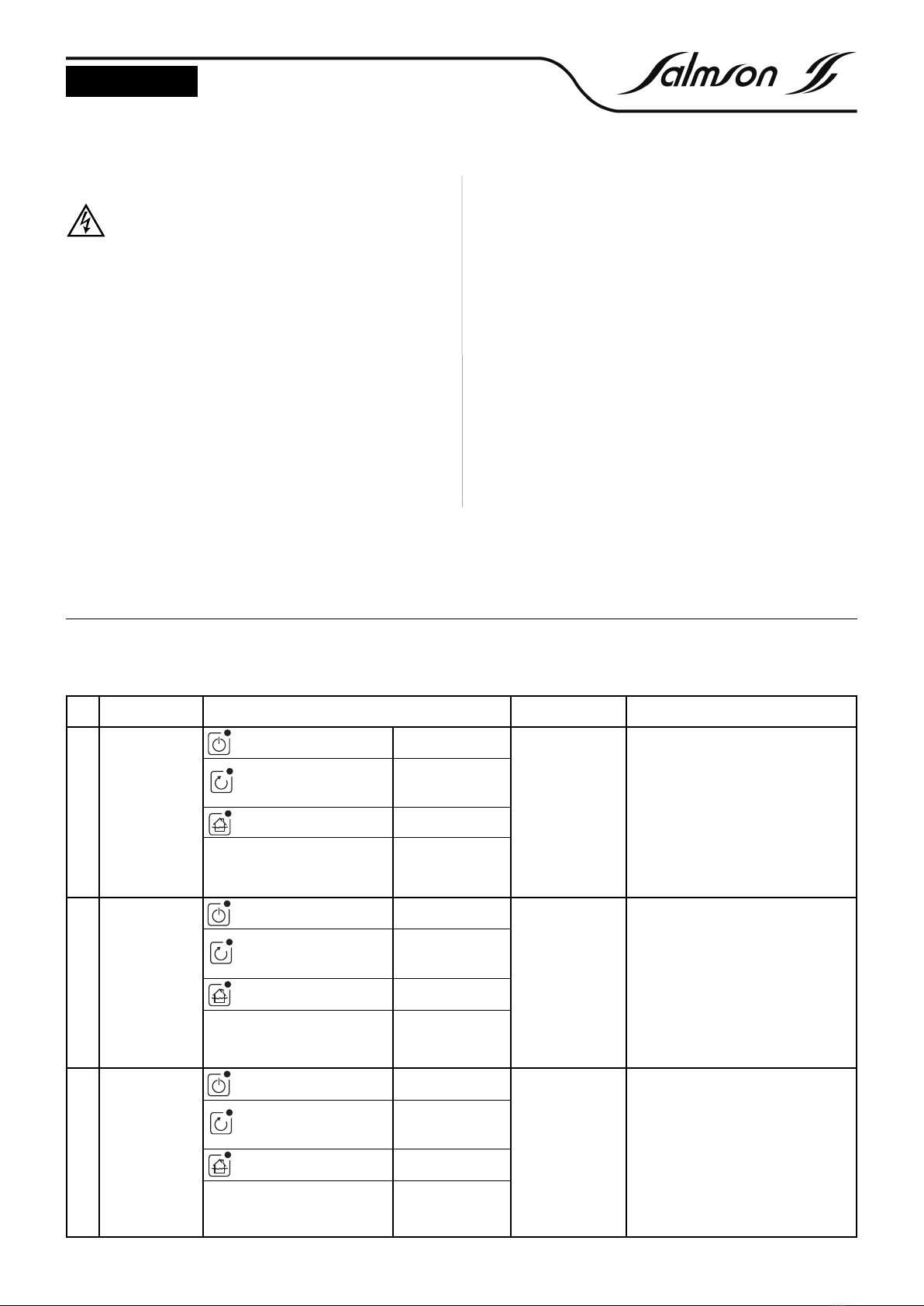
Mode automatique (rep. 7)
Lorsque vous appuyez sur cette touche, le coffret de commande
passe en mode automatique.
La LED verte du mode automatique (rep. 3) est allumée en perma-
nence et indique ainsi la disponibilité de la pompe.
En mode automatique, le pilotage de la pompe s’effectue en fonc-
tion du signal émis par l’interrupteur à flotteur.
En cas de défaillance de l’interrupteur à flotteur (accessoire)
”Pompe Marche/Arrêt”, l’enclenchement de la pompe est forcé
par l’interrupteur à flotteur (accessoire) ”Alarme Trop plein”, un
signal d’alarme optique et acoustique retentit et le contact du
signal défaut centralisé (SSM) s’enclenche.
En mode automatique, toutes les fonctions de sécurité, telles que la
protection moteur, sont activées sur la pompe. Attention ! En mode
de fonctionnement ”Trop plein”, ces fonctions sont désactivées.
Afin de protéger l’installation contre les inonda-
tions, l’alarme Trop-plein est toujours activée, ce
qui entraîne un enclenchement forcé de la pompe lorsque le niveau
Trop-plein est atteint.
En cas de déclenchement de l’alarme Trop-plein, contrôlez le mode
de fonctionnement. Lorsque le mode automatique est désactivé,
appuyez sur cette touche pour l’activer de nouveau.
ATTENTION !
ATTENTION !
ATTENTION !
FRANCAIS