
2
RUPES dryers are designed exlusively for car-repair professionals and for the car industry.
The instruction booklet is a main part of the product. It must be given to the user, who in turn is bound
to train his team members to use the dryer correctly.
The instruction booklet must always be available when working.
Read carefully the directions in the booklet: they give important instructions about safe installation,
use and maintenance.
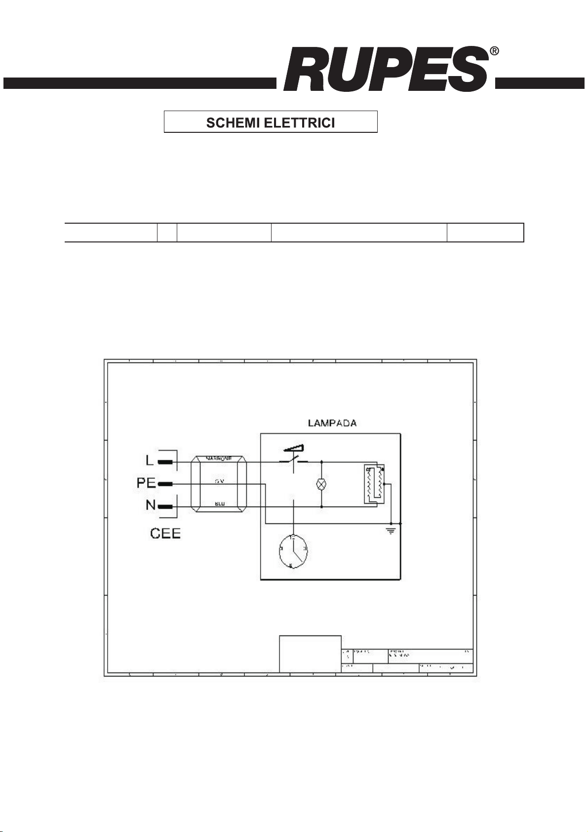
RUPES dryers must be installed by skilled staff, expert on electrical systems.
The faulty installation of the dryer may cause damage to people, animals and things for which the
manufacturer is NOT liable.
Remove all packing and make sure that the contents are in perfect conditions. Should there be any
doubt, do not use the dryer and contact your supplier.
Packing (cartons, plastic bags, staples and clips, polystyrene etc.) can be dangerous and must be
kept away from children.
MAINTENANCE
Before any cleaning or maintenance make sure to unplug the dryer.
Keep the dryer clean and protect it from paint fumes and powder which could damage the golden
reflectors and the lamps.
1. Clean the reflectors and the lamps periodically with air jets (max 1 bar)
2. Clean the dryer cassettes only with a dry cloth
3. Check the electricity cables every day
PROBLEMS
Should there be any failure or any problem with the dryer, disconnect it and do not try to intervene.
Contact only skilled professionals.
Not respecting the above mentioned instructions may prejudice the safety of the dryer.
Use only original spare parts. Non-original spare parts may alter the characteristics of the dryer.
THE MANUFACTURER DECLINES ANY RESPONSIBILITY FOR ANY DAMAGE DERIVING
FROM FAULTY INSTALLATION OR USE OF THE DRYER. THE MANUFACTURER IS NOT
LIABLE FOR ANY DAMAGE CAUSED BY THE NON-OBSERVANCE OF THE RULES AND
INSTRUCTIONS GIVEN BY THE MANUFACTURER.