
4
ES NL
PT PL
1 Advertencias generales 157
Declaración CE de Conformidad 159
2 Símbolos 160
3 Descripción del producto 160
4 Actualización de la versión r3.50 161
5 Características técnicas del producto 161
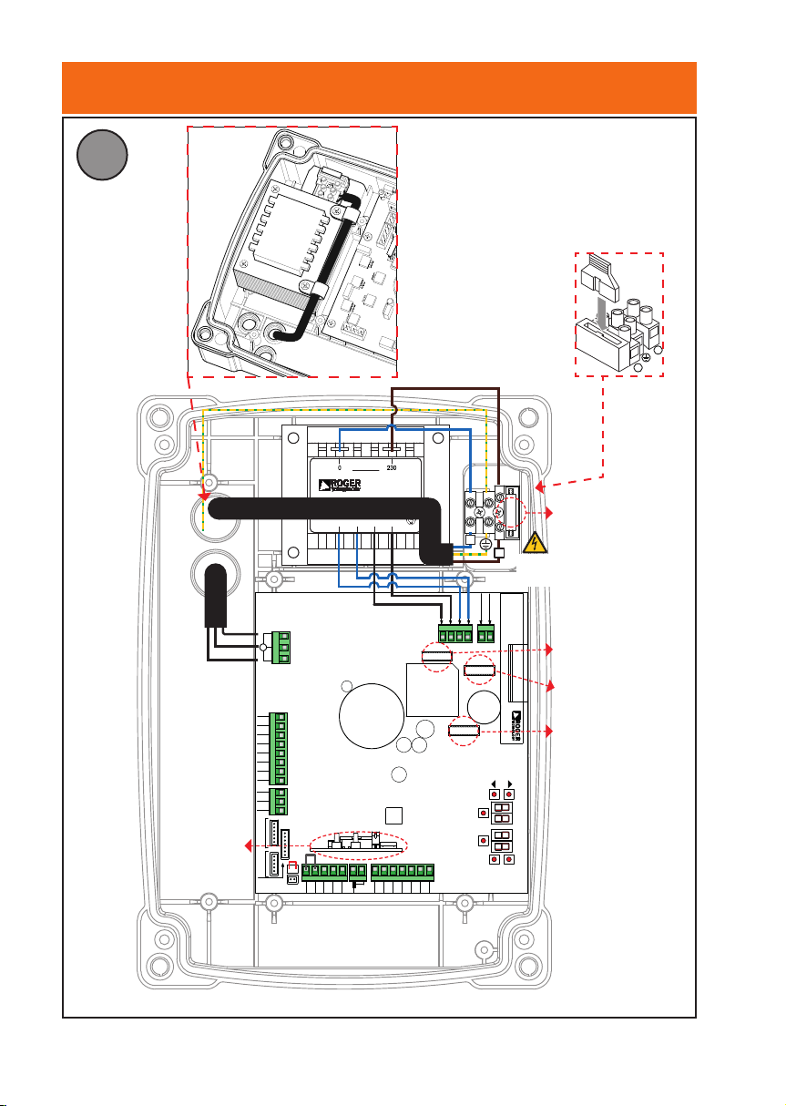
6 Descripción de las conexiones 162
6.1 Instalación básica 162
6.2 Conexiones eléctricas 163
7 Comandos y accesorios 164
8 Teclas de función y pantalla 167
9 Encendido o puesta en servicio 167
10 Modo de funcionamiento de la pantalla 167
10.1 Modos de visualización de los parámetros 167
10.2 Modos de visualización de indicaciones de seguridad
y comandos 168
10.3 Modo de TEST 168
10.4 Modo Stand By 168
11 Aprendizaje del recorrido 169
11.1 Antes de actuar: 169
11.2 Procedimiento de aprendizaje: 171
12 Índice de los parámetros 172
13 Menú de parámetros 174
14 Ejemplos de aplicaciones para funcionamiento en modo
de acceso a los aparcamientos. 182
15 Señalización de las entradas de seguridad y de los
comandos (Modo TEST) 183
16 Señalización de alarmas y anomalías 184
17 Diagnostica - Modo Info 187
18 Desbloqueo mecánico 188
19 Ensayo 188
20 Puesta en funcionamiento 189
21 Mantenimiento 189
22 Eliminación 189
23 Información adicional y contactos 189
1 Advertências gerais 190
Declaração CE de conformidade 192
2 Simbologia 193
3 Descrição do produto 193
4 Atualizações da versão r3.50 194
5 Caraterísticas técnicas do produto 194
6 Descrição das ligações 195
6.1 Instalação tipo 195
6.2 Ligações eléctricas 196
7 Comandos e acessórios 197
8 Teclas de função e display 200
9 Ignição ou comissionamento 200
10 Modalidade de funcionamento do display 200
10.1 Modalidade de visualização dos parâmetros 200
10.2 Modalidade de visualização de estado dos comandos
e dispositivos de segurança 201
10.3 Modalidade TESTE 201
10.4 Modalidade Stand By 201
11 Aprendizagem do curso 202
11.1 Antes de proceder: 202
11.2 Procedimento de aprendizado: 204
12 Índice dos parâmetros 205
13 Menu dos parâmetros 207
14 Exemplos de aplicações para o funcionamento em modo
de acesso aos estacionamentos. 215
15 Sinalização das entradas de segurança e dos comandos
(modalidade TEST) 216
16 Sinalização de alarmes e anomalias 217
17 Diagnosticar - Modo INFO 220
18 Desbloqueio mecânico 221
19 Teste 221
20 Entrada em funcionamento 222
21 Manutenção 222
22 Descarte 222
23 Informações adicionais e contatos 222
1 Algemene waarschuwingen 223
EG-verklaring van overeenstemming 225
2 Symbolen 226
3 Beschrijving product 226
4 Update versie r3.50 227
5 Technische kenmerken product 227
6 Beschrijving aansluitingen 228
6.1 Type installatie 228
6.2 Elektrische aansluitingen 229
7 Bedieningen en accessoires 230
8 Functietoetsen en display 233
9 Inschakeling en inbedrijfsstelling 233
10 Bedrijfsmodus display 233
10.1 Modus van weergave parameters 233
10.2 Modus van weergave van de status bedieningen en
veiligheden 234
10.3 TEST modus 234
10.4 Stand By modus 234
11 Lering van de slag 235
11.1 Voordat de handelingen worden uitgevoerd: 235
11.2 Procedure van lering: 237
12 Inhoudsopgave van de parameters 238
13 Menu parameters 240
14 Voorbeelden van toepassingen voor de werking in de
toegangsmodaliteit parkings 248
15 Signalering van de veiligheidsingangen en van de
bedieningen (modus TEST) 249
16 Signalering alarmen en storingen 250
17 Modus INFO 253
18 Mechanische deblokkering 254
19 Test 254
20 Inbedrijfstelling 255
21 Onderhoud 255
22 Inzameling 255
23 Bijkomende informatie en contact 255
6Z[YaLǏLUPHVN}SUL
+LRSHYHJQHaNVKUVNjJP>,
:`TIVSL
6WPZ\YaǃKaLUPH
(R[\HSPaHJQH^LYZQPY
*OHYHR[LY`Z[`RH[LJOUPJaUH\YaǃKaLUPH
6WPZWVéǃJaLlj
9VKaHQPUZ[HSHJQP
7VéǃJaLUPHLSLR[Y`JaUL
,SLTLU[`Z[LYV^UPJaLPHRJLZVYPH
7Ya`JPZRPM\URJ`QULP^`Nj^PL[SHJa
>éǃJaHUPLS\I\Y\JOHTPHUPL
;Y`I`KaPHéHUPH^`Nj^PL[SHJaH
>`Nj^PL[SHUPLWHYHTL[Y}^
>`Nj^PL[SHUPL Z[H[\Z\ Z`NUHé}^ Z[LYV^UPJa`JO P
aHILaWPLJaLlj
;Y`I;,:;
;Y`I:[HUK)`
7YVNYHTV^HUPLY\JO\
>JaLNjUPLQ!
7YVJLK\YHWYVNYHTV^HUPHY\JO\!
:WPZWHYHTL[Y}^
7Ya`RéHK` aHZ[VZV^Hlj KSH KaPHéHUPH ^ [Y`IPL ^QHaK\ UH
WHYRPUNP
:`NUHSPaHJQH ^LQNjDž ILaWPLJaLljZ[^H P Z`NUHé}^
Z[LYV^UPJa`JO[Y`I;,:;
:`NUHSPaHJQLHSHYTV^LPIéLJK`
;Y`I05-6
6KISVRV^HUPLTLJOHUPJaUL
;LZ[`VKIPVYJaL
<Y\JOVTPLUPL
2VUZLY^HJQH
<[`SPaHJQH
0UMVYTHJQLKVKH[RV^LPKHULRVU[HR[V^L