
3. Монтаж
Механическая установка, электрическое подклю-
чение иремонтные работы должны производить-
ся исключительно обученным персоналом.
Использовать только оригинальные запасные
части!
3. Assembly
Mechanical design, electrical connection and possi-
ble repair works must only be carried out by qualified
personnel. Only use original spare parts!
3.1 Указания по безопасности
•Чтобы шкафа сустановленным холодильным
агрегатом не опрокинулся, необходимо закре-
пить его кполу.
3.1 Safety advice
•In order to prevent the enclosure from tipping due
to the mounted cooling unit fix the enclosure to
the floor with bolts.
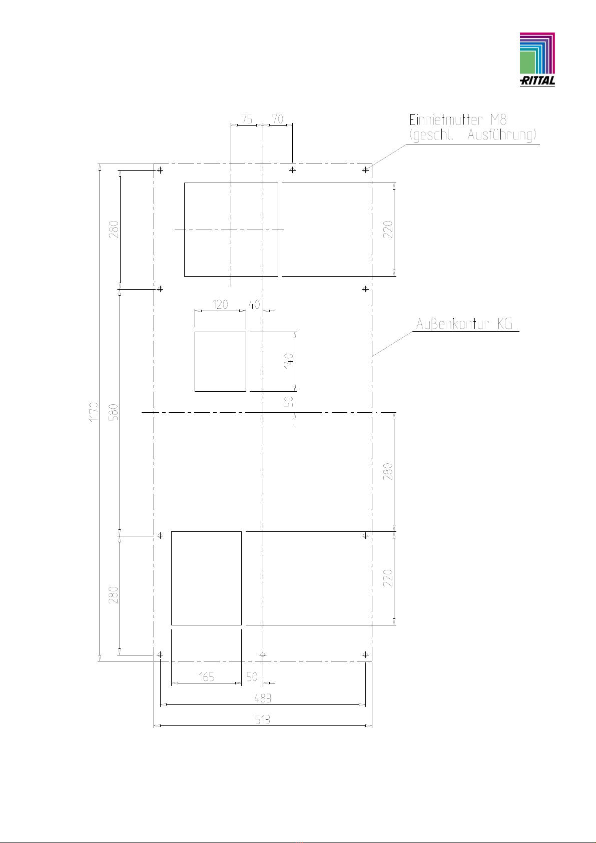
3.2 Указания по монтажу 3.2 Assembly instructions
При монтаже необходимо обратить внимание на
следующее:
•место установки распределительного шкафа
иположение холодильного агрегата должны
обеспечивать необходимый приток иотток
воздуха;
•вместе установки не должна быть грязь или
влага;
•вырез для входа воздуха должен, по возмож-
ности, располагаться вверхней части шкафа;
•необходимо соблюдать параметры подключе-
ния кэлектросети, указанные на заводской
табличке агрегата;
•температура окружающей среды не должна
превышать +55°C;
•упаковка не должна иметь признаков повреж-
дения. Жирные пятна на упаковке свидетель-
ствуют об утечке хладагента из агрегата. Лю-
бое повреждение упаковки может стать при-
чиной выхода агрегата из строя.
•необходимо обеспечить полную герметиза-
цию шкафа. При недостаточной герметизации
образуется конденсат.
•расстояние между агрегатом истеной должно
составлять не менее 200 мм;
•входные ивыходные отверстия агрегата не
должны быть закрыты;
•агрегат устанавливается только ввертикаль-
ном положении. Макс. отклонение от вертика-
ли 2°;
•обеспечить отвод конденсата (см. п. 6.3);
•Вцелях предотвращения повышенного обра-
зования конденсата необходимо установить
концевой выключатель двери, например PS
4127, который будет отключать холодильных
агрегат при открывании двери шкафа.
•Надежное уплотнение можно обеспечить пу-
тем усиления поверхности шкафа, на которую
монтируется агрегат.
Prior to mounting, ensure that
•the site of the enclosure and hence the arrange-
ment of the cooling unit, is selected in such a way
as to ensure good ventilation;
•the location is free from excessive dirt and mois-
ture;
•the cut-out for air extraction is located in the upper
area of the enclosure;
•the mains connection ratings, as stated on the
name plate of the unit, are available;
•the ambient temperature does not exceed + 55°C;
•the packaging shows no signs of damage. Traces
of oil on damaged packaging are an indication of
refrigerant loss and of leakage in the unit system.
Any damage to the packaging may be the cause
of subsequent malfunctions;
•the enclosure is sealed on all sides. Condensation
will occur if the enclosure is leaky;
•the distance of the units from the wall should not
be less than 200 mm;
•air inlet and outlet are not obstructed on the inside
of the enclosure;
•units should only be fitted horizontally in the speci-
fied position. Max. deviation from true horizontal:
2°;
•condensate drainage is provided (see 6.3);
•To avoid an increase in condensation, a door
operated switch (e.g. PS4127.000) should be
used which will switch the cooling unit off when
the enclosure door is opened.
•To achieve a permanent seal between the cooling
unit an the enclosure, the mounting surface may
have to be strengthened or supported