FlexiPanels®Advance HMI
Page 2of 17
© Renu Electronics Pvt. Ltd.
Table of Contents
INTRODUCTION ...................................................................................................................................................3
BEFORE YOU START..............................................................................................................................................3
SAFETY PRECAUTIONS..........................................................................................................................................4
PRODUCT OVERVIEW ...........................................................................................................................................5
INSTALLING FP4 PRODUCTS ........................................................................................................................................5
PANEL GUIDELINES ................................................................................................................................................................ 5
PANEL CUTOUT DIMENSIONS .................................................................................................................................................. 5
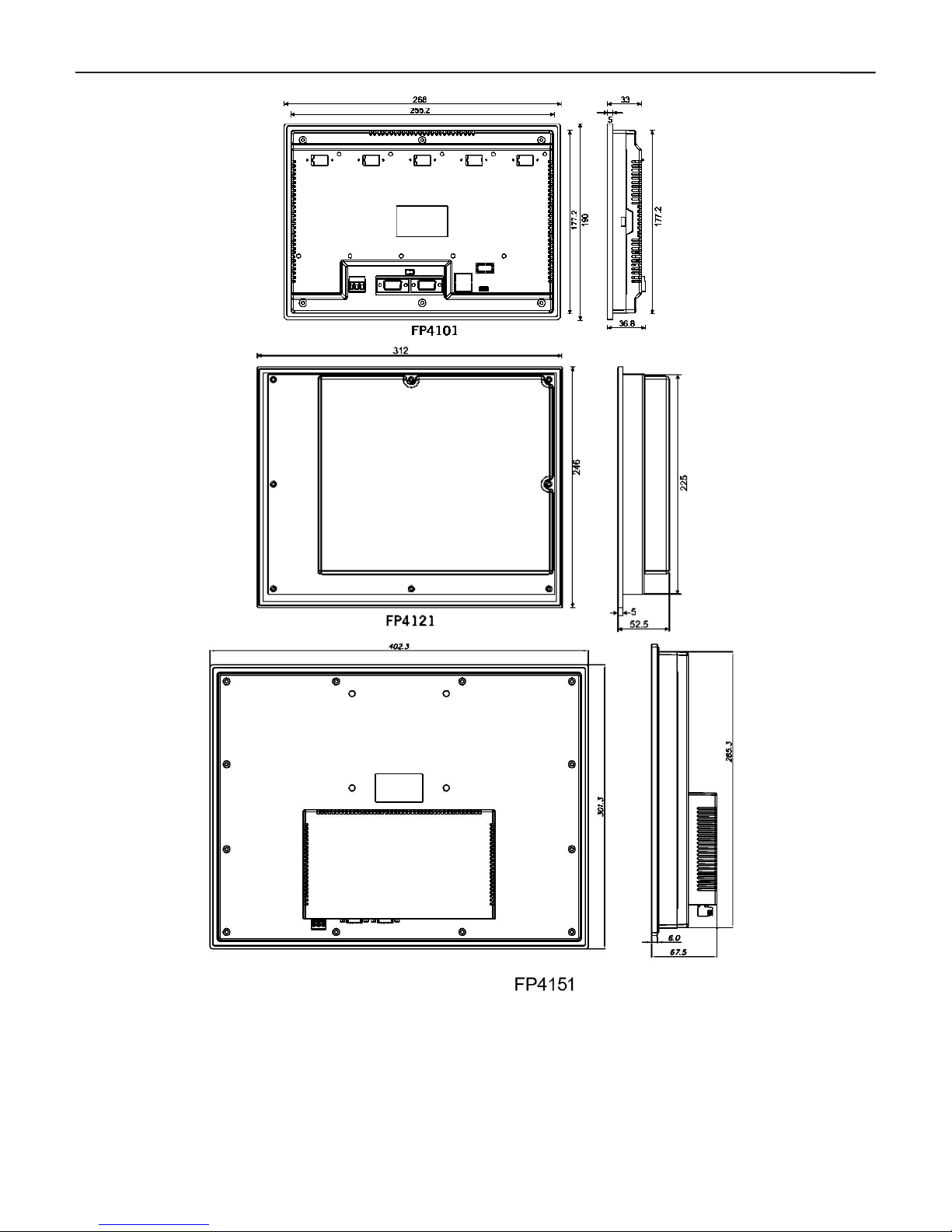
PRODUCT DIMENSIONS .......................................................................................................................................................... 5
MINIMUM CLEARANCES ......................................................................................................................................................... 7
MOUNTING FP4 PRODUCTS.................................................................................................................................................... 7
CONNECTING POWER............................................................................................................................................................. 7
GROUNDING ......................................................................................................................................................................... 7
PRODUCT SPECIFICATIONS ...................................................................................................................................8
PRODUCT NOMENCLATURE /ORDERING PART NUMBER ...................................................................................................8
DISPLAY SPECIFICATIONS............................................................................................................................................8
CPU, MEMORY AND POWER SUPPLY............................................................................................................................9
POWER RATING..................................................................................................................................................................... 9
COMMUNICATION INTERFACES .................................................................................................................................. 10
RS232 /RS422 /RS485 PORT ............................................................................................................................................ 10
ETHERNET PORT ..................................................................................................................................................................12
USB DEVICE PORT ............................................................................................................................................................... 12
USB HOST PORT ................................................................................................................................................................. 12
YTYPE CABLE...................................................................................................................................................................... 13
SD CARD SLOT .................................................................................................................................................................... 13
ACCESSORIES ........................................................................................................................................................ 14
PROGRAMMING CABLE ........................................................................................................................................................ 14
COMMUNICATION CABLE......................................................................................................................................................14
DEFAULT PRODUCT SETTING .............................................................................................................................. 15
ENVIRONMENTAL SPECIFICATIONS AND APPROVALS ....................................................................................................... 15
REVISION HISTORY............................................................................................................................................. 16
NOTES ............................................................................................................................................................... 17