DO make sure that the tyre-pressures are correct to the manufacturer’s recommendation.
DO make sure the chassis is in good condition without any damage and is free from rust, dirt etc.
DO stop work immediately if you are in doubt about the assembly or any procedures and consult one of our engineers
DO locate the battery isolation switch to be accessible at all times when parking and moving the caravan.
DO NOT remove, change or alter any parts of the chassis, axle, suspension or brake mechanism.
DO NOT operate the unit if you are under the inuence of drugs, alcohol or medication that could impair your ability to
use the equipment safely.
These instructions are for general guidance. Installation procedures may vary depending on
caravan type.
Use appropriate support! Working under a vehicle without appropriate support is extremely
dangerous. If you are fitting the mover system yourself, it is advisable that the installation is
conducted by two people, as the mover will need to be raised up to the bottom of the caravan’s
chassis before the clamps can be installed.
Place the caravan on a hard, level surface. The use of a lifting ramp or an assembly pit is ideal for access and personal
safety.
Clean the area of your chassis where you need to mount all components to ensure a good tting.
Unpack all the components and check for the presence of all parts (see Package Contents List). Note: Write down, on
the guarantee section of this manual, the two sequential serial numbers (these are located on the inside face of
the gearboxes.
Make sure the caravan is prepared for installation. Check before installation that important areas, such as drains/spare
tyre etc. do not cause any obstruction to the function of the mover.
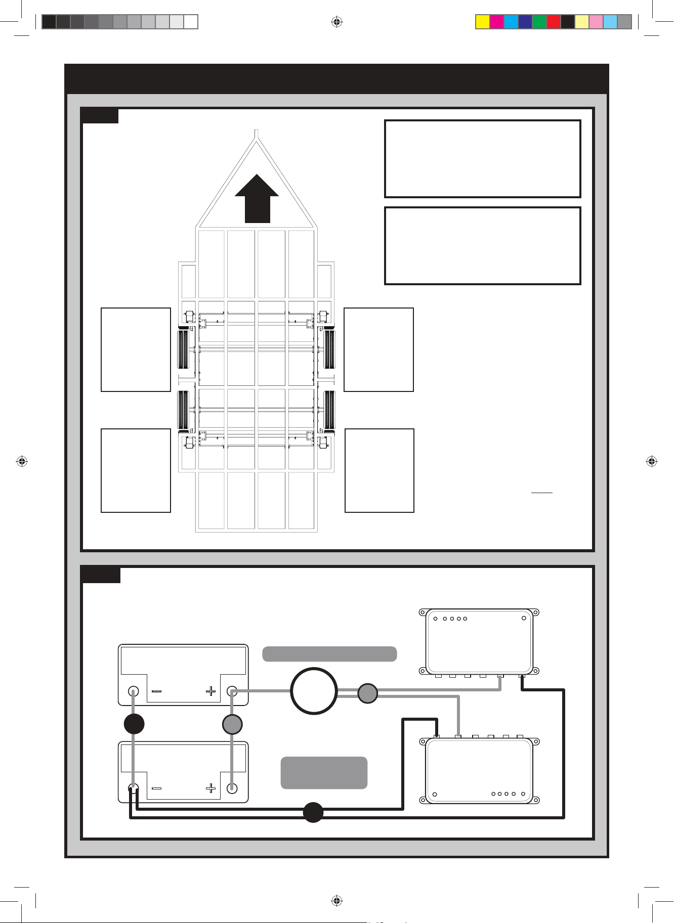
Ensure both rollers are in the DISENGAGED position (Fig.8 or Fig.12), as the unit will not t correctly otherwise
Loosely assemble motor unit (1), motor unit (2) and main cross bar (3) (see Fig.1). The nuts (Fig.1B), on the cross bar (3)
to secure both motor units, must be no more than nger-tight at this stage.
Place the assembly (Fig.1) loosely under the caravan and then carefully position the assembly at the correct height
against the tyres - use blocks of wood or something similar.
Ensure that the roller of each motor assembly is in line with the centre of the tyre - not below or above.
Position one of the chassis plates (37) (these are left and right handed; please refer to Fig.16 and Fig 16A. for guidance)
on the inside of the chassis at the correct height to attach the mover cross bar to. Ensure the lip on the plate faces
inwards towards the centre of the caravan. Mark the holes, drill and bolt to the chassis using the three 70mm bolts per
plate. Measure the hole position for the other side ensuring that the position is identical for both plates in relation to the
chassis and tyres.
Loosely t the two clamping assemblies to the chassis plate (see Fig.16/Fig.16A)) and attach using the bolts, nuts and
washers (16,17,18) provided in the installation kit. Nuts must be no more than nger-tight.
Assemble the parts of the cross actuation bar (4 & 5) and connect them to the motor units (1 & 2) with the nylock nut and
bolt (factory tted) onto the cross actuation bar-connectors (see Fig.1A). Nuts must be no more than nger-tight at this
stage.
Make sure that the Main Cross Bar (3) and the Cross Actuation Centre Bar (4) are positioned in the middle of the
caravan/mover (the centre of the bar is marked).
With the main assembly loosely tted onto the chassis, slide the whole assembly along the chassis until the rollers
(Fig.2A or Fig.4A) are 20mm away from the surface of the centre each tyre (Fig.8 or Fig.12). Two 20mm spacers (30) are
provided.
Installation - Mechanical Components