D600-01-00 1 I56-1569-002R
SpectrAlert Dual Strobe
For use with the following 24-volt models:
DS2475WAR DS2475WCG DS2475RAR DS2475RCG
DS2475WAC DS2475WCB DS2475RAC DS2475RCB
DS2475WAG DS2475WGR DS2475RAG DS2475RGR
DS2475WAB DS2475WGB DS2475RAB DS2475RGB
DS2475WCR DS2475WBR DS2475RCR DS2475RBR
DS2475_ _ _
Right Side Lens Color
Left Side Lens Color
Housing Color: “W” for White, “R” for Red
Lens colors: “A” for Amber, “B” for Blue, “C” for Clear, “G” for green, “R” for Red
INSTALLATION AND MAINTENANCE INSTRUCTIONS
A Division of Pittway
3825 Ohio Avenue, St. Charles, Illinois 60174
1-800-SENSOR2, FAX: 630-377-6495
www.systemsensor.com
General Description
The SpectrAlert series notification appliances are designed to meet the
requirements of NFPA, The National Fire Alarm Code, and UL. Also, check
with your local Authority Having Jurisdiction for other codes or standards
that may apply.
This SpectrAlert DS2475 Strobe can be installed in systems using 24-volt
panels having DC or full-wave rectified (FWR) power supplies. The mod-
els can also be installed in systems requiring synchronization (module
MDL required) or systems that do not require synchronization (no module
required).
NOTICE: This manual shall be left with the owner/user of this equipment.
Power Supply Considerations
Panels typically supply DC filtered voltage or FWR (full-wave rectified)
voltage. The system design engineer must calculate the number of units
used in a zone based on the type of panel supply. Be certain the sum of
all the device currents do not exceed the current capability of the panel.
Calculations are based on using the device current found in the subsequent
charts and must be the current specified for the type of panel power sup-
ply used.
Wire Sizes
The designer must be sure that the last device on the circuit has sufficient
voltage to operate the device within its rated voltage. When calculating
the voltage available to the last device, it is necessary to consider the volt-
age drop due to the resistance of the wire. The thicker the wire, the less
the voltage drop. Generally, for purposes of determining the wire size nec-
essary for the system, it is best to consider all of the devices as “lumped”
on the end of the supply circuit (simulates “worst case”).
Typical wire size resistance:
18 AWG solid: Approximately 8 ohms/1,000 ft.
16 AWG solid: Approximately 5 ohms/1,000 ft.
14 AWG solid: Approximately 3 ohms/1,000 ft.
12 AWG solid: Approximately 2 ohms/1,000 ft.
Example: Assume you have 10 devices on a zone and each requires 50
mA average and 2000 Ft. of 14 AWG wiring (total length=outgoing
+return). The voltage at the end of the loop is 0.050 amps per device x
10 devices x 3 ohms/1,000 ft. x 2000 ft =3 volts drop.
Specifications
Voltage Range: 20 to 30 Volts DC or Full-Wave Rectified
with module: 21 to 30 Volts DC or Full-Wave Rectified
Flash Rate: 1 Flash Per Second
Operating Temperature: 32°F to 120°F (0°C to 49°C)
Light Output: 75 candela
Listings: UL S3593 (Strobe)
The same number of devices using 12 AWG wire will produce only 2 volts
drop. The same devices using 18 AWG wire will produce 8 volts drop.
Consult your panel manufacturer’s specifications, as well as SpectrAlert’s
operating voltage range to determine acceptable voltage drop
.
Note: If class “A”wiring is installed, the wire length may be up to 4 times
the single wire length in this calculation.
U.S. Patent Nos. 5,593,569;
5,850,178; 5,598,139; 6,049,446
Current Draws Per Strobe
DC FWR DC FWR DC FWR
169 220 140 191 115 174
AVERAGE CURRENT (mA)
24V Models
20V 24V 30V
DC FWR DC FWR DC FWR
460 560 450 570 420 620
PEAK CURRENT (mA)
24V Models
20V 24V 30V
DC FWR DC FWR DC FWR
190 230 220 290 290 370
IN RUSH CURRENT (mA)
24V Models
20V 24V 30V
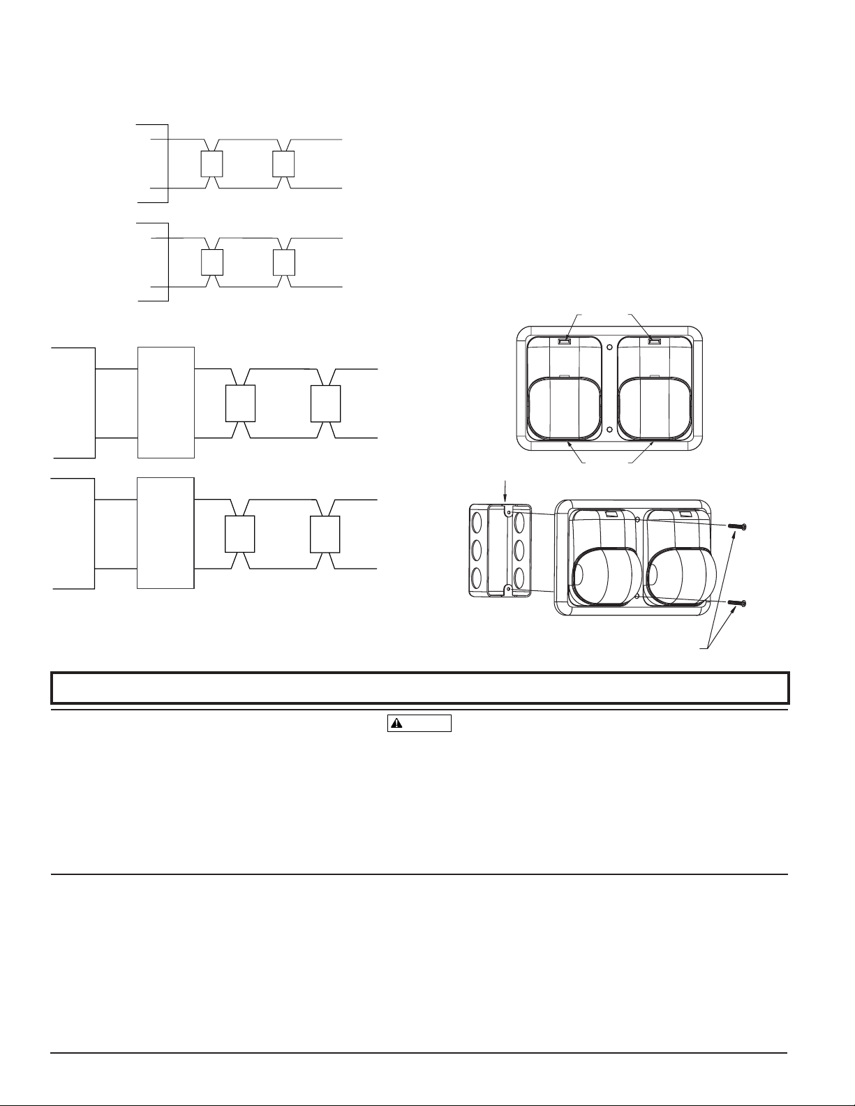
Figure 1A. Powered by a 2-wire circuit:
System Operation: Non-Synchronized Devices
POWER
SUPPLY
TO NEXT
DEVICE
OR EOL
NOTE: Reversing polarity from power supply will stop powering one
strobe and start powering the other.
Figure 1B: Strobes
powered in tandem:
NOTE: Supply power must be
continuous for proper operation.
FACTORY
INSTALLED
WIRES
TO NEXT
DEVICE OR EOL
FACP