
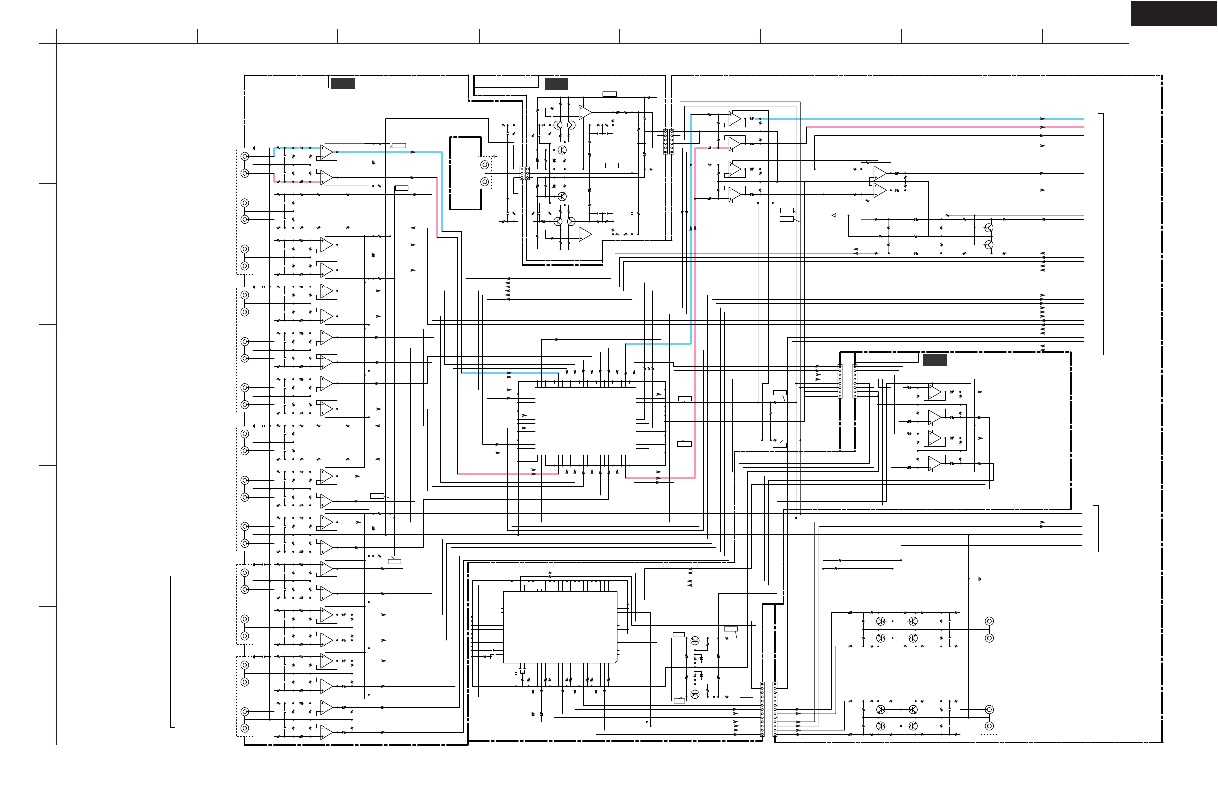
TX-SR875
SCHEMATIC DIAGRAMS-3 (SD-3)
POWER AMPLIFIER SECTION-1
A
1
2
3
4
5
BCDEFGH
+BR
-BR
+B1R
-B1R
NFR
+B2R
-B2R
+BSBR
-BSBR
+B1SBR
-B1SBR
NFSBR
+B2SBR
-B2SBR
+BSR
-BSR
+B1SR
-B1SR
NFSR
+B2SR
-B2SR
+BC
-BC
+B1C
-B1C
+B2C
-B2C
+BSL
-BSL
+B1SL
-B1SL
+B2SL
-B2SL
+BSBL
-BSBL
+B1SBL
-B1SBL
+B2SBL
-B2SBL
+BL
-BL
+B1L
-B1L
+B2L
-B2L
FRONT L
SURROUND
BACK L
SURROUND
L
SURROUND
BACK R
SURROUND
R
CENTER
FRONT R
NACLA-9063
NACLA-9068
NACLA-9066
NACLA-9064
NACLA-9069
NACLA-9067
NACLA-9065 NACLA-9063,66,68
are fully compatible with each other.
NACLA-9064,65,67,69
are fully compatible with each other.
TO NAAF-9039
SD-5:H3
TO NAAF-9039
SD-5:H3
TO NAAF-9039
SD-5:H4
TO NAAF-9039
SD-5:H4
TO NAAF-9039
SD-5:H5
TO NAAMP-9062
SD-4:B1
TO NAAF-9039
SD-5:H4
TO NAAMP-9061
SD-4:F1
TO NAAF-9039
SD-5:H4
TO NAAMP-9061
SD-4:F2
TO NAAF-9039
SD-5:H5
TO NAAMP-9061
SD-4:F3
TO NAAMP-9062
SD-4:B2
TO NAAMP-9062
SD-4:B3
TO NAAMP-9062
SD-4:B4 TO NAAF-9039
SD-5:H3
TO NAAF-9039
SD-5:H2
TO NAAF-9039
SD-5:H1
TO NAAF-9039
SD-5:H2
TO NAAF-9039
SD-5:H2
TO NAAF-9039
SD-5:H1
-59.3V
-11.0V -1.1V
-11.0V
P6031B
1
2
3
4
5
6
P6011A
1
2
3
4
P6036B
1
2
3
4
5
6
P6016A
1
2
3
4
P6034B
1
2
3
4
5
6
P6014A
1
2
3
4
P6032B
1
2
3
4
5
6
P6012A
1
2
3
4
P5011A
1
2
3
P5016A
1
2
3
P5014A
1
2
3
P5012A
1
2
3
P5010A
1
2
3
P5015A
1
2
3
P5013A
1
2
3
P6013A
1
2
3
4
P6033B
1
2
3
4
5
6
P6015A
1
2
3
4
P6035B
1
2
3
4
5
6
P6030B
1
2
3
4
5
6
P6010A
1
2
3
4
R5141
(1/4W)
820
R5041
330
R5011
56K
R5291
100K
D5001 MTZJ5.6B
Q5001
2SC2240-BL
R5031
330
R5071
100K
R5061
2.7K
Q5011
2SC2240-BL
R5051
5.6K
Q5021
2SC2240-BL
C5021
221K
R5001
1K
R5171
(1/4W)
820
R5121
2.2K
R5111
2.2K
Q5061
2SC2240-BL
Q5071
2SC2240-BL
Q5041
2SA949Y
C5081 22/63
+
R5221
18K
C5101
101K
R5181
(1/4W)
33
R5131
(1/4W)
820
R5161
(1/4W)
1K
R5211
18K
C5131
100/100
+
Q5031
2SA949Y
C5121
100/100
+
C5071
10/100
+
R6051
2.7K
R6011
4.7K
R6021
3.3K
R6111
10K C6001
102J
R6031
1.8K
Q6021
2SA933
R6291
(1/4W)
2.2
R6301
(1/4W)
2.2
Q6101
2SA1930
R6251
(1/4W)
120
R6261
(1/4W)
120
Q6041
2SA949Y
Q6011
2SC1740S_S
R5231
(1/4W)
15
R5021
330
Q6111
2SC5171
Q6031
2SC2229Y
P5021A
R5091
1.8K
R5301
(1/4W)
82
R5331
(1/4W)
82
C5011
47/50
+
C5041
220/25
+
C5051
10/50
+
R6281
(1/4W)
18 R6271
(1/4W)
18
R6311
(1/4W)
10
R6061
(1/4W)
120
R5241 (1/4W)
15
C6021
47/50
R5261
270K
R5251
56K
C6011
47/50
R5361
560K
R5371
120K
C5111
010D
R5281
(1/2W)
10K
R5151
(1/2W)
10K
R6041
1K
Q5051
2SA1360Y
Q5081
2SC3423-Y
R6071
(1/4W)
82
R5146
(1/4W)
820
R5046
330
R5016
56K
R5296
100K
D5006
MTZJ5.6B
Q5006
2SC2240-BL
R5036
330
R5076
100K
R5066
2.7K
Q5016
2SC2240-BL
R5056
5.6K
Q5026
2SC2240-BL
C5026
221K
R5006
1K
R5176
(1/4W)
820
R5126
2.2K
R5116
2.2K
Q5066
2SC2240-BL
Q5076
2SC2240-BL
Q5046
2SA949Y
C5086 22/63
+
R5226
18K
C5106
101K
R5186
(1/4W)
33
R5136
(1/4W)
820
R5166
(1/4W)
1K
R5216
18K
C5136
100/100
+
Q5036
2SA949Y
C5126
100/100
+
C5076
10/100
+
R6056
2.7K
R6016
4.7K
R6026
3.3K
R6116
10K C6006
102J
R6036
1.8K
Q6026
2SA933
R6296
(1/4W)
2.2
R6306
(1/4W)
2.2
Q6106
2SA1930
R6256
(1/4W)
120
R6266
(1/4W)
120
Q6046
2SA949Y
Q6016
2SC1740S_S
R5236
(1/4W)
15
R5026
330
Q6116
2SC5171
Q6036
2SC2229Y
P5026A
R5096
1.8K
R5306
(1/4W)
82
R5336
(1/4W)
82
C5016
47/50
+
C5046
220/25
+
C5056
10/50
+
R6286
(1/4W)
18
R6276
(1/4W)
18
R6316
(1/4W)
10
R6066
(1/4W)
120
R5246 (1/4W)
15
C6026
47/50
R5266
270K
R5256
56K
C6016
47/50
R5366
560K
R5376
120K
C5116
010D
R5286
(1/2W)
10K
R5156
(1/2W)
10K
R6046
1K
Q5056
2SA1360Y
Q5086
2SC3423-Y
R6076
(1/4W)
82
R5144
(1/4W)
820
R5044
330
R5014
56K
R5294
100K
D5004
MTZJ5.6B
Q5004
2SC2240-BL
R5034
330
R5074
100K
R5064
2.7K
Q5014
2SC2240-BL
R5054
5.6K
Q5024
2SC2240-BL
C5024
221K
R5004
1K
R5174
(1/4W)
820
R5124
2.2K
R5114
2.2K
Q5064
2SC2240-BL
Q5074
2SC2240-BL
Q5044
2SA949Y
C5084 22/63
+
R5224
18K
C5104
101K
R5184
(1/4W)
33
R5134
(1/4W)
820
R5164
(1/4W)
1K
R5214
18K
C5134
100/100
+
Q5034
2SA949Y
C5124
100/100
+
C5074 10/100
+
R6054
2.7K
R6014
4.7K
R6024
3.3K
R6114
10K C6004
102J
R6034
1.8K
Q6024
2SA933
R6294
(1/4W)
2.2
R6304
(1/4W)
2.2
Q6104
2SA1930
R6254
(1/4W)
120
R6264
(1/4W)
120
Q6044
2SA949Y
Q6014
2SC1740S_S
R5234
(1/4W)
15
R5024
330
Q6114
2SC5171
Q6034
2SC2229Y
P5024A
R5094
1.8K
R5304
(1/4W)
82
R5334
(1/4W)
82
C5014
47/50
+
C5044
220/25
+
C5054
10/50
+
R6284
(1/4W)
18
R6274
(1/4W)
18
R6314
(1/4W)
10
R6064
(1/4W)
120
R5244 (1/4W)
15
C6024
47/50
R5264
270K
R5254
56K
C6014
47/50
R5364
560K
R5374
120K
C5114
010D
R5284
(1/2W)
10K
R5154
(1/2W)
10K
R6044
1K
Q5054
2SA1360Y
Q5084
2SC3423-Y
R6074
(1/4W)
82
R5142
(1/4W)
820
R5042
330
R5012
56K
R5292
100K
D5002
MTZJ5.6B
Q5002
2SC2240-BL
R5032
330
R5072
100K
R5062
2.7K
Q5012
2SC2240-BL
R5052
5.6K
Q5022
2SC2240-BL
C5022
221K
R5002
1K
R5172
(1/4W)
820
R5122
2.2K
R5112
2.2K
Q5062
2SC2240-BL
Q5072
2SC2240-BL
Q5042
2SA949Y
C5082 22/63
+
R5222
18K
C5102
101K
R5182
(1/4W)
33
R5132
(1/4W)
820
R5162
(1/4W)
1K
R5212
18K
C5132
100/100
+
Q5032
2SA949Y
C5122
100/100
+
C5072 10/100
+
R6052
2.7K
R6012
4.7K
R6022
3.3K
R6112
10K C6002
102J
R6032
1.8K
Q6022
2SA933
R6292
(1/4W)
2.2
R6302
(1/4W)
2.2
Q6102
2SA1930
R6252
(1/4W)
120
R6262
(1/4W)
120 Q6042
2SA949Y
Q6012
2SC1740S_S
R5232
(1/4W)
15
R5022
330
Q6112
2SC5171
Q6032
2SC2229Y
P5022A
R5092
1.8K
R5302
(1/4W)
82
R5332
(1/4W)
82
C5012
47/50
+
C5042
220/25
+
C5052
10/50
+
R6282
(1/4W)
18
R6272
(1/4W)
18
R6312
(1/4W)
10
R6062
(1/4W)
120
R5242
(1/4W)
15
C6022
47/50
R5262
270K
R5252
56K
C6012
47/50
R5362
560K
R5372
120K
C5112
010D
R5282
(1/2W)
10K
R5152
(1/2W)
10K
R6042
1K
Q5052
2SA1360Y
Q5082
2SC3423-Y
R6072
(1/4W)
82
R5143
(1/4W)
820
R5043
330
R5013
56K
R5293
100K
D5003
MTZJ5.6B
Q5003
2SC2240-BL
R5033
330
R5073
100K
R5063
2.7K
Q5013
2SC2240-BL
R5053
5.6K
Q5023
2SC2240-BL
C5023
221K
R5003
1K
R5173
(1/4W)
820
R5123
2.2K
R5113
2.2K
Q5063
2SC2240-BL
Q5073
2SC2240-BL
Q5043
2SA949Y
C5083 22/63
+
R5223
18K
C5103
101K
R5183
(1/4W)
33
R5133
(1/4W)
820
R5163
(1/4W)
1K
R5213
18K
C5133
100/100
+
Q5033
2SA949Y
C5123
100/100
+
C5073 10/100
+
R6053
2.7K
R6013
4.7K
R6023
3.3K
R6113
10K C6003
102J
R6033
1.8K
Q6023
2SA933
R6293
(1/4W)
2.2
R6303
(1/4W)
2.2
Q6103
2SA1930
R6253
(1/4W)
120
R6263
(1/4W)
120
Q6043
2SA949Y
Q6013
2SC1740S_S
R5233
(1/4W)
15
R5023
330
Q6113
2SC5171
Q6033
2SC2229Y
P5023A
R5093
1.8K
R5303
(1/4W)
82
R5333
(1/4W)
82
C5013
47/50
+
C5043
220/25
+
C5053
10/50
+
R6283
(1/4W)
18
R6273
(1/4W)
18
R6313
(1/4W)
10
R6063
(1/4W)
120
R5243 (1/4W)
15
C6023
47/50
R5263
270K
R5253
56K
C6013
47/50
R5363
560K
R5373
120K
C5113
010D
R5283
(1/2W)
10K
R5153
(1/2W)
10K
R6043
1K
Q5053
2SA1360Y
Q5083
2SC3423-Y
R6073
(1/4W)
82
R5145
(1/4W)
820
R5045
330
R5015
56K
R5295
100K
D5005
MTZJ5.6B
Q5005
2SC2240-BL
R5035
330
R5075
100K
R5065
2.7K
Q5015
2SC2240-BL
R5055
5.6K
Q5025
2SC2240-BL
C5025
221K
R5005
1K
R5175
(1/4W)
820
R5125
2.2K
R5115
2.2K
Q5065
2SC2240-BL
Q5075
2SC2240-BL
Q5045
2SA949Y
C5085 22/63
+
R5225
18K
C5105
101K
R5185
(1/4W)
33
R5135
(1/4W)
820
R5165
(1/4W)
1K
R5215
18K
C5135
100/100
+
Q5035
2SA949Y
C5125
100/100
+
C5075
10/100
+
R6055
2.7K
R6015
4.7K
R6025
3.3K
R6115
10K C6005
102J
R6035
1.8K
Q6025
2SA933
R6295
(1/4W)
2.2
R6305
(1/4W)
2.2
Q6105
2SA1930
R6255
(1/4W)
120
R6265
(1/4W)
120
Q6045
2SA949Y
Q6015
2SC1740S_S
R5235
(1/4W)
15
R5025
330
Q6115
2SC5171
Q6035
2SC2229Y
P5025A
R5095
1.8K
R5305
(1/4W)
82
R5335
(1/4W)
82
C5015
47/50
+
C5045
220/25
+
C5055
10/50
+
R6285
(1/4W)
18
R6275
(1/4W)
18
R6315
(1/4W)
10
R6065
(1/4W)
120
R5245 (1/4W)
15
C6025
47/50
R5265
270K
R5255
56K
C6015
47/50
R5365
560K
R5375
120K
C5115
010D
R5285
(1/2W)
10K
R5155
(1/2W)
10K
R6045
1K
Q5055
2SA1360Y
Q5085
2SC3423-Y
R6075
(1/4W)
82
R5140
(1/4W)
820
R5040
330
R5010
56K
R5290
100K
D5000 MTZJ5.6B
Q5000
2SC2240-BL
R5030
330
R5070
100K
R5060
2.7K
Q5010
2SC2240-BL
R5050
5.6K
Q5020
2SC2240-BL
C5020
221K
R5000
1K
R5170
(1/4W)
820
R5120
2.2K
R5110
2.2K
Q5060
2SC2240-BL
Q5070
2SC2240-BL
Q5040
2SA949Y
C5080 22/63
+
R5220
18K
C5100
101K
R5180
(1/4W)
33
R5130
(1/4W)
820
R5160
(1/4W)
1K
R5210
18K
C5130
100/100
+
Q5030
2SA949Y
C5120
100/100
+
C5070 10/100
+
R6050
2.7K
R6010
4.7K
R6020
3.3K
R6110
10K C6000
102J
R6030
1.8K
Q6020
2SA933
R6290
(1/4W)
2.2
R6300
(1/4W)
2.2 Q6100
2SA1930
R6250
(1/4W)
120
R6260
(1/4W)
120
Q6040
2SA949Y
Q6010
2SC1740S_S
R5230
(1/4W)
15
R5020
330
Q6110
2SC5171
Q6030
2SC2229Y
P5020A
R5090
1.8K
R5300
(1/4W)
82
R5330
(1/4W)
82
C5010
47/50
+
C5040 220/25
+
C5050
10/50
+
R6280
(1/4W)
18
R6270
(1/4W)
18
R6310
(1/4W)
10
R6060
(1/4W)
120
R5240 (1/4W)
15
C6020
47/50
R5260
270K
R5250
56K
C6010
47/50
R5360
560K
R5370
120K
C5110
010D
R5280
(1/2W)
10K
R5150
(1/2W)
10K
R6040
1K
Q5050
2SA1360Y
Q5080
2SC3423-Y
R6070
(1/4W)
82
U18
POWER AMP
PC BOARD
U23
POWER AMP
PC BOARD
U21
POWER AMP
PC BOARD
U19
POWER AMP
PC BOARD
U24
POWER AMP
PC BOARD
U22
POWER AMP
PC BOARD
U20
POWER AMP
PC BOARD
<Note>
SD-x:XY is short for Shcematic Diagram-x and
each socket's location, X=A to H, Y=1 to 5.
THE COMPONENTS IDENTIFIED BY MARK ARE CRITICAL FOR SAFETY.
REPLACE ONLY WITH PART NUMBER SPECIFIED.
VOLTAGE (MEASURED WITH VOLTMETER) IS DC VOLTAGE.(NO INPUT SIGNAL).
ALL PNP TRANSISTORS ARE EQUIVALENT TO 2SA1015-GR UNLESS OTHERWISE NOTED.
ALL NPN TRANSISTORS ARE EQUIVALENT TO 2SC1815-GR UNLESS OTHERWISE NOTED.
ALL DIODES ARE EQUIVALENT TO 1SS133 UNLESS OTHERWISE NOTED.
ELECTROLYTIC CAPACITORS ( ) ARE IN uF/WV.
ALL CAPACITORS ARE IN pF/50WV UNLESS OTHERWISE NOTED.
EX) 030- 3pF, 330- 33pF, 331- 330pF, 333- 0.033uF
ALL RESISTORS ARE IN OHMS 1/4WATTS UNLESS OTHERWISE NOTED.
THE THICK LINES ON PC BOARD ARE THE PRINTING SIDE OF THE PARTS.
EX) PRINTING SIDE
CIRCUIT IS SUBJECT TO CHANGE FOR IMPROVEMENT.
!
NOTE
+65V
-0.6V
+0.6V
-65V
-1.1V
+1.1V
+64.8V
+62.8V
+53.3V
+62.8V
+52.7V
-0.6V
-0.9V
+64.0V
+63.4V
0.0V
-63.3V
-64.8V
+65V
-0.6V
+0.6V
-65V
-1.1V
+1.1V
+64.8V
+62.8V
+53.3V
+62.8V
+52.7V
-0.6V
-0.9V
+64.0V
+63.4V
0.0V
-63.3V
-64.8V
+65V
-0.6V
+0.6V
-65V
-1.1V
+1.1V
+64.8V
+62.8V
+53.3V
+62.8V
+52.7V
-0.6V
-0.9V
+64.0V
+63.4V
0.0V
-63.3V
-64.8V
-59.3V
-11.0V
-59.3V
-11.0V
+65V
-0.6V
+0.6V
-65V
-1.1V
+1.1V
+64.8V
+62.8V
+53.3V
+62.8V
+52.7V
-0.6V
-0.9V
+64.0V
+63.4V
0.0V
-63.3V
-64.8V
-59.3V
-11.0V
+65V
-0.6V
+0.6V
-65V
-1.1V
+1.1V
+64.8V
+62.8V
+53.3V
+62.8V
+52.7V
-0.6V
-0.9V
+64.0V
+63.4V
0.0V
-63.3V
-64.8V
-59.3V
-11.0V
+65V
-0.6V
+0.6V
-65V
-1.1V
+1.1V
+64.8V
+62.8V
+53.3V
+62.8V
+52.7V
-0.6V
-0.9V
+64.0V
+63.4V
0.0V
-63.3V
-64.8V
-59.3V
-11.0V
+65V
-0.6V
+0.6V
-65V
-1.1V
+1.1V
+64.8V
+62.8V
+53.3V
+62.8V
+52.7V
-0.6V
-0.9V
+64.0V
+63.4V
0.0V
-63.3V
-64.8V
-59.3V
-11.0V
IDLING
ADJ.
IDLING
ADJ.
IDLING
ADJ.
IDLING
ADJ.
IDLING
ADJ.
IDLING
ADJ.
IDLING
ADJ.