
IMBALLAGGIO, TRASPORTO E
STOCCAGGIO.
LE OPERAZIONI DI IMBALLAGGIO, SOLLEVA-
MENTO, MOVIMENTAZIONE, TRASPORTO E DI-
SIMBALLO DEVONO ESSERE AFFIDATE ESCLU-
SIVAMENTE A PERSONALE CHE SIA ESPERTO
IN TALI OPERAZIONI E CHE CONOSCA BENE IL
PONTE SOLLEVATORE ED IL PRESENTE MA-
NUALE
IMBALLAGGIO
Il ponte sollevatore viene spedito smontato nei seguenti pezzi:
Peso di un pezzo (Kg)
4 colonne 44
2 traverse 95
2 rampe di salita 25
2 fermaruote 2,6
2 pedane: lato comando 325
lato opposto 240
1 assieme centralina 30
Il ponte sollevatore viene spedito avvolto in un unico pacco confe-
zionato con una lastra di materiale termoretraibile e sigillato con
due regge metalliche (Fig.1).
Il peso medio del pacco è di circa 1050 Kg.
SOLLEVAMENTO E MOVIMENTAZIONE
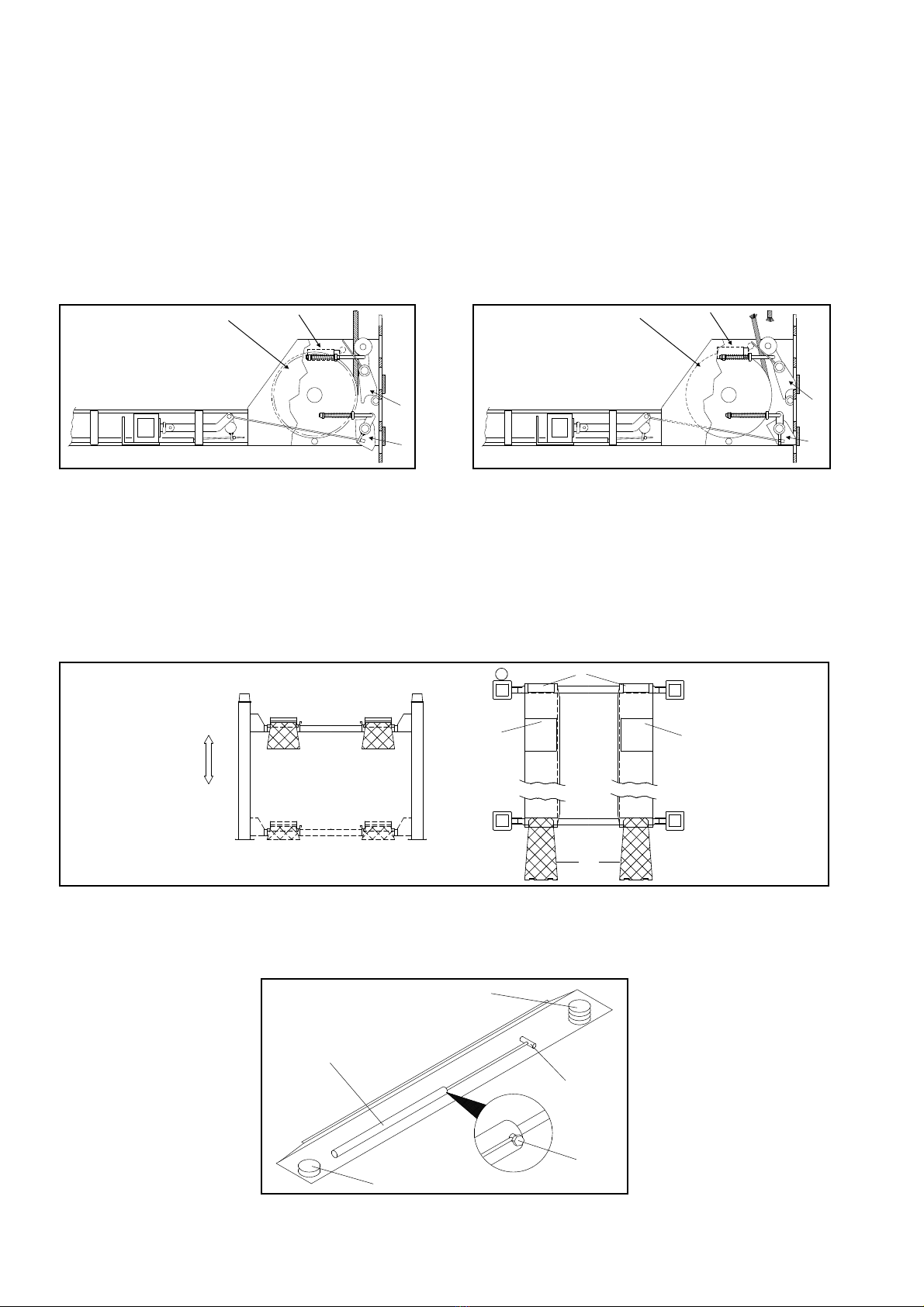
I pacchi possono essere sollevati e spostati soltanto con carrelli
elevatori, mantenendo una distanza di almeno 90 cm tra i due
bracci della forca (Fig.1).
Sollevare un solo pacco per volta.
I mezzi scelti devono essere idonei al sollevamento e spostamento
in sicurezza, tenendo conto di dimensioni, peso, baricentro del
pacco, sporgenze, parti delicate da non danneggiare.
Fig.1 Imballo e spostamento
Fig.1 Packing and moving
Non sollevare o spostare MAI il sollevatore mediante fascie o
imbracature per il sollevamento (Fig.2).
STOCCAGGIO
Gli imballi devono sempre essere conservati in luoghi coperti e pro-
tetti a temperature comprese fra -10 °C e + 40°C. e non devono
essere esposti ai raggi diretti del sole.
IMPILAMENTO DEI PACCHI
E’ sempre sconsigliato in quanto il pacco non è previsto per l’impi-
lamento. La base stretta, il peso notevole e la consistenza dell’im-
ballo rendono problematico e delicato l’impilamento.
Qualora si rendesse necessario l’impilamento, occorre adottare
molte precauzioni e in particolare:
- non superare mai i due metri di altezza della pila;
- non fare mai pile di pacchi singoli, ma fare sempre pile di pacchi a
coppie incrociate tra loro, in modo da ottenere cataste con una
base più larga ed una certa stabilità; quindi provvedere a rendere
sicuro lo stoccaggio, utilizzando regge, legacci o altri mezzi idonei.
Nei cassoni dei camion, nei container, nei vagoni ferroviari si
possono impilare al massimo due pacchi, purchè vengano
reggiati tra loro e assicurati contro la caduta.
PACKING, TRANSPORT AND
STORAGE.
PACKING, LIFTING, HANDLING, TRANSPORTING
AND UNPACKING OPERATIONS MUST BE PER-
FORMED ONLY BY EXPERIENCED PERSONNEL
WITH APPROPRIATE KNOWLEDGE OF THE LIFT
AND AFTER READING THIS MANUAL
PACKING
The lift is shipped disassembled in the following units:
Unit weight (kg)
4 posts 44
2 crossbeams 95
2 vehicle ramps 25
2 wheel stops 2,6
2 platform: control side 325
opposite side 240
1 hydraulic power unit 30
The lift is shipped in a single pack enclosed by a sheet of heat
shrink material and restrained by two steel straps (fig.1).
The average weight of the pack is 1050 kg.
LIFTING AND HANDLING
The packs can be lifted and transported only using lift trucks,
and keeping the fork arm centres at least 90 cm apart (Fig.1).
Lift only one pack at a time.
The lifting equipment must be capable of lifting and moving the
packs in complete safety, bearing in mind the dimensions, weight
and centre of gravity of the pack, any protruding parts, and delicate
parts to protect from impact damage etc..
Fig.2
Fig.2
NEVER attempt to hoist or transport the unit using lifting
slings (Fig.2).
STORAGE
The packs must be kept in a covered and protected area in a tem-
perature range of -10°C to +40°C. They must not be exposed to di-
rect sunlight.
STACKING THE PACKS
We advise against stacking because the packs are not designed
for this type of storage. The narrow base, heavy weight and large
size of the packs make stacking difficult and potentially dangerous.
If stacking is unavoidable, use all appropriate precautions:
- never stack to more than 2 metres in height;
- never make stacks of single packs, always stack pairs of packs in
a cross pattern so that the base is bigger and the resulting stack is
more stable; once the stack is complete, restrain it using straps, ro-
pes or other suitable methods.
A maximum of two packs can be stacked on lorries, in contai-
ners, and in railway wagons, on the condition that the packs
are strapped together and restrained to stop them falling.
3