
2 – ENGLISH
ENGLISH
Translation of the original instructions in full
CONTENTS
GENERAL SAFETY WARNINGS AND
PRECAUTIONS
1
1 GENERALSAFETYWARNINGSANDPRECAUTIONS
1.1 GENERAL WARNINGS
a
WARNING! Important safety instructions. Observe
all the instructions, as improper installation may
cause serious damages.
a
WARNING! Important safety instructions. It is im-
portant to comply with these instructions to ensure
personal safety. Store these instructions with care.
a
According to the latest European legislation, an
automated device must be constructed in conform-
ity to the harmonised rules specied in the current
Machinery Directive, which allow for declaring the
presumed conformity of the automation. Conse-
quently, all the operations for connecting the prod-
uct to the mains electricity, its commissioning and
maintenance must be carried out exclusively by a
qualied and expert technician.
a
In order to avoid any danger from inadvertent re-
setting of the thermal cut-off device, this appliance
must not be powered through an external switching
device, such as a timer, or connected to a supply
that is regularly powered or switched off by the cir-
cuit.
WARNING! Please abide by the following warnings:
–Before commencing the installation, check the “Prod-
uct technical specications”, in particular whether this
product is suitable for automating your guided part.
Should it not be suitable, do NOT proceed with the in-
stallation.
–The product cannot be used before it has been com-
missioned as specied in the “Testing and commis-
sioning” chapter.
–Before proceeding with the product’s installation,
check that all the materials are in good working order
and suited to the intended applications.
–The product is not intended for use by persons (includ-
ing children) with reduced physical, sensory or mental
capacities, nor by anyone lacking sufcient experience
or familiarity with the product.
–Children must not play with the appliance.
–Do not allow children to play with the product’s control
devices. Keep the remote controls out of reach of chil-
dren.
–The system’s power supply network must include a dis-
connection device (not supplied) with a contact open-
ing gap permitting complete disconnection under the
conditions envisaged by Overvoltage Category III.
–During the installation process, handle the product with
care by avoiding crushing, impacts, falls or contact
with liquids of any kind. Do not place the product near
sources of heat nor expose it to open ames. All these
actions can damage the product and cause it to mal-
function, or lead to dangerous situations. Should this
occur, immediately suspend the installation process
and contact the Technical Assistance Service.
1 GENERAL SAFETY WARNINGS AND PRECAUTIONS . . . . . . .2
1.1 General warnings. . . . . . . . . . . . . . . . . . . . . . . . . . . . . . . . . 2
1.2 Installation warnings . . . . . . . . . . . . . . . . . . . . . . . . . . . . . . 3
2 PRODUCT DESCRIPTION AND INTENDED USE. . . . . . . . . . . .3
2.1 List of constituent parts . . . . . . . . . . . . . . . . . . . . . . . . . . . . 3
3 INSTALLATION. . . . . . . . . . . . . . . . . . . . . . . . . . . . . . . . . . . . . . .4
3.1 Pre-installation checks. . . . . . . . . . . . . . . . . . . . . . . . . . . . . 4
3.2 Product usage limits . . . . . . . . . . . . . . . . . . . . . . . . . . . . . . 4
3.2.1 Product durability . . . . . . . . . . . . . . . . . . . . . . . . . . . . . . 5
3.3 Product identification and overall dimensions. . . . . . . . . . . 5
3.4 Pre-installation works. . . . . . . . . . . . . . . . . . . . . . . . . . . . . . 6
3.5 Installing the gearmotor. . . . . . . . . . . . . . . . . . . . . . . . . . . . 7
3.6 Adjusting the mechanical limit switches . . . . . . . . . . . . . . . 9
3.7 Manually unlocking and locking the gearmotor. . . . . . . . . . 9
4 ELECTRICAL CONNECTIONS . . . . . . . . . . . . . . . . . . . . . . . . . .9
4.1 Preliminary checks. . . . . . . . . . . . . . . . . . . . . . . . . . . . . . . . 9
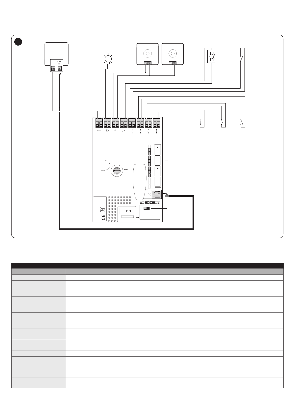
4.2 Wiring diagram and description of connections . . . . . . . . 10
4.2.1 Wiring diagram . . . . . . . . . . . . . . . . . . . . . . . . . . . . . . . 10
4.2.2 Description of connections . . . . . . . . . . . . . . . . . . . . . . 10
5 FINAL CHECKS AND START-UP . . . . . . . . . . . . . . . . . . . . . . .11
5.1 Choosing the direction. . . . . . . . . . . . . . . . . . . . . . . . . . . . 11
5.2 Power supply connection . . . . . . . . . . . . . . . . . . . . . . . . . 11
5.3 Device learning . . . . . . . . . . . . . . . . . . . . . . . . . . . . . . . . . 11
5.4 Leaf length learning. . . . . . . . . . . . . . . . . . . . . . . . . . . . . . 11
5.5 Checking the gate movement . . . . . . . . . . . . . . . . . . . . . . 13
5.6 Connecting other devices . . . . . . . . . . . . . . . . . . . . . . . . . 13
6 TESTING AND COMMISSIONING . . . . . . . . . . . . . . . . . . . . . . .13
6.1 Testing . . . . . . . . . . . . . . . . . . . . . . . . . . . . . . . . . . . . . . . . 13
6.2 Commissioning . . . . . . . . . . . . . . . . . . . . . . . . . . . . . . . . . 13
7 PROGRAMMING . . . . . . . . . . . . . . . . . . . . . . . . . . . . . . . . . . . .14
7.1 Using the programming buttons . . . . . . . . . . . . . . . . . . . . 14
7.2 Level 1 programming (ON-OFF) . . . . . . . . . . . . . . . . . . . . 15
7.2.1 Level 1 programming procedure . . . . . . . . . . . . . . . . . 15
7.3 Level 2 programming (adjustable parameters) . . . . . . . . . 16
7.3.1 Level 2 programming procedure . . . . . . . . . . . . . . . . . 16
7.4 Special functions . . . . . . . . . . . . . . . . . . . . . . . . . . . . . . . . 17
7.4.1 “Always open” function . . . . . . . . . . . . . . . . . . . . . . . . . 17
7.4.2 “Move anyway” function . . . . . . . . . . . . . . . . . . . . . . . . 17
7.4.3 “Maintenance notice” function . . . . . . . . . . . . . . . . . . . 18
7.4.4 Verifying the number of manoeuvres completed . . . . . 18
7.4.5 Manoeuvre counter resetting . . . . . . . . . . . . . . . . . . . . 18
8 TROUBLESHOOTING GUIDE . . . . . . . . . . . . . . . . . . . . . . . . . .19
8.1 Troubleshooting. . . . . . . . . . . . . . . . . . . . . . . . . . . . . . . . . 19
8.2 Anomaly log. . . . . . . . . . . . . . . . . . . . . . . . . . . . . . . . . . . . 19
8.3 Signalling through warning light . . . . . . . . . . . . . . . . . . . . 20
8.4 Signals on the control unit . . . . . . . . . . . . . . . . . . . . . . . . . 20
9 FURTHER DETAILS (Accessories) . . . . . . . . . . . . . . . . . . . . .22
9.1 Adding or removing devices . . . . . . . . . . . . . . . . . . . . . . . 22
9.1.1 BlueBUS . . . . . . . . . . . . . . . . . . . . . . . . . . . . . . . . . . . . 22
9.1.2 STOP input . . . . . . . . . . . . . . . . . . . . . . . . . . . . . . . . . . 22
9.1.3 Photocells . . . . . . . . . . . . . . . . . . . . . . . . . . . . . . . . . . . 22
9.1.4 FT210B photosensor. . . . . . . . . . . . . . . . . . . . . . . . . . . 23
9.1.5 Gearmotor in SLAVE mode . . . . . . . . . . . . . . . . . . . . . . 23
9.1.6 Learning of other devices . . . . . . . . . . . . . . . . . . . . . . . 24
9.1.7 Connecting an SM-type radio receiver . . . . . . . . . . . . . 24
9.1.8 Connecting and installing the back-up battery. . . . . . . 25
9.1.9 Connecting the Oview programmer . . . . . . . . . . . . . . . 26
9.1.10 Connecting the Solemyo solar energy system . . . . . . . 26
10 PRODUCT MAINTENANCE. . . . . . . . . . . . . . . . . . . . . . . . . . . .27
11 PRODUCT DISPOSAL . . . . . . . . . . . . . . . . . . . . . . . . . . . . . . . .27
12 TECHNICAL SPECIFICATIONS. . . . . . . . . . . . . . . . . . . . . . . . .28
13 CONFORMITY . . . . . . . . . . . . . . . . . . . . . . . . . . . . . . . . . . . . . .29
INSTRUCTIONS AND WARNINGS FOR THE USER . . . . . . . . . 31