Nibe PCM 40 Guide de l'utilisateur

LEK
PCM 40/42
Installatörshansbok Passiv kyla
för NIBE F1145, F1245
SE
Installer manual Passive cooling
for NIBE F1145, F1245
GB
Installateurhandbuch Passive Kühlung
für NIBE F1145, F1245
DE
Handleiding voor installateur Passieve koeling
voor NIBE F1145, F1245
NL
IHB 1019-1
031471


Allmänt
PCM 40/42 gör det möjligt att erhålla passiv kyla från
berg-, grundvatten- eller ytjordkollektor. Vid användning
av ytjordkollektor kan markens beskaffenhet begränsa
möjligheten att utvinna passiv kyla.
Klimatsystem är företrädesvis golvsystem, vilket då både
blir kyl- och värmesystem. Kylan startas när utetempera-
turen överstiger inställd temperatur och regleras sedan
via vald kylkurva. För bästa komfort kan rumsgivare an-
vändas. För att undvika kondensutfällning ska lägsta
tillåtna framledningstemperatur väljas.
Innehåll
Väggfäste1st
Skruv2st
Låsbleck1st
T-rörskoppling ø22 (enbart PCM 40)1st
T-rörskoppling ø28 (enbart PCM 42)1st
Montering
Kylmodulen monteras på väggen.
OBS!
Se till att spänna alla kopplingar en extra gång,
både i och utanför PCM 40/42, efter att PCM
40/42 är installerad och monterad.
OBS!
Använd inte rören som bärhandtag.
Vid montage på vägg används den medlevererade upp-
hängningskonsolen, vilken först skruvas upp, se bild ne-
dan. Därefter hängs kylmodulen på konsolen. Kylmodulen
är nu till viss del skjutbar i sidled, vilket underlättar vid
rörinstallation.
OBS!
Montera bifogat låsbleck som tippskydd på valfri
plats nedtill på kylmodulens baksida för ytterliga-
re fixering.
3
Svenska, Installatörshandbok - PCM 40/42
SE

Värme-/kyldrift
Cirkulationspumpen går endast vid kyldrift. Fabriksinställ-
ning av cirkulationspumpens hastighet är i läge MAX.
När både shunt- och växelventil är öppna enligt bild är
kyldrift aktiverad.
010
10 0
Shuntventil Växelventil
6KXQWYHQWLO
41
9¦[HOYHQWLO
41
Vid värmedrift (grundläge) är shunt- och växelventil
stängda enligt bild nedan.
10 0010
Shuntventil Växelventil
6KXQWYHQWLO
41
9¦[HOYHQWLO
41
Efter att kyla har varit aktiverad så är värmedrift blockerad
i 2 timmar (från fabrik) för att undvika självsvängning
mellan kyla och värme. Den inställningen kan vid behov
ändras i meny 1.9.5.
4
SE

Kylmodulens konstruktion
LEK
41
*3
41
;/ ;/ ;/
;/ ;/
%7
50
50
PCM 40/42 framledningsgivareBT25
VäxelventilQN12
ShuntventilQN18
CirkulationspumpGP13
BackventilRM1
BackventilRM2
Värmebärare returXL2
Värmebärare fram (från PCM 40/42)XL1
Köldbärare in (till PCM 40/42)XL6
Köldbärare ut (från PCM 40/42)XL7
Dockning in (från värmepump)XL8
Elkoppling
LEK
$$;
$$;
$$)
$$;
$$6$$
$$; 6)
:::
StrömställareSF1
TillbehörskortAA5
Anslutningsplint, givare och extern blockeringAA5-X2
Anslutningsplint, kommunikationAA5-X4
Anslutningsplint, cirkulationspump och växel-
ventiler
AA5-X9
Anslutningsplint, växelventilerAA5-X10
DIP-switchAA5-S2
Finsäkring (T4A, 250V)AA5-F1
Kabel med stickpropp, matningW101
Kabel, kommunikation med värmepump eller
tidigare tillbehörskort
W102
Kabel, extern framledningsgivare (BT25)W103
5
SE

Röranslutning
Allmänt
OBS!
För att undvika kondensbildning måste rörled-
ningar och övriga kalla ytor isoleras med diffu-
sionstätt material. Vid stort kylbehov krävs
fläktkonvektor med droppskål och avloppsanslut-
ning.
Köldbärarkretsen skall förses med tryckexpansionskärl.
Eventuellt befintligt nivåkärl byts ut.
Tryckexpansionskärl
Köldbärarkretsen ska förses med tryckexpansionskärl (av
membrantyp). Eventuellt befintligt nivåkärl byts ut.
Tryckexpansionskärlet bör dimensioneras enligt diagram,
för att undvika driftstörningar. Tryckexpansionskärlet
täcker temperaturområdet från -10 °C till +20 °C vid
förtrycket 0,5 bar och säkerhetsventilens öppningstryck
3 bar. Köldbärarsidan skall normalt trycksättas till mellan
1,0 och 1,5 bar.
0
0100 200 300
10
20
30
40
50
400 500 600 700 800 900 1000
7U\FNH[SDQVLRQVN¦UO
.¸OGE¦UDUYRO\P
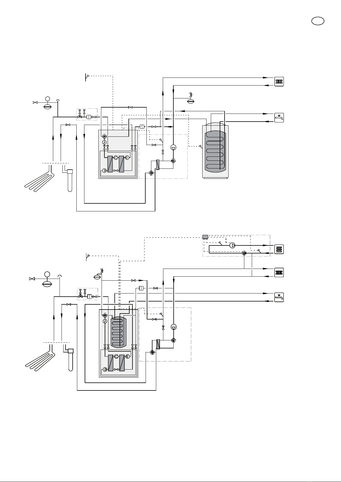
Principschema
Förklaring
VärmepumpEB100
Temperaturgivare, utomhusBT1
Temperaturgivare, varmvattenBT6
SmutsfilterHQ1
Klimatsystem 2 (ECS 40/ECS 41)EP21
TillbehörskortAA5
Framledningsgivare, extra klimatsystemBT2
Returledningsgivare, extra klimatsystemBT3
Cirkulationspump, extra klimatsystemGP20
ShuntventilQN11
PCM 40/42EQ1
Temperaturgivare, extern framledningBT25
Värmeväxlare, kylaEP6
Cirkulationspump, kylaGP13
Växelventil, kyla/värmeQN12
Shuntventil, kylaQN18
BackventilRM1
BackventilRM2
Övrigt
Manometer, köldbärareBP6
ExpansionskärlCM1
Expansionskärl, köldbärareCM3
Ackumulatortank med varmvattenslingaCP1
KollektorEP12
Säkerhetsventil, värmebärareFL2
Påfyllningsventil, köldbärareQM12
Avluftningsventil, köldbärareQM21
Avstängningsventil, värmebärare framQM31
Avstängningsventil, värmebärare returQM32
Avstängningsventil, köldbärare returQM34
Påfyllnadsventilsats, köldbärareXL15
Beteckningar i komponentplacering enligt standard IEC
81346-1 och 81346-2.
6
SE

Principschema F1145 med PCM 40/42
-QM31
-FL2
-QM32
-EB100-HQ1
-CM1
-QM34
-XL15
-EB100-BT1
-EB100
F1145
-QN18
-EQ1
-BT6
-EB100
-CP1
-EP12
-EP6 -QN12
-GP13
-RM1
-RM2
-BT25
-CM3
P
-BP6
-QM21
-QM12
Principschema F1245 med PCM 40/42
-QM34
-XL15
-EB100-BT1
-QM31
-QM32
-EB100-HQ1
F1245
-EB100
-FL2
-CM1
-CM3
P
-BP6
-QM21
-QM12
-GP20
-BT3
-BT2
-QN11
-EP21
-EP12
-EP6 -QN12
-GP13
-RM1
-RM2
-BT25
-QN18
-EQ1
7
SE

Kapacitetsdiagram
PCM 40
0
0l/s
VB-/Kylflöde
0,4 0,50,30,20,1 0,6
2
4
kW
6
5
3
1
Δ 3 °C
Δ 4 °C
Effekt
Temperatur-
differens
fram - retur
(IIHNW
7HPSHUDWXUGLIIHUHQV
IUDP UHWXU
9%.\OIO¸GH
OV
PCM 42
l/s
VB-/Kylflöde
0
00,8 1,00,60,40,2 1,2
4
8
kW
12
10
6
2
Effekt
Δ 3 °C
Δ 4 °C
Temperatur-
differens
fram - retur
(IIHNW
7HPSHUDWXUGLIIHUHQV
IUDP UHWXU
9%.\OIO¸GH
OV
Tillgängligt tryck
PCM 40
0,0
5,0
10,0
15,0
20,0
25,0
30,0
35,0
40,0
45,0
50,0
55,0
60,0
0 0,05 0,1 0,15 0,2 0,25 0,3 0,35 0,4
Min kyla
Max kyla
1
2
3
Tillgängligt tryck, kPa
Flöde
l/s
7LOOJ¦QJOLJW WU\FN N3D
)O¸GH
OV
0LQ N\OD
0D[ N\OD
PCM 42
0,0
5,0
10,0
15,0
20,0
25,0
30,0
35,0
40,0
45,0
50,0
55,0
60,0
65,0
70,0
75,0
80,0
0 0,1 0,2 0,3 0,4 0,5 0,6 0,7 0,8
1
2
3
Min kyla
Max k
y
la
Tillgängligt tryck, kPa
Flöde
l/s
7LOOJ¦QJOLJW WU\FN N3D
)O¸GH
OV
0LQ N\OD
0D[ N\OD
Siffrorna 1, 2 och 3 anger de tre olika hastighetsinställningarna på
cirkulationspumpen.
Tryckfallsdiagram
PCM 40 köldbärarsida
0,0
2,0
4,0
6,0
8,0
10,0
12,0
14,0
16,0
18,0
0 0,05 0,1 0,15 0,2 0,25 0,3 0,35 0,4 0,45 0,5
Kyla
Värme
Flöde
l/s
Tryckfall, kPa
7U\FNIDOO N3D
)O¸GH
OV
.\OD
9¦UPH
PCM 40 värmebärarsida
0,0
1,0
2,0
3,0
4,0
0 0,05 0,1 0,15 0,2 0,25 0,3 0,35 0,4
Värme
Tryckfall, kPa
Flöde
l/s
7U\FNIDOO N3D
)O¸GH
OV
9¦UPH
PCM 42 köldbärarsida
0,0
2,0
4,0
6,0
8,0
10,0
12,0
14,0
16,0
18,0
20,0
22,0
0 0,1 0,2 0,3 0,4 0,5 0,6 0,7 0,8 0,9 1
Kyla
Värme
Flöde
l/s
Tryckfall, kPa
7U\FNIDOO N3D
)O¸GH
OV
.\OD
9¦UPH
PCM 42 värmebärarsida
0,0
2,0
4,0
6,0
8,0
10,0
12,0
14,0
16,0
18,0
20,0
0 0,1 0,2 0,3 0,4 0,5 0,6 0,7 0,8
Värme
Tryckfall, kPa
Flöde
l/s
7U\FNIDOO N3D
)O¸GH
OV
9¦UPH
8
SE

Elinkoppling
OBS!
All elektrisk inkoppling skall ske av behörig
elektriker.
Elektrisk installation och ledningsdragning skall
utföras enligt gällande bestämmelser.
F1145/F1245 ska vara spänningslös vid installa-
tion av PCM 40/42.
OBS!
Om matningskabeln är skadad får den endast
ersättas av NIBE, dess serviceombud eller liknan-
de behörig personal för att undvika eventuell
fara och skada.
Elscheman finns i slutet av denna monteringsanvisning.
Anslutning av matning
PCM 40/42 levereras med matningskabel och stickkontakt
(W101, längd 3,0 meter) monterad från fabrik.
Anslutning av kommunikation
Detta tillbehör innehåller ett tillbehörskort (AA5) som ska
anslutas direkt till värmepumpen på ingångskortet (plint
AA3-X4).
Om flera tillbehör ska anslutas eller redan finns installerad
måste nedanstående instruktion följas.
Det första tillbehörskortet ska anslutas direkt till värme-
pumpens plint AA3-X4. De efterföljande korten anslutas
i serie med föregående kort.
Kommunikationskabeln (W102, längd 2,5 meter) är
monterad från fabrik och ansluts enligt tabellen nedan.
Annat tillbehör-
skort (AA5-X4)
Värmepump
(AA3-X4)
Färg
415Vit (A)
514Brun (B)
613Grön (GND)
1
2
3
4
5
6
7
8
AA5-X4
15
A
B
GND
A
B
GND
A
B
GND
A
B
GND
A
B
GND
14
13
AA3-X4
1
2
3
4
5
6
7
8
AA5-X4
)
)
$$;
7LOOEHK¸UVNRUW
7LOOEHK¸UVNRUW
ON
12345678
-X9
-X2
24 20212223 1516171819 1011121314 567891
1
N
L
PE
PE
1
2
3
4
5
6
7
8
2
3
4
5
6
7
8
9
234
-X8
-X4
-X10
-X1
$$;
ON
12345678
-X9
-X2
24 20212223 1516171819 1011121314 567891
1
N
L
PE
PE
1
2
3
4
5
6
7
8
2
3
4
5
6
7
8
9
234
-X8
-X4
-X10
-X1
$$;
$$;
(%
9
SE

TÄNK PÅ!
Reläutgångarna på tillbehörskortet får max be-
lastas med 2 A (230 V) totalt.
Anslutning av givare och extern blockering
Använd kabeltyp LiYY, EKKX eller likvärdig.
Extern blockering
En kontakt (NO) kan anslutas till AA5-X2:23-24 för att
kunna blockera kyldriften. När kontakten sluts blockeras
kyldriften.
24 20212223 171819
3&0
([WHUQW
$$;
([WHUQ EORFNHULQJ
ON
12345678
-X9
-X2
24 20212223 1516171819 1011121314 567891
1
N
L
PE
PE
1
2
3
4
5
6
7
8
2
3
4
5
6
7
8
9
234
-X8
-X4
-X10
-X1
$$;
Extern framledningsgivare (BT25)
Anslut framledningsgivaren till AA3-X6:5-6 på ingångs-
kortet i värmepumpen.
Kabel för denna givare (W103, längd 2,5 meter) är anslu-
ten till PCM 40/42 från fabrik.
$$;
1
2
3
4
5
6
7
8
9
BT25
%7
YLW
EUXQ
$$;
F1245
123456789
BT25
%7
$$;
YLW EUXQ
$$;
F1145
DIP-switch
DIP-switchen på tillbehörskortet ska vara inställd enligt
nedan.
ON
12345678
ON
12345678
-X9
-X2
24 20212223 1516171819 1011121314 567891
1
N
L
PE
PE
1
2
3
4
5
6
7
8
2
3
4
5
6
7
8
9
234
-X8
-X4
-X10
-X1
$$6
Reläutgång för kyllägesindikering
Möjlighet finns till extern indikering av kyllägesindikering
genom reläfunktion via ett potentialfritt växlande relä
(max 2 A) på ingångskortet (AA3), plint X7.
Ansluts kyllägesindikering till plint X7 måste det väljas i
meny 5.4.
Programinställningar
Programinställningen av PCM 40/42 kan göras via start-
guiden eller direkt i menysystemet i NIBE F1145/F1245.
TÄNK PÅ!
Se även Installatörshandboken för F1145/F1245.
Startguiden
Startguiden visas vid första uppstart efter värmepumpsin-
stallationen, men finns även i meny 5.7.
Menysystemet
Om du inte gör alla inställningar via startguiden eller be-
höver ändra någon inställning kan du göra detta i meny-
systemet.
Meny 5.2 - systeminställningar
Aktivering/avaktivering av tillbehör.
Välj: "passiv kyla 2-rör"
Meny 1.9.5 - kylinställningar
Inställning av minsta framledningstemperatur, tid mellan
kyla och värme, shuntinställningar samt val om rumsgivare
ska styra kylan.
10
SE
Autres manuels pour PCM 40
3
Ce manuel convient aux modèles suivants
1
Table des matières
Langues :
Autres manuels Nibe Congélateur





















