
R L
AUDIOOUTPUT
MODEL:M-500U
ACIN: 220V-240V~ 50Hz 140mA
MADEIN CHINA
ON
OFF
ACIN
Hightemperature during operation
Avoid touching back panel
MULTIMEDIASPEAKER
R L
AUDIOINPUT
+
—
BASS
Wyposazenie
Przy rozpakowywaniu powinienes znalezc nastepujace elementy:
14. Czyszczenie – przed przystapieniem do czyszczenia odlacz przewod zasilajacy z gniazdka.
Obudowe subwoofera mozna czyscic sucha szmatka. Gdy uzywasz aerozolu do czyszczenia, nie
rozpylaj go na powierzchnie obudowy, nanies srodek na szmatke. Uwazaj aby nie uszkodzic czesci
napedu.
15. Akcesoria – nie uzywaj akcesoriow nie zalecanych przez producenta produktu, gdyz moga one
spowodowac uszkodzenia.
16. Oprzyrzadowanie - nie umieszczaj niniejszego produktu na niestabilnej podstawie, z uzyciem
podporki, stojaku, wsporniku lub na stoliku. Produkt moze spasc powodujac powazne obrazenia
zarownoudzieci,jakiosob doroslych,atakzeuszkodzeniesamegoproduktu. Uzywajtylkozpodporka,
stojakiem, wspornikiem lub stolikiem, zalecanymi przez producenta badz sprzedawanymi razem z
produktem. Montaz produktu zawsze nalezy prowadzic zgodnie z instrukcjami producenta z uzyciem
akcesoriowzalecanychprzezproducenta.
17. Przesuwanie produktu – przy przesuwaniu produktu razem z podstawka nalezy zachowac
ostroznosc. Nagle zatrzymanie sie, nadmierna sila lub nierowne powierzchnie moga spowodowac
przewroceniesieproduktuzpodstawa.
18. Okresy nieuzywania – w czasie burzy oraz na czas dluzszego nieuzywania urzadzenia nalezy
odlaczycprzewodzasilajacyurzadzeniaodgniazdka.
19.Obsluga–nieprobujsamodzielnienaprawiacproduktu,poniewazprzyotwieraniuobudowymozesz
narazacsienadzialaniewysokiegonapiecialubinnychniebezpieczenstw.
20. Prosimy o odlaczenie przewodu zasilajacego od podstawowego glownego zrodla zasilania lub od
gniazdka sciennego gdy produkt nie jest uzywany. Gdy przewod zasilajacy jest podlaczony, system
znajdujesiewtrybieoczekiwaniaizasianieniejestcalkowiciewylaczone.
21.Wymiana czesci – gdy niezbedna jest wymianaczesci, upewnijsie, ze specjalista do obslugi uzyl
czesci wskazanych przez producenta lub o tych samych wartosciach jakie posiadaja oryginalne czesci.
Niesankcjonowana wymiana moze doprowadzic do pozaru, porazenia pradem lub innego
niebezpieczenstwa.
22.Bezpiecznikitopikowe–abyzapewnicstalaochroneprzedzaplonem,uzywajtylkobezpiecznikow
topikowych odpowiedniego typu lub o niezbednych nominalnych parametrach. Wlasciwe parametry
bezpiecznikowtopikowychdlakazdejwartoscinapieciapodanesanaobudowieurzadzenia.
23. Pola magnetyczne – produkt stwarza pole magnetyczne. Nie umieszczaj dowolne obiekty , ktore
moga byc uszkodzone niniejszym polem magnetycznym (np. odbiorniki telewizyjne lub monitory z
lampami elektronopromieniowymi, kasety audio i video, karty magnetyczne w odleglosci blizej niz 0,5
metra (2 stopy) od urzadzenia. Urzadzenie moze spowodowac znieksztalcenie obrazu w lampach
elektronopromieniowychznajdujacsiew blizszejodleglosci.
24. Nie zwiekszaj glosnosci w czasie sluchania cichych fragmentow lub w przypadku braku sygnalu
dzwiekowego. Jesli to zrobisz, moze nastapic uszkodzenie glosnika gdy nagle zabrzmi fragment o
maksymalnympoziomedzwieku.
25. Jedynym sposobem odlaczenia produktu od zrodla zasilania jest odlaczenie przewodu zasilajacego
odgniazdkalub odproduktu.Przyuzyciu produktu,musibyczapewnionyswobodnydostepdogniazdka
sieciowegolubdomiejsca podlaczeniaprzewoduzasilajacegodoproduktu.
26.Gniazdkosieciowepowinnoznajdowacsiewpoblizuurzadzeniaibyclatwodostepne.
Wprowadzenie
Właściwości:
SubwooferM-500U 1 szt.
SatelityМ-500U 2
Przewod audio (3,5 mm stereo - 2RCA) 1szt.
Instrukcja obslugi 1szt.
szt.
Jakościowe basowe kolumny 2.1 przeznaczone są do multimediów i aplikacji komputerowych. System
jest idealny do odtwarzania Twojej ulubionej muzyki i filmów. Płyta multimedialna do odtworzenia
wprowadzonejróżnymisposobamiinformacjizUSBiczytnikukartSD.
Tensystemakustyczny2.1wypełniTwójdomidealnieczystymdźwiękiem
1. Wysokiej jakości system 2.1 z mocnymi basami.
2. Jest idealny do multimedialnych filmów, telewizji, odtwarzania CD/DVD oraz Mp3/Mp4
3. Seria «М» firmy «Microlab» jest mocnym wejściem do światu poważnej muzyki
4. Krystalicznie czysty dźwięk kolumn zapewnia dynamiczne brzmienie. Funkcję inwertora fazy
zapewnia efektywna budowa kolumn.
5. Dostarczany jest z interfejsem multiformatowym dla rożnych trybów odtwarzania takich jak
odtwarzanie z urządzeń USB i kart SD, złącza wejściowe 3.5mm i 2RCA
PC or Notebook Mp3 / Mp4 Media player CD / VCD / DVD
player
Iiustracje
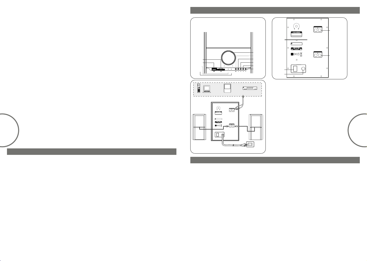
Przedni panel
Tylny panel
1. Wl./wyl. zasilania
2. Zasilanie – prad zmienny: 220V-240V~ 50Hz
3. Wejscie: do wejscia sygnalu ze zrodel
sygnalu na przyklad odtwarzaczy CD / DVD,
Mp3 / Mp4 lub telewizor
4. Zlacza wyjsciowe: podlaczenia do prawej i
lewej satelity, subwoofera.
Podłączenia i włączenie
Tylny panel
1.PodłączsatelitydolewegoiprawegozłączaRCA.
2.Ustaw obie satelity wpunktach skrajnychstrefysluchania,asabwoofer-napodlodzetylnympanelem
dosciany.
3.Podlacz urzadzenie odtwarzajace do tylnego wejsciowego zlacza RCA wzmacniacza zapomoca
zalaczonegokabla.
4.Sabwoofer powinien znajdować sięw pobliżu źródła zasilania i urządzenia odtwarzającego Na
przykładodtwarzaczaCD/DVD,Mp3/Mp4lubtelewizora.
5.Podlaczzasilaniedosystemuztyluwzmacniacza.Proszeupewnicsie,zeparametry zrodla zasilania
zgodnesaztymi,podanyminatylnympanelu.
Podlaczenia
Wlaczenie
1.Upewnićsię,żenatężeniegłośnościjestustawionenanajniższympoziomie.
2.WłączyćgłówneźródłozasilaniaACiwłączyćsystemgłośnikowy,naciskającguziknajegotylnympanelu.
3.Włączyćurządzenieodtwarzającedźwiękirozpocząćodtwarzaniemuzyki.
4.Ustawićnatężeniegłośnościnażądanypoziombyczerpaćprzyjemnośćzodtwarzanejmuzyki.
5.Alternatywne wejścia typu USBAi karty SD znajdują się na przednim panelu. Oba umożliwiają odtwarzanie utworów w
formacieMp3iWMA.
6. Należy posługiwać się przyciskami Następny (Next ) lub Poprzedni (Previous) aby poruszać się między utworami w
czasiesłuchania.
7. Uwaga: Automatycznie uruchomi się ten format odtwarzania, który był podłączony w czasie poprzedniego
uruchomienia:USBlubkartaSD.
8. Domyślny reżym odtwarzania to źródłoAUX (nie USB lub karta SD). Jeśli oba źródła są dostępne (i USB, i karta SD)
domyślniezostanieuruchomioneźródłoUSB.
10.Diody:
Gdypodświetlonajestniebieskadiodanapokrętleregulacjigłośnościoznaczato,żewłączonejestzasilanie.
Podświetlonapomarańczowadiodaoznacza,żepodłączonejestźródłoAUXlubUSB/SD.
Prąd zmienny
220 V - 240 V ~ 50 Hz, 600 mA
Subwoofer
Prawa kolumnaLewa kolumna
Przedni panel
1. złączka do kart SD
2. złączka USB typ A
3. USB / SD LED
4. AUX LED
5. Pokretlo regulatora
glosnosci
6. Wyłączenie dźwięku
7. Poprzedni utwor
8. Odtworzenie lub
pauza
9. Następujący utwór
10. Wybor źródła
VOLUME
AUX
USB/SD
1
2
3
4
5
6
7
8
9
10
1
2
3
4
5
R L
AUDIO OUTPUT
MODEL: M-500U
AC IN: 220V-240V~ 50Hz 140mA
MADE IN CHINA
ON
OFF
AC IN
High temperature during
operation
Avoid touching back panel
MULTIMEDIASPEAKER
R L
AUDIO INPUT
+
—
BASS
POPO
15 16