
MAXEONSOLARTECHNOLOGIES,LTD.
SafetyandInstallationInstructions‐Document001‐15497Rev.X
©June2022MaxeonSolarTechnologies,Ltd.Allrightsreserved.Specificationsincludedinthismanualaresubjecttochangewithoutnotice.
SafetyandInstallationInstructions
(English‐IECversion)
1.0 Introduction
ThismanualprovidessafetyandinstallationinstructionsforIEC
certifiedMaxeonphotovoltaicmodulescarryingtheTUVlogoonthe
productlabel(Figure1).
Figure1
1.1DisclaimerofLiability
Theinstallationtechniques,handlinganduseofthisproductare
beyondcompanycontrol.Therefore,Maxeondoesnotassume
responsibilityforloss,damageorexpenseresultingfromimproper
installation,handlingoruse.
1.2ConformitytoInternationalElectrotechnicalCommission(IEC)
standards
ThisproductmeetsorexceedstherequirementssetforthbyIEC
61215Edition3‐2016forPVModules,aswellasIEC61730Edition1
and2seriesforClassIIapplications.TheIECStandardcoversflat‐plate
PVmodulesintendedforinstallationonbuildingsandthoseintended
tobefreestanding.Thisproductisnotintendedforusewhere
artificiallyconcentratedsunlightisappliedtothemodule.
Thismanualshallbeusedincombinationwithindustryrecognized
bestpractices.Modulesshouldbeinstalledbycertifiedprofessionals
only.
1.3LimitedWarranty
ModulelimitedwarrantiesaredescribedintheMaxeonwarranty
documentobtainableatwww.sunpower.maxeon.com.Pleaseread
thisdocumentformoreinformation.
Warrantiesdonotapplytoanyofthefollowing;
PVModulessubjectedto:(i)misuse,abuse,neglectoraccident;
(ii)alterationorimproperinstallation(improperinstallation
includes,withoutlimitation,installationorarraythatdoesnot
complywithallMaxeoninstallationinstructionsandoperations
andmaintenanceinstructionsofanytype(asmaybeamended
andupdatedfromtimetotimeatMaxeon’ssolediscretion),and
allnational,state,andlocallaws,codes,ordinances,and
regulations);(iii)repairormodificationbysomeoneotherthan
anapprovedservicetechnicianofMaxeon;(iv)conditions
exceedingthevoltage,wind,snowloadspecifications;andany
otheroperationalspecification;(v)powerfailuresurges,
lightning,flood,orfire;(vi)damagefrompersons,biological
activity,orindustrialchemicalexposure;(vii)glassbreakagefrom
impactorothereventsoutsideMaxeon’scontrol.
2.0 SafetyPrecautions
Beforeinstallingthisdevice,readallsafetyinstructionsinthismanual.
CoverallmodulesinthePVarraywithanopaqueclothormaterial
beforemakingorbreakingelectricalconnections.
Donotdisconnectanymoduleswhenitsinverterisfeedinginto
thegrid.Switchofftheinverterbeforedisconnecting,reinstalling
ormakinganyactionwiththemodules.
Forconnectors,whichareaccessibletountrainedpeople,itis
imperativetousethelockingconnectorsandsafetyclips,if
applicable,inordertodefendagainstuntrainedpersonnel
disconnectingthemodulesoncetheyhavebeeninstalled.
Allinstallationsmustbeperformedincompliancewithall
applicableregionalandlocalcodes.
Therearenouserserviceablepartswithinthemodule.Donot
attempttorepairanypartofthemodule.
Installationshouldbeperformedonlybyqualifiedpersonnel.
Removeallmetallicjewelrypriortoinstallingthisproductto
reducethechanceofaccidentalexposuretolivecircuits.
Useinsulatedtoolstoreduceyourriskofelectricshock.
Donotstandon,walk,drop,andscratchorallowobjectstofallon
theglasssurfaceofthemodules.
Damagedmodules(brokenglass,tornbacksheet,brokenj‐boxes,
brokenconnectors,etc)canbeelectricalhazardsaswellas
lacerationhazards.Contactwithdamagedmodulesurfacesor
moduleframecancauseelectricshock.Damagedmodulesshould
beimmediatelydisconnectedfromtheelectricsystem.The
moduleshouldberemovedfromarrayassoonaspossibleand
contactthesupplierfordisposalinstructions.
Unconnectedconnectorsmustalwaysbeprotectedfrompollution
(e.gdust,humidity,foreignparticles,etc),priortoinstallation.Do
notleaveunconnected(unprotected)connectorsexposedtothe
environment.Acleanassemblyenvironmentisthereforeessential
toavoidperformancedegradation.
Donotallowtheconnectorstocomeincontactwithchemicals
suchasgreases,oilsandorganicsolventswhichmaycausestress
cracking.
Donotinstallorhandlethemoduleswhentheyarewetorduring
periodsofhighwind.
Donotblockdrainholesorallowwatertopoolinornearmodule
frames
Contactyourmodulesupplierifmaintenanceisnecessary.
Savetheseinstructions!
3.0 ElectricalCharacteristics
ThemoduleelectricalratingsaremeasuredunderStandardTest
Conditions(STC)of1kW/m²irradiancewithAM1.5spectrumanda
celltemperatureof25°C.Maxeonmoduleshavespecificelectrical
characteristicsasshownonthedatasheets.
Aphotovoltaicmodulemayproducemorecurrentand/orvoltage
thanreportedatSTC.Sunny,coolweatherandreflectionfromsnow
orwatercanincreasecurrentandpoweroutput.Therefore,thevalues
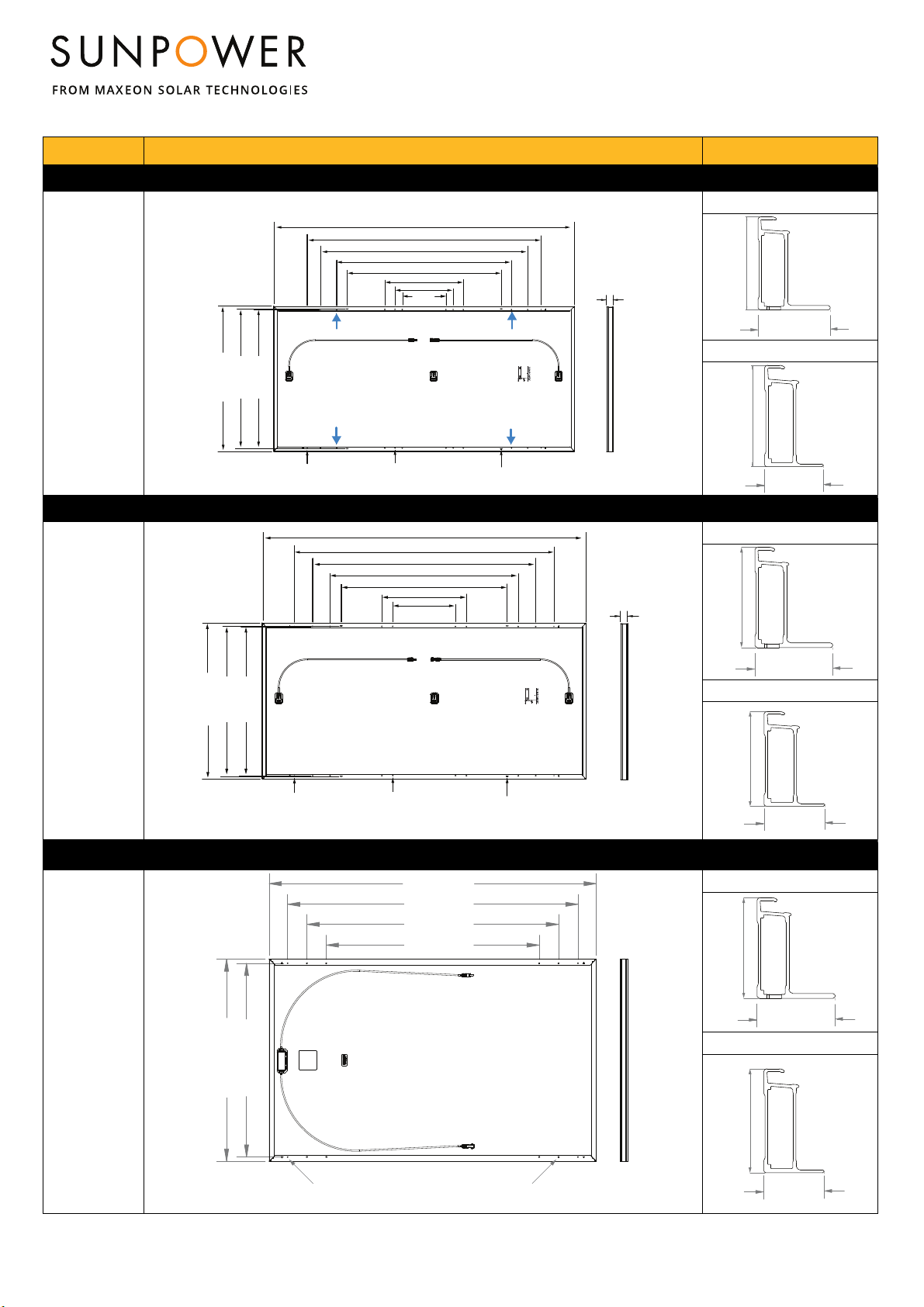
ThisdocumentincludesreferencestoMaxeonE‐series(SPR‐Eyy‐
xxx),X‐series(SPR‐Xyy‐xxx),P‐Series(SPR‐Pyy‐xxx,SPR‐P3‐xxx,
SPR‐Py‐xxx‐UPP,SPR‐Py‐xxx‐COM‐M‐BF,SPR‐Py‐xxx‐COM‐S‐BF,
SPR‐Py‐xxx‐BLK,SPR‐Py‐xxx‐COM‐XS),SPR‐MAX2‐xxx,SPR‐MAX3‐
xxx,SPR‐MAX5‐xxx,SPR‐MAX6‐xxxPVModules.
DonotmixE,X,MAX2,MAX3,MAX5,MAX6,PSeries,P3,P5and
P6inoneSystem.
Allmoduleseriesdoesnotrequirefunctionalgroundingandare
compatiblewithtransformer‐lessinverters(ref.section4.1)
Important!Pleasereadthisinstructionsheetinitsentirety
beforeinstalling,wiring,orusingthisproductinanyway.
Failuretocomplywiththeseinstructionswillinvalidatethe
MaxeonLimitedWarrantyforPVModules.
Danger!Moduleinterconnectspassdirectcurrent(DC)andare
sourcesofvoltagewhenthemoduleisunderloadandwhenitis
exposedtolight.Directcurrentcanarcacrossgapsandmay
causeinjuryordeathifimproperconnectionordisconnectionis
made,orifcontactismadewithmodulecomponentsthatare
damaged.Donotconnectordisconnectmoduleswhencurrent
fromthemodulesoranexternalsourceispresent.