5 6
No. Name I/O Port Active To/From Description
1 MLE OUT P120/RTP0 QD01/QD5 Latch signal for mode control of DAC QD01/QD51
2 MBCK IN/OUT P121/RTP1 H QD01/QD5 Serial clock for mode control of DAC QD01/QD51
3 MDAT OUT P122/RTP2 L QD01/QD5 Serial data for mode control of DAC QD01/QD51
4 MUTEN OUT P123/RTP3 QD01/QD5 Mute control signal for DAC QD01/QD51
5 RSTN IN P124/RTP4 L QD01/QD5 Reset signal for DAD QD01/QD51
6 OPEN IN P125/RTP5 - OPEN
7 OPEN IN P126/RTP6 - OPEN
8 OPEN IN P127/RTP7 - OPEN
9 GND IC - GND
10 5MHz XTAL X2 - XY01 Clock out
11 5MHz XTAL X1 - XY01 Clock in
12 +5VD Vdd - Q811
13 OPEN XT2 - OPEN
14 +5VD XT1/P07 Q 811
15 RESTN IN RESET L QY03 Reset
16 RC5IN IN P00/INTP0/TI00 ZY21/EXT
IR Sensor signal input
17 DQSTN IN P01/INTP1/TI01 Q201 Data request from Q201
18 CD7RN OUT P02/INTP2 L Q102 Reset signal for Q102
19 SILDN OUT P03/INTP3 L Q102 Strobe signal for servo part of Q102
20 RAB7N OUT P04/INTP4 L Q102 Strobe signal for servo part of Q102
21 OPEN IN P05/INTP5 - OPEN
22 OPEN IN P06INTP6 - OPEN
23 +5VD Avdd - Q811
24 +5VD Avref0 - Q811
25 KEY0 IN P10/ANI0 Lev Tact switch
Key Sensor
26 KEY1 IN P11/ANI1 Lev Tact switch
Key Sensor
27 KEY2 IN P12/ANI2 Lev Tact switch
Key Sensor
28 GND IN P13/ANI3 - GND
29 GND IN P14/ANI4 - GND
30 GND IN P15/ANI5 - GND
31 GND IN P16/ANI6 - GND
32 GND IN P17/ANI7 - GND
33 GND Avss - GND
34 OPEN IN P130/ANO0 - OPEN
35 RSTDN OUT P131/ANO1 L QY02 Reset signal for Display driver QY02
36 +5VD Avref1 - Q811
37 STBD OUT P70/SI2/RxD H QY02 Strobe signal for Display driver QY02
38 SIOD OUT P71/SO2/TxD H QY02 Serial data for Display driver QY02
39 CLKD OUT P72/SCK2/ASCK H QY02 Serial clock for Display driver QY02
40 GND Vss - GND
41 SIDT IN P20/SI1 H Q201 Serial data for CD-TEXT decoder Q201
42 OPEN IN P21/SO1 - OPEN
43 CLKT OUT P22/SCK1 H Q201 Serial clock for CD-TEXT decoder Q201
44 OPEN P23/STB - OPEN
45 OPEN OUT P24/BUSY - OPEN
46 OPEN IN P25/SI0/SB0/SDA0 - OPEN
47 SDA IN/OUT P26/SO0/SB1/SDA1 H Q202 Serial data for Q102
48 SCL OUT P27/SCK0/SCL H Q202 Serial clock for Q102
49 A0 OUT P80/A0 H Q202 Address signal for Q202
50 A1 OUT P81/A1 H Q202 Address signal for Q202
51
A2
OUT
P82/A2
H Q202 Address signal for Q202
52
A3
OUT
P83/A3
H Q202 Address signal for Q202
53
A4
OUT
P84/A4
H Q202 Address signal for Q202
54
A5
OUT
P85/A5
H Q202 Address signal for Q202
55
A6
OUT
P86/A6
H Q202 Address signal for Q202
56
A7
OUT
P87/A7
H Q202 Address signal for Q202
57
D0
OUT
P40/AD0
H Q202 Data signal for Q202
58
D1
IN/OUT
P41/AD1
H Q202 Data signal for Q202
59
D2
IN/OUT
P42/AD2
H Q202 Data signal for Q202
60
D3
IN/OUT
P43/AD3
H Q202 Data signal for Q202
61
D4
IN/OUT
P44/AD4
H Q202 Data signal for Q202
62
D5
IN/OUT
P45/AD5
H Q202 Data signal for Q202
63
D6
IN/OUT
P46/AD6
H Q202 Data signal for Q202
64
D7
IN/OUT
P47/AD7
H Q202 Data signal for Q202
65
A8
OUT
P50/A8
H Q202 Address signal for Q202
66
A9
OUT
P51/A9
H Q202 Address signal for Q202
67
A10
OUT
P52/A10
H Q202 Address signal for Q202
68
A12
OUT
P54/A12
H Q202 Address signal for Q202
69
A11
OUT
P53/A11
H Q202 Address signal for Q202
70
A13
OUT
P55/A13
H Q202 Address signal for Q202
71 OPEN
Vss
-GNDGND
72 A14 OUT
P56/A14
H Q202 Address signal for Q202
73 OPEN IN
P57/A15
-OPEN
74 OPEN IN
P60
-OPEN
75 OPEN IN
P61
-OPEN
76 OPEN IN
P62
-OPEN
77 OPEN IN
P63
-OPEN
78
RDN
OUT
P64/RD
L Q202 Read signal for Q202
79
WRN
OUT
P65/WR
L Q202 Write signal for Q202
80 OPEN IN
P66/WAIT
-OPEN
81 OPEN IN
P67/ASTB
-OPEN
82
KILL
OUT
P100/TI5/TO5
H QF03 Cancel RC5 from IR sensor during output RC5
83
RC5O
OUT
P101/TI6/TO6
QF01 Synchronized recording signal output
84
TRM
OUT
P102
Q108 Tray motor control signal
85 OPEN IN
P103
-OPEN
86 OPEN IN
P30/TO0
-OPEN
87 OPEN IN
P31/TO1
-OPEN
88 OPEN IN
P32/TO2
-OPEN
89
CDRWO
OUT
P33/TI1
H Q101 In case of CD-RW disc, gain up control for Q101
90
SLSWN
IN
P34/TI2
L VAM1201 Sledge detect switch (LOW in end)
91
TROSN
IN
P35/PCL
L TRAY Tray in/out detect switch (LOW : out end)
92
TRISN
IN
P36/BUZ
L TRAY Tray in/out detect switch (LOW : in end)
93 OPEN IN
P37
-OPEN
94
CS
OUT
P90
H Q204 CS for EEPROM Q204
95
SK
OUT
P91
H Q204 Serial crock for EEPROM Q204
96
DI
OUT
P92
H Q204 Serial data output for EEPROM Q204
97
DO
IN
P93
H Q204 Serial data input for EEPROM Q204
98 OPEN IN
P94
-OPEN
99
AMUTN
OUT
P95
L QN04 Analog muting on
100
LEDN
OUT
P96
L QY04/QY08 LED control signal (HIGH : Filter1 , LOW :Filter2)
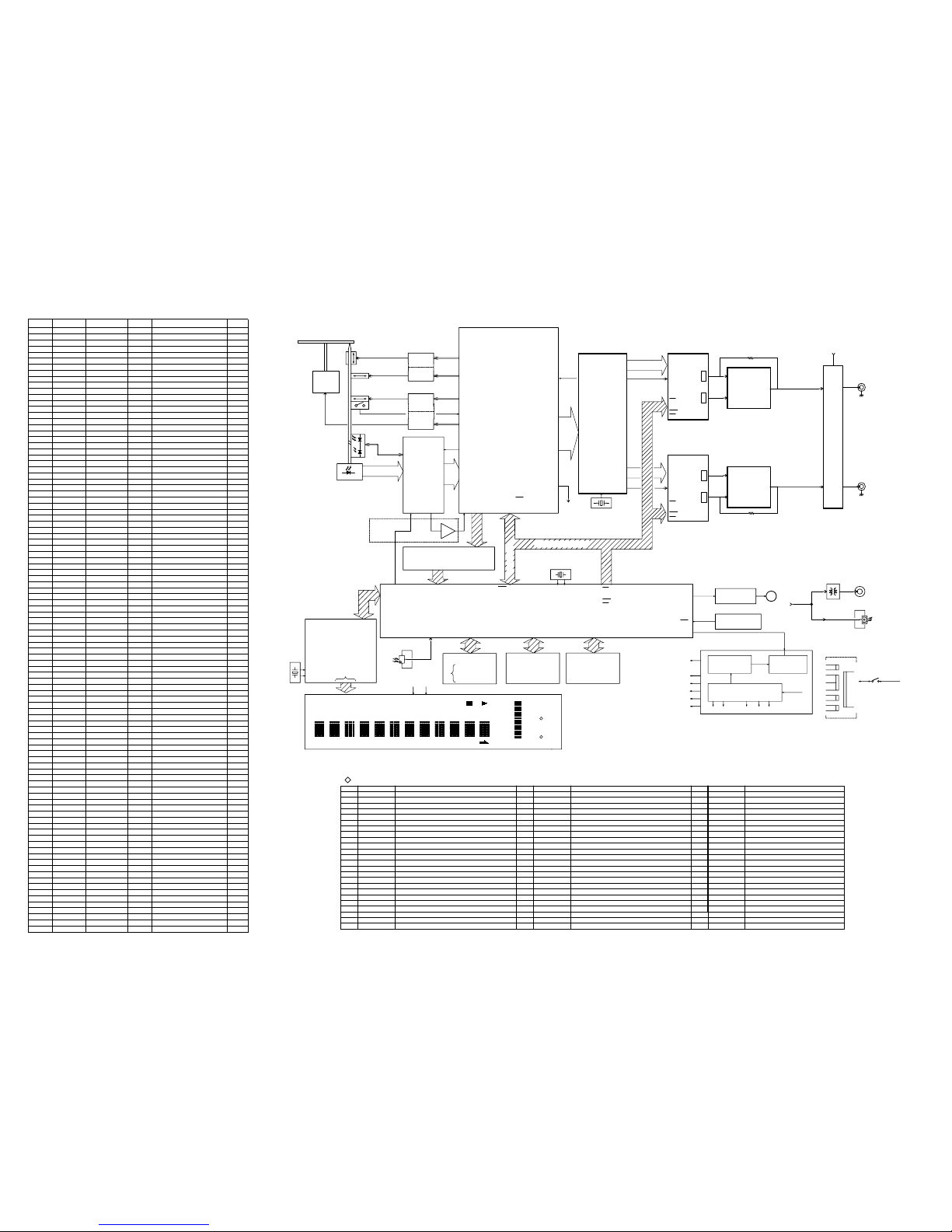
QY01 µPD78076
Serial
Input
I/F
Mode
Control
I/F
8X Oversampling
Digital Filter with
Function
Controller
Crystal/OSC
XTI
SCK
XTO CLKO V
CC1
AGND1 V
DD
DGND
Enhanced
Multi-level
Delta-Sigma
Modulator
V
OUT
L
V
CC2
L
V
CC2
R
AGND2L
AGND2L
EXTL
Open Drain
DAC
Low-pass
Filter
Low-pass
Filter
BPZ-Cont.
V
OUT
R
EXTR
ZERO
DAC
MC/DM1
ML/IIS
LRCIN
DIN
BCKIN
CS/IWO
MD/DM0
MODE
MUTE
RST Power Supply
PIN NAME I/O DESCRIPTION
1 LRCIN IN Left and Right Clock Input. This clock is equal to
the sampling rate - f
S
.
(1)
2 DIN IN Serial Audio Data Input
(1)
3 BCKIN IN Bit Clock Input for Serial Audio Data.
(1)
4 CLKO OUT Buffered Output of Oscillator. Equivalent to
System Clock.
5 XTI IN Oscillator Input (External Clock Input)
6 XTO OUT Oscillator Output
7 DGND - Digital Ground
8V
DD
- Digital Power +5V
9V
CC
2R - Analog Power +5V
10 AGND2R - Analog Ground
11 EXTR OUT Rch, Common Pin of Analog Output Amp
12 NC - No Connection
13 V
OUT
R OUT Rch, Analog Voltage Output of Audio Signal
14 AGND1 - Analog Ground
15 V
CC
1 - Analog Power +5V
16 V
OUT
L OUT Lch, Analog Voltage Output of Audio Signal
17 NC - No Connection
18 EXTL OUT Lch, Common Pin of Analog Output Amp
19 AGND2L - Analog Ground
20 V
CC
2L - Analog Power +5V
21 ZERO OUT Zero Data Flag
22 RST IN Reset. When this pin is low, the DF and
modulators are held in reset.
(2)
23 CS/IWO IN Chip Select/Input Format Selection. When this
pin is low, the Mode Control is effective.
(3)
24 MODE IN
Mode Control Select. (H: Software, L: Hardware)
(2)
25 MUTE IN Mute Control
26 MD/DM0 IN Mode Control, DATA/De-emphasis Selection 1
(2)
27 MC/DM1 IN Mode Control, BCK/De-emphasis Selection 2
(2)
28 ML/I
2
S IN Mode Control, WDCK/Input Format Selection
(2)
NOTES: (1) Pins 1, 2, 3; Schmitt Trigger input. (2) Pins 22, 24, 25, 26, 27,
28; Schmitt Trigger input with pull-up resister. (3) Pin 23; Schmitt Trigger
input with pull-down resister.
PIN SYMBOL To/From Description
1 Vss GND
2 BCLK1 Q102 Serial bit clock input
3 Vdd +5V +5V Power supply
4 Vss GND
5 Vdd +5V +5V Power supply
6 Vss GND
7 24/32/SEI GND
8 IIS/SONY GND
9DINV GND
10 MODE1 GND
11 MODE2 GND
12 Vdd +5V +5V Power supply
13 Vss GND
14 DOL QD01 Data output left channel
15 BCLK01 --- Not connected
16 Vss GND
17 Vdd +5V +5V Power supply
18 WCLK01 --- Not connected
19 Vss GND
20 Vss GND
21 DIN QD12 Data input
22 Vdd +5V +5V Power supply
23 Vss GND
24 DOR QD51 Data output light channel
25 BCLK02 QD01/QD51 Bit clock output
26 Vdd +5V +5V Power supply
27 WCLK02 QD01/QD51 Word clock output
28 Vss GND
29 Vdd +5V +5V Power supply
30 CKOUT3 --- Not connected
31 CKOUT2 Q102/QD01/QD51 System clock output
32 CKOUT1 --- Not connected
33 Vss GND
34 Vss GND
35 Vdd +5V +5V Power supply
36 XIN XD01 Clock input(16.9344MHz)
37 XOUT XD01 Clock input(16.9344MHz)
38 Vss GND
39 Vdd +5V +5V Power supply
40 Vss GND
41 Vss GND
42 WCLKI Q102 Word clock input
43 Vdd +5V +5V Power supply
44 Vss GND
QD01/QD51 PCM1716 QD02 TC160G11AU-1305