
507621-01 Issue 1720 Page 3 of 23
NOTE: These instructions are intended as a general guide and
do not supersede national, state or local codes in any way.
Shipping and Packing List
Package 1 of 1 contains the following:
1 - Assembled air handler unit factory-equipped for upow
or horizontal air discharge application (includes upow
and horizontal drain pans and pre-installed air lter).
Check equipment for shipping damage. If found,
immediately report damage to the last carrier. Check the
unit rating plate to conrm that delivered unit matches
order.
General
These air handlers are designed for indoor installation
only. As shipped, the unit is ready for installation in either
upow or horizontal left-hand air discharge applications.
Horizontal drain pan may be repositioned in the eld to
allow installation in the horizontal right-hand air discharge
position. Downow applications can be accomplished by
purchasing the available downow kit (see table 1).
All units come with a metering device installed.
Physical contact with metal edges and corners while
applying excessive force or rapid motion can result in
personal injury. Be aware of, and use caution when
working near these areas during installation or while
servicing this equipment.
CAUTION
These instructions are intended as a general guide and do
not supersede local or national codes in any way. Consult
authorities having jurisdiction before installation.
Compliance with all local, state, or national codes
pertaining to this type of equipment should be determined
prior to installation. Read this instruction manual, as well
as the instructions supplied in separate equipment, before
starting the installation.
In addition to conforming to manufacturer’s installation
instructions and local municipal building codes, installation
of Allied Air air handler units (with or without optional
electric heat), MUST conform with National Fire Protection
Association (NFPA) standards: “Standard for Installation of
Air Conditioning and Ventilation Systems” (NFPA No. 90A)
and “Standard for Installation of Residence Type Warm Air
Heating and Air Conditioning Systems” (NFPA No. 90B).
All models are designed for indoor installation only. The
installation of the air handler, eld wiring, duct system, etc.
must conform to the requirements of the National Electrical
Code, ANSI/NFPA No. 70 (latest edition) in the United
States, and any state laws, and local ordinances (including
plumbing or waste water codes). Local authorities having
jurisdiction should be consulted before installation is
made. Such applicable regulations or requirements take
precedence over the general instructions in this manual.
Install the conditioned air plenum, ducts and air lters
(provided) in accordance with NFPA 90B Standard for
the Installation of Warm Air Heating and Air-Conditioning
Systems (latest edition).
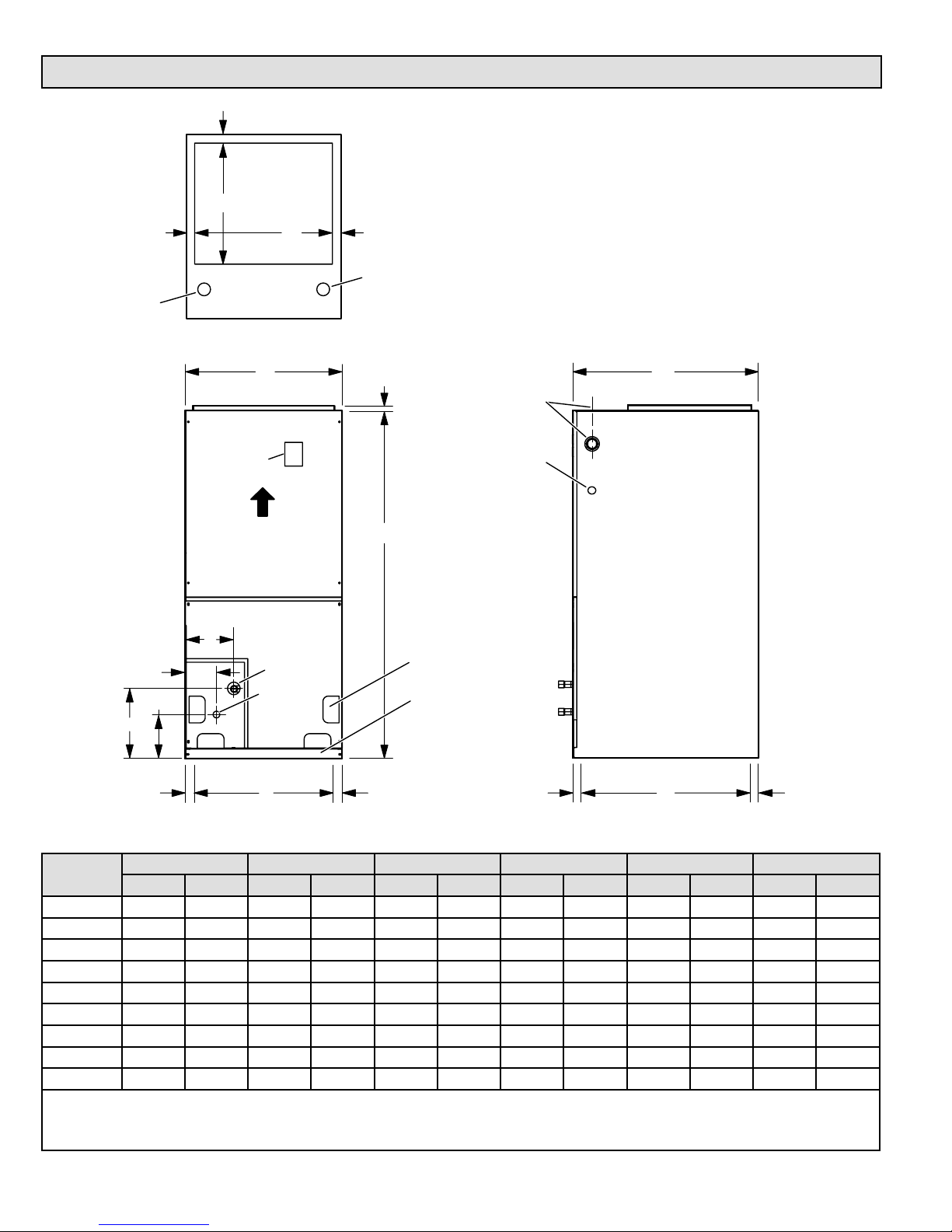
The air handler is shipped from the factory completely
assembled. The unit is provided with anges for the
connection of the duct system.
Do not remove the cabinet knockouts until it has been
determined which knockouts will need to be removed for
the installation.
Select the air discharge position which best suits the site
conditions. Consider required clearances, space, routing
requirements for refrigerant line, condensate disposal,
lters, duct system, wiring, and accessibility for service.
Refer to the rating plate on the air handler for specic
information.
Model Downow Kit
-018 96W37
-024, -030 96W38
-036 97W95
-042, -048, -060 97W96
Table 1. Downow Kits
Requirements
These units are designed to match, and must be
used with, outdoor units as rated. The indoor sections
are manufactured with a metering device installed
to provide optimum refrigerant control and system
performance with a variety of different capacities of
outdoor units.
IMPORTANT
Excessive Weight Hazard - Use two or more people
when moving and installing the unit. Failure to do so
can result in back or other type of injury.
WARNING