
9
8
5.5 Screen Lock
1 1
08:22am
2018/08/08 Monday 1. User press the Screen Lock
icon.
1 1
08:22
am
2018/07/09 Monday
Clean mode on?
5.6 Record Views
1 1
08:22am
2018/08/08 Monday
1/1 No.
1
2
3
OtherTime
4
5
6
7
8
9
2018-07-10 10:02
2018-07-10 09:31
2018-07-10 09:42
2018-07-10 08:52
2018-07-10 08:07
2018-07-09 17:02
2018-07-10 07:52
2018-07-09 16:42
2018-07-09 12:32
1. User press the Record icon.
2. The indoor station shows
the record list.
3. User can press the record
to view the detail info.
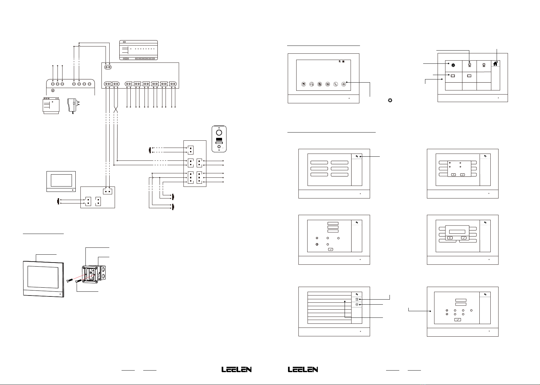
5.7 Anti-Dismantle Alarm
1 1
08:22am
2018/08/08 Monday
Removal alarm!
Once the outdoor station was removed, the indoor station
will receive a voice prompt and record the event.
Record Monitor Privacy Screen Lock Intercom Settings
Record Monitor Privacy Screen Lock Intercom Settings
Record Monitor Privacy Screen Lock Intercom Settings
Record Monitor Privacy Screen Lock Intercom Settings
2. Press「」button to clean,
and the indoor station will
lock the screen for 1 minute.
5.4 Privacy
1 1
08:22
am
2018/07/09 Monday
Privacy mode on?
1 1
08:22am
2018/08/08 Monday
1. User press the Privacy icon.
2. Press「」button to turn on
privacy mode.
Record Monitor Privacy Screen Lock Intercom Settings Record Monitor Privacy Screen Lock Intercom Settings
Open the door 1
Open the door 2
Switch the IPC video
More
5.3 Monitor
Monitor List
Outdoor Station1 Outdoor Station2 IPC1
IPC2 IPC3 IPC4
1 1
08:22am
2018/08/08 Monday
1. User press the Monitor icon.
3. User press the Outdoor Station
icon or IPC icon to monitor the
video.
2. The indoor station shows
the monitor list.
4. The indoor station shows
the monitor page.
Return
Call
Note:
In the monitoring state, press the 「」to
initiate a call to the outdoor station,so that you
can talk to someone outside the door.
Record Monitor Privacy Screen Lock Intercom Settings
FCC
This device complies with Part 15 of the FCC Rules. Operation is subject to the following two conditions:
(1) this device may not cause harmful interference, and (2) this device must accept any interference received,
including interference that may cause undesired operation.
The statements should be displayed in the user manual:
changes or modifications not expressly approved by the party responsible for compliance could void the user’s
authority to operate the equipment.
This equipment has been tested and found to comply with the limits for a Class B digital device, pursuant to Part 15
of the FCC Rules. These limits are designed to provide reasonable protection against harmful interference in a
residential installation. This equipment generates, uses and can radiate radio frequency energy and, if not installed
and used in accordance with the instructions, may cause harmful interference to radio communications. However,
there is no guarantee that interference will not occur in a particular installation.
If this equipment does cause harmful interference to radio or television reception, which can be determined by
turning the equipment off and on, the user is encouraged to try to correct the interference by one or more of the
following measures:
-- Reorient or relocate the receiving antenna.
-- Increase the separation between the equipment and receiver.
-- Connect the equipment into an outlet on a circuit different from that to which the receiver is connected.
-- Consult the dealer or an experienced radio/TV technician for help.
This equipment complies with FCC radiation exposure limits set forth for an uncontrolled environment. This
equipment should be installed and operated with minimum distance 20cm between the radiator and your body. This
transmitter must not be co-located or operating in conjunction with any other antenna or transmitter.