Kohler K-1111 Guide de démarrage rapide

Roughing-In Guide
Whirlpool
Mproduct numbers are for Mexico (i.e. K-12345M)
Los números de productos seguidos de Mcorresponden a México (Ej.
K-12345M)
Français, page 3
Español, página 4
USA: 1-800-4-KOHLER
Canada: 1-800-964-5590
México: 001-877-680-1310
kohler.com
K-1111
1042951-1-A ©2005 Kohler Co.

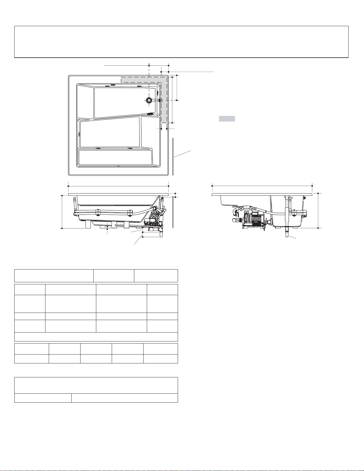
Product Information
Whirlpool K-1111-H2 shown
Fixture:* basin area top area weight
Bathing
well 45″(114.3 cm) x
43″(109.2 cm) 57″(144.8 cm) x
57″(144.8 cm) 300 lbs.
(136.08
kg)
water depth capacity
To
overflow 19-1/2″(49.5 cm) 170 gal. (643.5 L)
* Approximate measurements for comparison only.
Pump: Heater Volts Frequency Amps
1.5 hp 1.5 kW 220/240 V 50/60 Hz 11 A
Required Electrical Service
Dedicated circuit required, protected with a Class A
Ground-Fault Circuit-Interrupter (GFCI) or Earth-Leakage
Circuit-Breaker (ELCB):
Pump/control 220-240 V, 20 A, 50/60 Hz
Notes
Install this product according to the installation guide.
Floor support under whirlpool must provide for a minimum of
2500 lbs. (1134 kg).
Hot water supply should be 70% of capacity or greater.
Installations will vary.
An access panel for the pump/control is required. The minimum
dimension should be 34″(86.4 cm) wide by 15″(38.1 cm) high.
The drop-in cut-out dimension should be 68″(172.7 cm) by 68″
(172.7 cm).
If installing a rim mount faucet, make sure there is no interference
with drain overflow and circulating system before drilling any
holes. Consult local and national codes for minimum air gap
requirements if installing a spout on the faucet deck.
Fixture conforms to ANSI Standard Z124.1. All dimensions are
nominal.
2-1/2"
(6.4 cm)
6-1/2" (16.5 cm)
3-1/2"
(8.9 cm)
3" (7.6 cm)
11/16" (1.7 cm)
22-1/2"
(57.2 cm)
2" OD
69-1/4" (175.9 cm)
69-1/4" (175.9 cm)
24"
(61 cm)
13-1/2" (34.3 cm)
17-3/8"
(44.1 cm)
Recommended faucet area.
40"
(101.6 cm)
4"
(10.2 cm)
No change in measurements with drain
shown. (K-7167-AF or K-7167M-AF)
K-1111-H2
Pump/Control Access
34" (86.4 cm) W x
15" (38.1 cm) H Min.
1042951-1-A 2 Kohler Co.

Guide de raccordement
Baignoire à hydromassage
Information sur le produit
Baignoire à hydromassage K-1111-H2 illustré
Appareil:* espace du bassin espace supérieur poids
Bassin de
la
baignoire
45″(114,3 cm) x
43″(109,2 cm) 57″(144,8 cm) x
57″(144,8 cm) 300 lbs.
(136,08
kg)
profondeur d’eau capacité
Au trop
plein 19-1/2″(49,5 cm) 643,52 l. (643,5 L)
* Mesures approximatives pour comparaison uniquement.
Pompe: Chauffeau Voltage Fréquence Ampères
1,5 CV 1,5 kW 220/240 V 50/60 Hz 11 A
Branchement électrique requis
Circuit dédié requis, protégé par un Disjoncteur Différentiel de
Classe A :(GFCI) ou Disjoncteur de Mise à la Terre (ELCB):
Pompe/contrôle 220-240 V. 20 A. 50/60 Hz
Remarques
Installer ce produit selon le guide d’installation.
Le sol sous la baignoire à hydromassage doit pouvoir soutenir une
charge minimale de 2500 lbs (1134 kg).
L’alimentation d’eau chaude doit être d’une capacité de 70% ou
plus. Les installations varieront.
Un panneau d’accès pour la pompe/contrôle est requis. La
dimension minimum doit être de 34″(86,4 cm) de large et de 15″
(38,1 cm) de haut.
La dimension de la découpe devrait être de 68″(172,7 cm) par 68″
(172,7 cm).
Lors de l’installation d’un robinet sur rebord, s’assurer qu’il n’y ait
pas d’interférence avec le trop plein du drain et le système de
circulation avant de percer les trous. Se reporter aux codes
nationaux et locaux pour les normes d’écart minimal anti-retour, si
un bec sur l’espace de pose du robinet est installé.
Les dimensions de l’appareil sanitaire sont nominales et conformes
au standard ANSI Z124.1.
2-1/2"
(6,4 cm)
6-1/2" (16,5 cm)
3-1/2"
(8,9 cm)
3" (7,6 cm)
11/16" (1,7 cm)
22-1/2"
(57,2 cm)
69-1/4" (175,9 cm)
69-1/4" (175,9 cm)
24"
(61 cm)
13-1/2" (34,3 cm)
17-3/8"
(44,1 cm)
40"
(101,6 cm)
4"
(10,2 cm)
K-1111-H2
Ø Ext. 2"
Aucun changement dans les mesures ne
sera nécessaire si connecté avec le drain
illustré. (K-7167-AF ou K-7167M-AF)
Emplacement recommandé du robinet
Accès à la pompe et aux commandes
34" (86,4 cm) L x 15" (38,1 cm) H min.
Kohler Co. 3 1042951-1-A

Diagrama de instalación
Bañera de hidromasaje
Información sobre el producto
Bañera de hidromasaje K-1111-H2 ilustrada
Producto:* área de la pileta área superior peso
Área de
la bañera 45″(114,3 cm) x
43″(109,2 cm) 57″(144,8 cm) x
57″(144,8 cm) 300 lbs.
(136,08
kg)
profundidad del
agua capacidad
Al
rebosadero 19-1/2″(49,5 cm) 170 gal. (643,5 L)
* Dimensiones aproximadas sólo para comparar.
Bomba: Calentador Voltios Frecuencia Amperios
1,5 hp 1,5 kW 220/240 V 50/60 Hz 11 A
Requisitos eléctricos
Requiere un circuito dedicado protegido con un interruptor de
circuito de pérdida a tierra (GFCI) de clase A o un disyuntor
de fuga a tierra (ELCB):
Bomba/control 220-240 V, 20 A, 50/60 Hz
Notas para la instalación
Instale este producto conforme a la guía de instalación.
El soporte del piso debajo de la bañera de hidromasaje debe poder
sostener como mínimo 2500 lbs. (1134 kg).
El suministro de agua caliente debe llegar al 70% de la capacidad o
más. Varía según la instalación.
Se requiere un panel de acceso para la bomba/control. La
dimensión mínima debe ser 34″(86,4 cm) de ancho y 15″(38,1 cm)
de alto.
La dimensión de la abertura para la instalación empotrada debe ser
de 68″(172,7 cm) por 68″(172,7 cm).
Si la grifería se va a instalar en el reborde, asegúrese de que no
haya interferencias con el rebosadero de desagüe y el sistema de
circulación antes de perforar los orificios. Consulte los códigos
locales y nacionales para obtener los requisitos mínimos de espacio
libre en caso de instalar el surtidor sobre la cubierta de la grifería.
El producto cumple con la norma Z124.1 del ANSI. Todas las
dimensiones son nominales.
2-1/2"
(6,4 cm)
6-1/2" (16,5 cm)
3-1/2"
(8,9 cm)
3" (7,6 cm)
11/16" (1,7 cm)
22-1/2"
(57,2 cm)
69-1/4" (175,9 cm)
69-1/4" (175,9 cm)
24"
(61 cm)
13-1/2" (34,3 cm)
17-3/8"
(44,1 cm)
40"
(101,6 cm)
4"
(10,2 cm)
K-1111-H2
2" D.E.
No es necesario cambiar las medidas si se
conecta con el desagüe ilustrado. (K-7167-AF
oK-7167M-AF)
Área recomendada para la grifería
Acceso a la bomba/control
mínimo de 34" (86,4 cm) de
ancho x 15" (38,1 cm) de alto
Kohler Co. 4 1042951-1-A
Autres manuels pour K-1111
1
Ce manuel convient aux modèles suivants
1
Table des matières
Langues :

















