
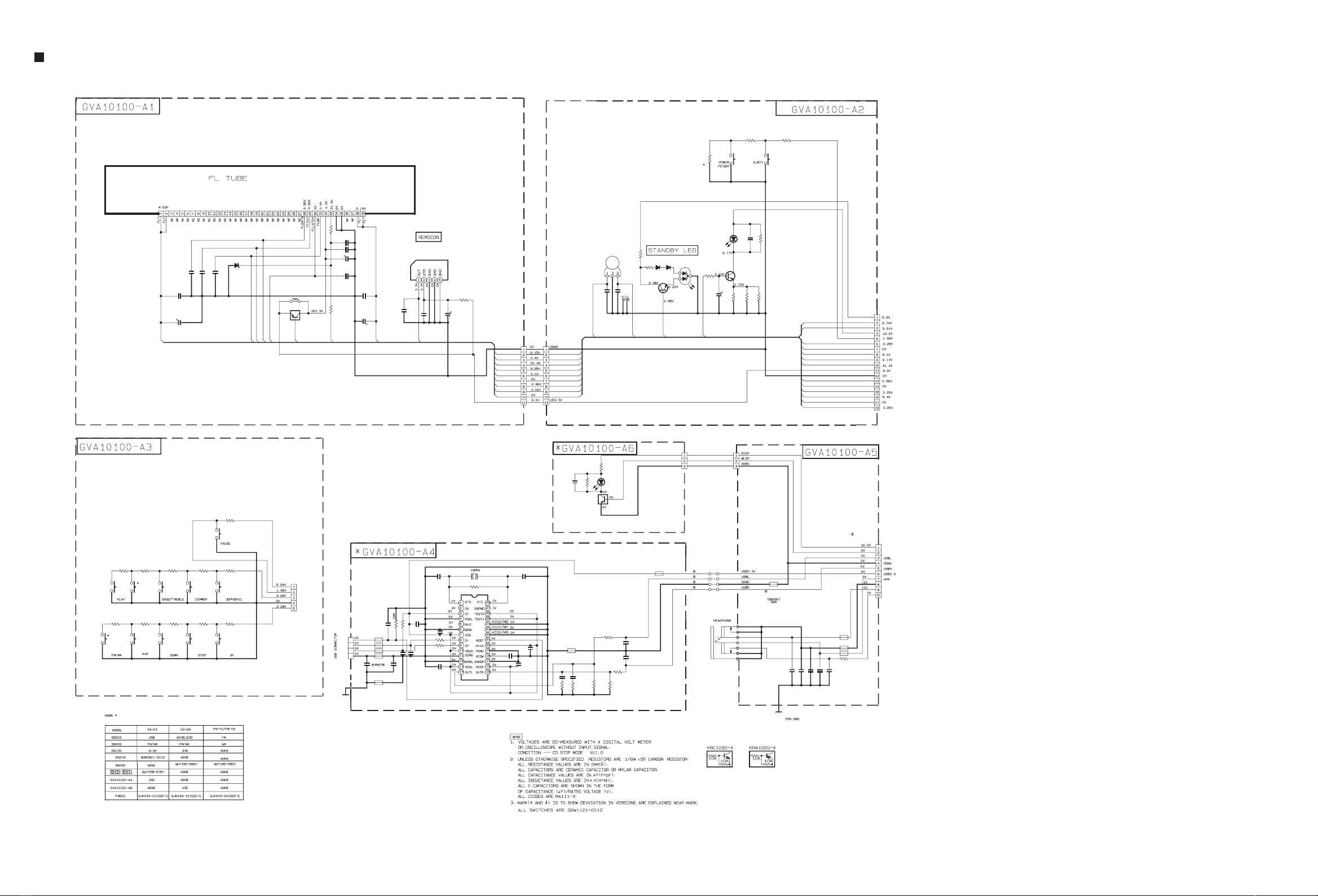
2-1
Block diagram
SWITCHING
POWER
SUPPLY
AC IN
35V
15V
DC regulator and audio output section
IC200
S10V REG.
IC250
DVD5V REG.
Q2015
M5V REG.
Q2060
DVD3.3V REG.
Q2020
US7V REG.
Q2040
FL1,FL2 REG.
IC202
US3.3V REG.
L+,L-
R+,R-
SPEAKER
TERMINAL
Digital amplifier circuit section
IC111 to IC113
IC121 to IC123
IC131
AMP.
IC132
HALF
BRIDGE
AHBCTL
Q1103
Q1203
Q3007
S.MUTE
CN312
IC301
IC302
FREQ.
CONT.
SMUTE
F-SHIFT
OLOAD
PRT
Q3002
Q3003
MODON
IC303
REG.
5V
L,R
CN311
US7V
DVD5V,S5V
S10V
US3.3V
FL+,FL-
D3.3V,S3.3V
D5V
M9V
L,R
AHBCTL
SMUTE,OLOAD
MODON,F-SHIFT
PRT
DVD5VCTL
DVDL
DVDR
SPDIF
OPEN,CLOSE
DVDOPSW
DVDCLSW
FLPOWER
DVD5VCTL
10VCTL
SPDIF
TRAY+
TRAY-
IC235
OPEN/CLOSE
TRAY
OPEN
CLOSE
DVDOPSW
DVDCLSW
S1
SWITCH
OPENDET
CLOSEDET
M
OPTICAL OUT
LM+
LM-
DVD tray loading
control section
CN302
15V
CN301
J3001
CN300
CN310
CN201
IC301
DV2.1
A,B,C,D,E,F,VREFH
RF+,PD(CD),PD(DVD)
Q101,Q102
Q103,Q104
FM+,FM-,UOUT
VOUT,WOUT,COM
IC201
DRIVER
T+,T-
F+,F- SPDRV,TRSDRV
TRDRV,FODRV
FG,VHALF
/DRVMUTE,/SPMUTE
TRVSW
IC509
FLASH
ROM
EXADT0 to 15
EXDAT0 to 15
EXADR16 to 20
NEXCE
NEXWE
NEXOE
IC505
SDRAM
MA0 to 11
BA0,BA1,DQM0,DQM1,MCK
NWE,NCSM,NRAS,NCAS
MDQ0 to 15
IC701
DAC
AOUT0
DVDLOUT
DVDROUT
BCK,LRCLK
DACPDN
DAC0CS
DDATA,DCLK
SPDIF(TX)
DAC1OUT(Y2-G),DAC2OUT(CB-B)
DAC3OUT(CR-R),DAC4OUT(Y/COMP)
DAC5OUT(C)
UCS,SCS,U2SDT,S2UDT,SCLK,NRST
DVD servo and DVD system control section
M9V,D5V
S5V,S3.3V
D3.3V
PICKUP
UNIT
TRAVERSE
MECHANISM
X351
OSC
LPCO1,LPCO2
CDLDCUR,DVDLDCUR
LD(CD)
LD(DVD)
CPURST
IC453
RESET
CN202 CN208
IC295 CN210
CN1
CN200
CN201CN101
CN503CN501
CN703CN702
IC701
VIDEO
DRIVER
Y/COMP,C
CR-R,CB-B
Y2-G
COMPONENT
VIDEO OUT
J701
S-VIDEO OUT
COMPOSITE
VIDEO OUT
J702
Y,Cb,Cr
Y,C,CV
V-MUTE1
V-MUTE2
UCS,SCS,SCLK
U2SDT,S2UDT
CPURST
Video driver and video out component section
IC400
SYSTEM
MICOM
CN424CN423 CN425
DVD5V
US7V
SMUTE
OLOAD
MODON
F-SHIFT
10VCTL
PRT
35V,FL+,FL-
S10V,US3.3V
OPEN,CLOSE,DVDOPSW
DVDCLSW,FLPOWER
DVD5VCTL
V-MUTE1
V-MUTE2
UCS,SCS,SCLK
U2SDT,S2UDT
CPURST
VOL+,VOL-
KEY1 to KEY3
KEY31
BACKLED
STBLED
FLDATA
FLLATCH
FLCLK,FLBK
POUTFL
REMOCON
CN426 CN427
KEY1 to KEY3
KEY31
IC410
EEPROM
SDA
SCL
CN421
TUDI
TUDO
TUCLK
TUCE
CN600
S6000 to S6003
S6005 to S6009
S6011,S6012
KEY MATRIX
User control keys section
CN610
S6100,S6101
STANBY & EJECT
SWITCH
KEY31
D6113
BACK LED
BKLED
D6110
STANDBY LED
STBLED
JS612
ENCODER
VOL+,VOL-
FL display and
remocon circuit
section
IC617
REMOCON
REMOCON
FL615
FL TUBE
FLDATA
FLLATCH
FLCLK,FLBK
POUTFL
CN605
CN615
HPL,HPR
CN501
FW621
J620
Headphone section
PHONES
HPL,HPR
HPIN
TO
TUNER PACK
System control, volume, AHB circuit, HP. circuit
and subwoofer section
J5000
AUXL,AUXR
AUX
TUL,TUR
IC500
E.VOL
DVDL
DVDR
L,R
IC510
AHB
LOUT
ROUT
Q5912
Q5913
J5001
W OUT
WOOFER
IC520
AMP.
Q5812
Q5810
Q5811
Q5813
Q5814
HPMUTE
HPIN
X4100
8MHz
OSC
LOADING
MOTOR
J623
USB circuit section
USB
CONNECTOR
USBL
USBR
IC621
D/A
IC420
RDS
DECODER
FMDET
RDSDATA
RDSCLK
Q5750
USB3.3V
REG.
USB3.3V US3.3V