
2-2
SHEET 1
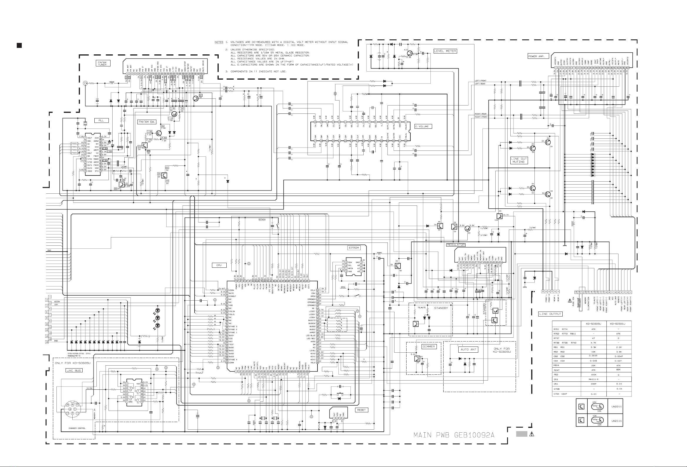
Standard schematic diagrams
Main amplifier section
To CN601
(SHEET 3)
(SHEET 2)
Parts are safety assurance parts.
When replacing those parts make
sure to use the specified one.
C914
C312
IC801
R13
R738
R808
IC901
C711
R739
R740
C311
C165
R734
L1
D1 D2
IC161
R7
Q881
R5
R4
R6
R881
R735
R736
IC701
R743
C177
R744
R745
R807
Q1 C178
C179
IC31
Q31
C170
C180
C902
R803
R805
R806
C50
R810
R809
R801
C801
SI
SCK
C91
R81
R91
SO
R882
C802
TU1
D331
Q241
D321
D851
D852
C781
IC702
R332
R322
R331
R321
R706
L701
R182
C36
C35
C46
R181
C161
C162
C171
C163
D240
R717
R248
R746
C39
C47
R708
R171
R161
R759
R762
CN901
R760
R761
R775
R776
R782
C723
C724
R793
VSS
R783
D781
R720
R719
VDD
R758
VPP
R774
R773
R709
R778
C32
C8
C49
X1
C706
R777
R779
R741
R243
R242
RESET
TD
C243
C901
R244
C301
C241
D243
C173
D998
RD
C726
R756
X701 X702
C316
D997
D996
C181
D995
C172
R707
RA30
R811
C891
R891
R892
C719
C968
C966
C967
C965
C964
Q6
R977
R976
C728
C963
C962
C961
IC301
R714
C729
C720
C730
R710
C731
C732
D902
C741
C247
C192C191
C710
Q7
C168
C167
C194
C81
C175
C707
C721
R711
Q977
C302
R712
R162
C242
D994
D993
D992
D991
R43
R713
C38
R715
R44
R716
R163
CN701
R747
R748
R749
C33
R705
C782
R311
R312
R301
R302
C322
C323
C324
C325
D901
R901
R352
R342
R341
R351
J1
R729
R10
Q784
D782
R172
C193
C169
R173
Q891
C37
R32
C34
C176
C174
C166
C164
D341
R704
D351
R737
D241
R757
R245
R241
D971
S701
D714
S703R764
R730
R731
S702
IC771
C771
R732
D715
D716
D717
J801
J321
C31
R1
C43
R53
C1
L901
Q5
C40
C4
D701
C906
C2
C716
C313
R42
R38
R751
C314
C303
C304
R804
R802
D51
R92
C92
C82
R82
R52
C881
C851
C910
C905
C911
Q10
C48
Q321 Q341
R165
R164
R323
R333
C327
X31
R31
C903
C9
D703
C245
R750
D244
C919
R9
R39
C41
R51
C5
D892
C319
C852
R851
D972
C907
R905
R904
C722
C308
R753
R721
R722
C11
R723
D718
C6
R906
R246
R247
C94
D242
Q331
R726
R728
C3
R11
R972
C701
C702
R33
C703
C704
Q901
C85
C95
Q902
R724
R718
D361
C785
C328
D891
Q782
R703
R702
D710
D711
C913
C908
C909
C317
D705
D707
D709
D702
D704
D706
D708
R971
C315
C717
C244
D784
C912
C320
R763
C10
C318
L702
R903 R902
D4
C784
Q781
R725
R40
R353
R343
R41
R174
R175
C42
C45
Q976
C307
C904
C44
Q351
C51
C915
R752
C708
C705
R701
C709
D713
C971
D5
C341
C84
R754
R755
C712
R771
R772
R768
100/16
0.47
HD74HC126FP-X
47K
330
HA13164A
220/10
0.47
0.22
2.2k
4.7u
TEA6320T-X
4.7k
UN2211-X
47k
3.3k
47k
47k
2.2k
2.2k
UPD784217AGC238
10k
0.033
10k
10k
100k
2SD601A/R/-X 0.0056 4.7/25
TB2118F-X
10
UN2211-X
4.7/25
4.7/25
2.2/50
100
100k
10k
100P
100
22k
47k
0.047
1/50
4.7k
120P
QAU0311-001
MA111-X
2SD601A/R/-X
MA111-X
RB160M-30-X
RB160M-30-X
100/6.3
IC-PST3433U-X
820
820
2.2k
2.2k
150k
4.7u
270
7P
10P
0.01
270
1/50
1/50
1/50
1/50
MA111-X
100
220
10k
1000P
0.01
3.3k
220k
220k
47k
QNZ0611-001
RB160M-30-X
47K
47K
47K
0.047
0.047
0
10k
MA111-X
1.2k
0
47k
MA8062/M/-X
10K
47K
47P
0.001
0.1
47K
47K
10k
180k
22k
0.047
3300/16
12k
0.47
1/50
RB160M-30-X
1/50
RB160M-30-X
0.0039
47k
QAX0617-001Z QAX0401-001
4.7/25
RB160M-30-X
RB160M-30-X
0.1
RB160M-30-X
1/50
150k
2.2K
0.1
1k
47k
100P
100P
100P
100P
100P
2SB624/4/-X
12k
27k
100P
100P
100P
LA47515
10k
0.01
0.22
0.01
820
0.01
0.01
MA111-X
0.01
0.01
100/16
47/16
47/6.3
UN2211-X
0.0056
0.033
0.01
1/50
0.22
0.047
820
2SB709A/QR/-X
0.47
820
22k
22/16
RB160M-30-X
RB160M-30-X
RB160M-30-X
RB160M-30-X
470
820
0.001
820
220
820
2.2k
QNZ0605-001
4.7k
4.7k
4.7k
47/6.3
47k
0.1
27k
27k
27k
27k
0.1
0.1
0.1
0.1
1N5401-TU-15
1k
820
820
2.2k
2.2k
47k
10K
UN2111-X
MA111-X
22k
100/16
4.7/25
2.2k
UN2211-X
10P
6.2k
0.047
0.22
0.0082
0.22
0.0082
MA111-X
47k
MA111-X
MA111-X
2.2k
47
47k
RB160M-30-X
QSW0451-001
UDZS5.6B-X
QSW1049-001Z
100
10k
47k
QSW0451-001
BR24L16F-W-X
0.047
10K
SML-310VT/JK/-X
SML-310VT/JK/-X
SML-310VT/JK/-X
QNZ0095-001
QNN0489-001
100/10
12
0.047
8.2k
22/16
QQR1378-002
2SB709A/R/-X
MA111-X
MA111-X
10/16
220/10
0.01
0.047
0.1
390P
100
10k
390P
390P
390P
47k
MA111-X
22/16
10/16
47/16
47/16
0.1
UN2211-X
0.047
2SD1781K/QR/-X 2SD1781K/QR/-X
47k
47k
100
100
0.01
QAX0616-001Z
10
47/16
220/10
10k
UDZS5.1B-X
10/16
47
0
0.047
22k
0.1/50
MA111-X
0.022
0.01
10K
220/10
5.6k
1k
0.047
1/50
47k
1k
10k
0.01
10k
0.01
10k
0.01
1k
MA111-X
2SD1781K/QR/-X
10k
10k
22/16
10K
2.2k
22P
27P
10k
27P
8P
UN2111-X
0.001
0.001
UN2211-X
470
470
UDZS11B-X
100P
0.01
MA111-X
UN2211-X
47
47
10/16
220/10
220/10
47/16
2.2k
4.7/25
0.01
0.22/50
UDZS11B-X
0.01
0.022
1k
0.01
22/16
4.7u
4.7k 9.1k
MA111-X
100/16
UN2111-X
10k
39k
100
100
QNB0100-002
10k
47k
47k
0.01
0.0027
UN2211-X
1/50
10/16
0.01
2SD1781K/QR/-X
0.1
47k
0.1
0.1
47k
0.01
MA111-X
0.1
MA111-X
0.1
820
10M
0.01
270
270
270
PSW
MUTE.DR
AM.ANT
AM.VCC
RESET
DAC-CDTI
DAC-CCLK
DAC-CSN
KEY2
DAC-PDN
FM/AM.VT
TUN.R
8V
INT
9V
SW5V
REMOCON
ENC1
SD/ST
ANT
SI
OPEN
CD.L
ENC2
EPROMCK
KEY1
KEY0
LEVEL
SW1
REMOCON
EPROMDA
LCDCL
OUTLR
LCDCE
OUTLF
LCDCL
LCDDA
I/O
TU.R
SCK
SO
SI
CD.R
OUTRF
OUTRR
LEDB
TU.L
FM/AM
VDD
CDON
CH.R
LEDR
LCDDA
CH.L
LCDCE
LEDB
VOLDA
VOLCL
LEDR
MP3REQ
CD.R
FM.ANT
FM.VCC
TUN.L
DIM.OUT
PLLDT
PLLCL
PLLDA
PLLCE
A-GND
I/O
CD.L
SW2
MP3DOUT
SO
MP3DIN
MP3STBY
BUS0
BUS1
LM0
BUS0
MP3RESET
KEY2
SCK
LM1
BUS1
CDRW
BUS2
BUS3
RST
CCE
BUCK
VDD5V
MP3CLK
CH.SCK
CDRW
TELMUTE
ENC2
CDON
BUS2
CH.R
CH.L
VOLDA
VOLCL
KEY1
KEY0
LEVEL
BUS3
BUCK
CCE
SM
MP3CLK
MP3REQ
MP3RESET
MP3STBY
MP3DOUT
MONO
MP3DIN
DAC-PDN
DAC-CDTI
DAC-CCLK
DAC-CSN
IFC-CONT
SEEK/STOP
DIM.IN
RR-
MEM.IN
SM
FL-
RL-
RR-
A-GND
FR-
FL+
RL+
RR+
FR+
DIM.IN
SW2
RR+
DIM.OUT
RL+
FR-
FL+
FL-
PSW
LM0
LM1
INT
MONO
ENC1
RL-
FR+
SEEK/STOP
IFC-CONT
PLLDI
PLLCL
PLLDA
PLLCE
FM/AM
SD/ST