
R-410A
ZH SERIES
6-1/2 - 12-1/2 Ton
60 Hertz
1084789-YIM-B-0614
TABLE OF CONTENTS
General . . . . . . . . . . . . . . . . . . . . . . . . . . . . . . . . . . . . . . . . . . 2
Installation . . . . . . . . . . . . . . . . . . . . . . . . . . . . . . . . . . . . . . . . 5
Preceding Installation . . . . . . . . . . . . . . . . . . . . . . . . . . . . . 5
Limitations . . . . . . . . . . . . . . . . . . . . . . . . . . . . . . . . . . . . 5
Location. . . . . . . . . . . . . . . . . . . . . . . . . . . . . . . . . . . . . . . . 7
Rigging And Handling . . . . . . . . . . . . . . . . . . . . . . . . . . . . . 7
Ductwork . . . . . . . . . . . . . . . . . . . . . . . . . . . . . . . . . . . . . . 15
Condensate Drain . . . . . . . . . . . . . . . . . . . . . . . . . . . . . . . 16
Compressors. . . . . . . . . . . . . . . . . . . . . . . . . . . . . . . . . . . 16
Filters . . . . . . . . . . . . . . . . . . . . . . . . . . . . . . . . . . . . . . . . 17
Power And Control Wiring. . . . . . . . . . . . . . . . . . . . . . . . . 17
Optional Electric Heat . . . . . . . . . . . . . . . . . . . . . . . . . . . . 30
Optional Gas Heat. . . . . . . . . . . . . . . . . . . . . . . . . . . . . . . 31
Options/Accessories . . . . . . . . . . . . . . . . . . . . . . . . . . . . . 33
Optional Variable Air Volume (VAV) . . . . . . . . . . . . . . . . . 34
Optional Hot Gas Bypass (HGBP) . . . . . . . . . . . . . . . . . . 36
Economizer Interface Overview . . . . . . . . . . . . . . . . . . . . 36
Airflow Performance . . . . . . . . . . . . . . . . . . . . . . . . . . . . . 42
Air Balance . . . . . . . . . . . . . . . . . . . . . . . . . . . . . . . . . . . . 47
Checking Air Quantity . . . . . . . . . . . . . . . . . . . . . . . . . . . . 47
Operation . . . . . . . . . . . . . . . . . . . . . . . . . . . . . . . . . . . . . . . 50
Cooling Sequence Of Operation . . . . . . . . . . . . . . . . . . . . 50
No Outdoor Air Options . . . . . . . . . . . . . . . . . . . . . . . . . 51
Cooling Operation Errors . . . . . . . . . . . . . . . . . . . . . . . . 53
Electric Heating Sequence Of Operations . . . . . . . . . . . . 54
Electric Heat Operation Errors . . . . . . . . . . . . . . . . . . . . 54
Gas Heating Sequence Of Operations . . . . . . . . . . . . . . . 55
Ignition Control Board . . . . . . . . . . . . . . . . . . . . . . . . . . 55
Gas Heating Operation Errors . . . . . . . . . . . . . . . . . . . . 56
Start-Up (Cooling) . . . . . . . . . . . . . . . . . . . . . . . . . . . . . . . . . 57
Start-Up (Gas Heat) . . . . . . . . . . . . . . . . . . . . . . . . . . . . . . . 58
Checking Gas Heat Input . . . . . . . . . . . . . . . . . . . . . . . . . . . 58
Charging The Unit . . . . . . . . . . . . . . . . . . . . . . . . . . . . . . . . . 60
Troubleshooting . . . . . . . . . . . . . . . . . . . . . . . . . . . . . . . . . . 60
Unit Control Board Option Setup. . . . . . . . . . . . . . . . . . . . . . 62
Option Byte Setup. . . . . . . . . . . . . . . . . . . . . . . . . . . . . . . 62
Heat Delay Setup . . . . . . . . . . . . . . . . . . . . . . . . . . . . . . . 62
Start-Up Sheet . . . . . . . . . . . . . . . . . . . . . . . . . . . . . . . . . . . 69
LIST OF TABLES
1 ZH078-150 Unit Limitations. . . . . . . . . . . . . . . . . . . . . . . . 7
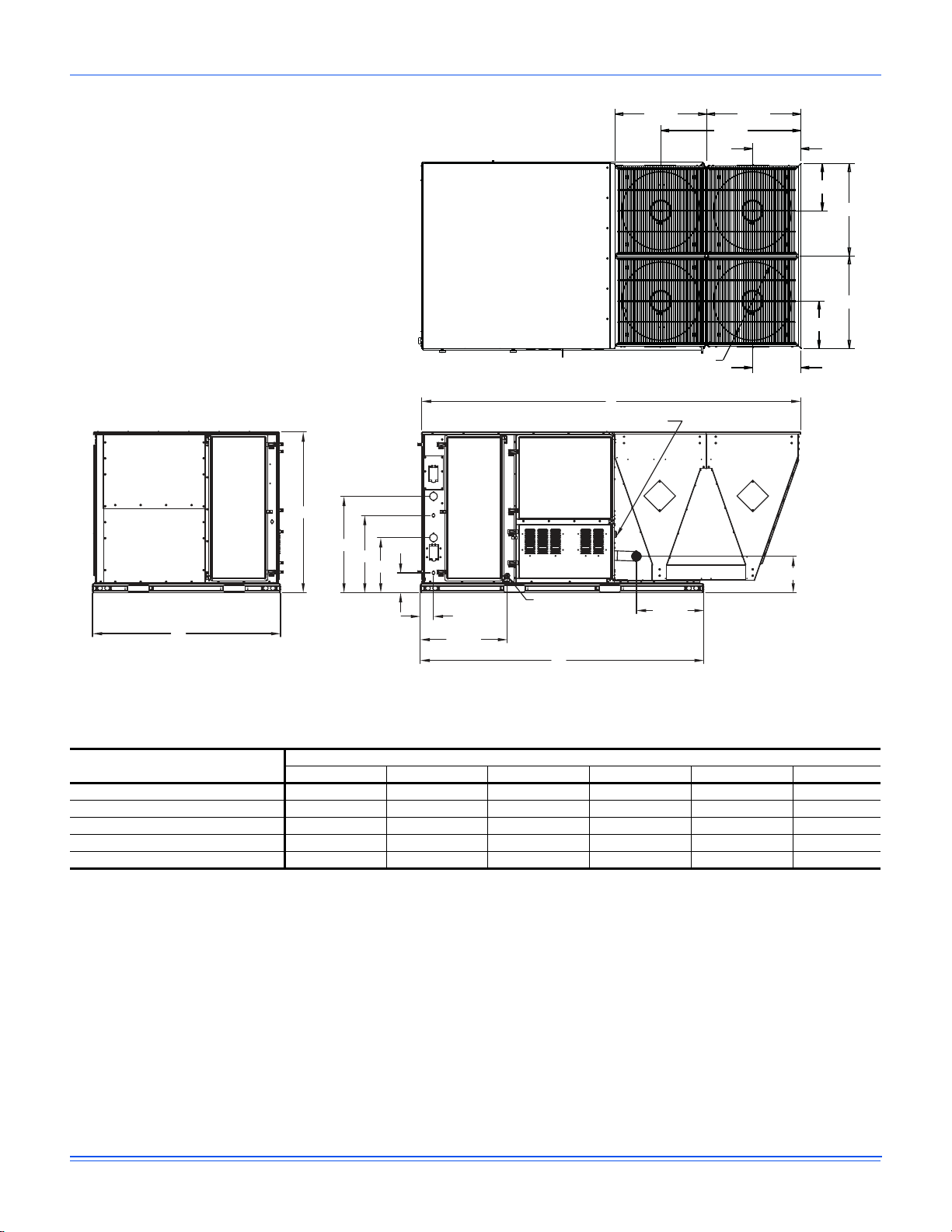
2 Weights and Dimensions . . . . . . . . . . . . . . . . . . . . . . . . . 8
3 ZH078-150 Unit Accessory Weights . . . . . . . . . . . . . . . . . 9
4 ZH078-150 Unit Physical Dimensions . . . . . . . . . . . . . . 10
5 ZH078-150 Unit Clearances . . . . . . . . . . . . . . . . . . . . . . 11
6 Side Duct Dimensions. . . . . . . . . . . . . . . . . . . . . . . . . . . 14
7 Control Wire Sizes . . . . . . . . . . . . . . . . . . . . . . . . . . . . . 19
8 Electrical Data . . . . . . . . . . . . . . . . . . . . . . . . . . . . . . . . . 20
9 ZH078-150 Physical Data . . . . . . . . . . . . . . . . . . . . . . . . 28
10 Electric Heat Minimum Supply Air. . . . . . . . . . . . . . . . . . 30
11 Gas Pipe Sizing - Capacity of Pipe . . . . . . . . . . . . . . . . . 31
12 Gas Heat Minimum Supply Air . . . . . . . . . . . . . . . . . . . . 32
13 Single Enthalpy and Dual Enthalpy High Limit Curves. . 38
14 Supply Air Limitations . . . . . . . . . . . . . . . . . . . . . . . . . . . 39
15 Altitude/Temperature Correction Factors . . . . . . . . . . . . 41
16 Airflow Performance - Side Duct Application . . . . . . . . . 43
17 Airflow Performance - Bottom Duct Application . . . . . . . 45
18 RPM Selection . . . . . . . . . . . . . . . . . . . . . . . . . . . . . . . . 46
19 Indoor Blower Specifications. . . . . . . . . . . . . . . . . . . . . . 47
20 Power Exhaust Specifications . . . . . . . . . . . . . . . . . . . . 47
21 Motor Sheave Datum Diameters . . . . . . . . . . . . . . . . . . 49
22 Additional Static Resistance . . . . . . . . . . . . . . . . . . . . . . 50
23 Electric Heat Limit Setting 50” Cabinet . . . . . . . . . . . . . . 55
24 Electric Heat Limit Setting 42” Cabinet . . . . . . . . . . . . . . 55
25 Electric Heat Anticipator Setpoints . . . . . . . . . . . . . . . . . 55
26 Gas Heat Limit Control Settings . . . . . . . . . . . . . . . . . . . 57
27 Gas Heat Anticipator Setpoints. . . . . . . . . . . . . . . . . . . . 57
28 Gas Rate Cubic Feet Per Hour. . . . . . . . . . . . . . . . . . . . 59
29 Gas Heat Stages. . . . . . . . . . . . . . . . . . . . . . . . . . . . . . . 59
30 Unit Control Board Flash Codes . . . . . . . . . . . . . . . . . . . 61
31 Heat Delay . . . . . . . . . . . . . . . . . . . . . . . . . . . . . . . . . . . 63
32 Ignition Control Flash Codes. . . . . . . . . . . . . . . . . . . . . . 63
33 VAV Control Board Flash Codes . . . . . . . . . . . . . . . . . . 63
LIST OF FIGURES
1 Unit Shipping Bracket . . . . . . . . . . . . . . . . . . . . . . . . . . . 5
2 Condenser Covering . . . . . . . . . . . . . . . . . . . . . . . . . . . . 5
3 Compressor Section . . . . . . . . . . . . . . . . . . . . . . . . . . . . 5
4 Predator®Component Location (ZH120 Shown). . . . . . . 6
5 Unit 4 Point Load Weight . . . . . . . . . . . . . . . . . . . . . . . . . 8
6 Unit 6 Point Load Weight . . . . . . . . . . . . . . . . . . . . . . . . . 8
7 Center of Gravity . . . . . . . . . . . . . . . . . . . . . . . . . . . . . . . 8
8 ZH078-120 Physical Dimensions . . . . . . . . . . . . . . . . . . . 9
9 ZH150 Physical Dimensions . . . . . . . . . . . . . . . . . . . . . 10
10 ZH078-150 Unit Bottom Duct Openings . . . . . . . . . . . . 12
11 ZH078-150 Unit Electrical Entry. . . . . . . . . . . . . . . . . . . 13
12 ZH078-120 Unit Side Duct Openings. . . . . . . . . . . . . . . 13
13 ZH150 Unit Side Duct Openings . . . . . . . . . . . . . . . . . . 14
14 ZH078-150 Unit Left Duct Opening . . . . . . . . . . . . . . . . 14
15 ZH078-150 Roof Curb . . . . . . . . . . . . . . . . . . . . . . . . . . 15
16 ZH078-150 Transition Roof Curb. . . . . . . . . . . . . . . . . . 15
17 Side Panels With Hole Plugs . . . . . . . . . . . . . . . . . . . . . 16
18 Return Downflow Plenum With Panel . . . . . . . . . . . . . . 16
19 Discharge Panel In Place. . . . . . . . . . . . . . . . . . . . . . . . 16
20 Condensate Drain . . . . . . . . . . . . . . . . . . . . . . . . . . . . . 16
21 Field Wiring Disconnect - Cooling Unit With/Without Electric
Heat and All Units With VFD Option . . . . . . . . . . . . . . . 18
22 Field Wiring Disconnect - Cooling Unit With Gas Heat
Without VFD Option . . . . . . . . . . . . . . . . . . . . . . . . . . . . 18
23 Typical Electronic Thermostat Field Wiring . . . . . . . . . . 19
24 Typical Field Wiring 24 Volt Thermostat . . . . . . . . . . . . 19
25 Side Entry Gas Piping . . . . . . . . . . . . . . . . . . . . . . . . . . 31
26 Bottom Entry Gas Piping . . . . . . . . . . . . . . . . . . . . . . . . 31
27 Simplified VFD Wiring . . . . . . . . . . . . . . . . . . . . . . . . . . 36
28 Economizer LCD and Keypad Layout. . . . . . . . . . . . . . . 37
29 Single Enthalpy Curve And Boundaries . . . . . . . . . . . . . 38
30 Belt Adjustment . . . . . . . . . . . . . . . . . . . . . . . . . . . . . . . 39
31 Altitude/Temperature Correction Factors. . . . . . . . . . . . 41
32 Dry Coil Delta P . . . . . . . . . . . . . . . . . . . . . . . . . . . . . . . 48
33 Occupied Jumper. . . . . . . . . . . . . . . . . . . . . . . . . . . . . . 51
34 Typical Flame. . . . . . . . . . . . . . . . . . . . . . . . . . . . . . . . . 60
35 Typical Gas Valve . . . . . . . . . . . . . . . . . . . . . . . . . . . . . 60
36 Unit Control Board . . . . . . . . . . . . . . . . . . . . . . . . . . . . . 62